2 Bed House For Sale
Triangle Road, Haywards Heath, RH16
Guide Price £375,000 (Freehold)
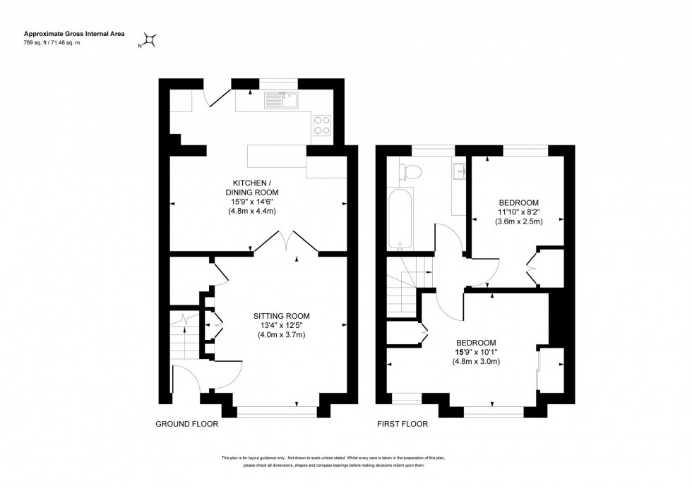
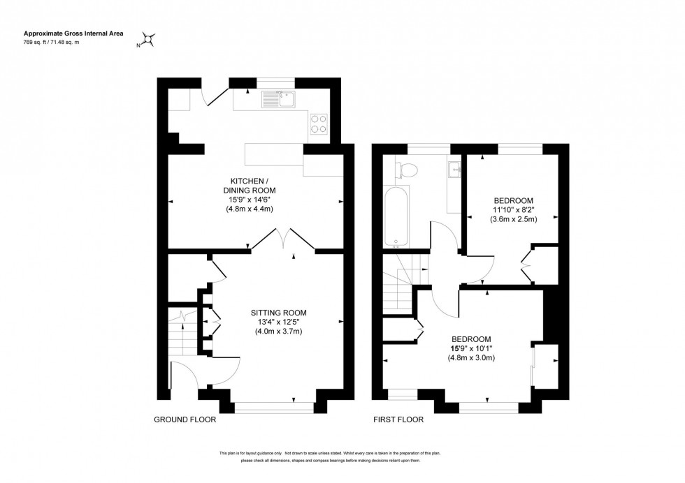
- Victorian terraced cottage of great character
- Extended ground floor to create bigger kitchen
- Lounge and large separate dining area
- 2 generous bedrooms and large bathroom suite
- Refitted kitchen with 'Butler' sink and oven
- 75' x 16' south facing garden
- 5-10 mins walk to shops & hospital
- 1 mile walk to the railway station
- EPC rating: D - Council Tax Band: C
PLEASE WATCH THE VIDEO BEFORE BOOKING AN APPOINTMENT
An extended 2 double bedroom Victorian terraced cottage of great character with a 75' x 16' south facing garden tucked away in this established part of town just to the south of the main town centre within a short walk of all the shops, hospital, several good schools and just a 1 mile walk of the railway station.
Location Summary
Triangle Road runs between Sussex Road and Franklynn Road on the southern side of the town centre and is made up of homes of similar style and size. The town centre is within a 5 minute walk where there is an extensive range of shops and stores whilst the town's fashionable Broadway is a little further on where there are numerous restaurants, cafes and bars. There are local shops a little closer including a Co-op store, Tesco Express and a Sainsbury's Local. A bus service runs close by linking with the railway station and neighbouring districts. The Princess Royal Hospital is approximately 0.4 miles to the south and there are numerous primary schools within a short walk of the property. Children from this side of town generally fall into the catchment area for Oathall Community College with its own farm in neighbouring Lindfield although some go onto Warden Park Secondary Academy in Cuckfield. The railway station is approximately 1 mile distant and provides fast commuter service to London (Victoria/London Bridge 45 mins), Gatwick Airport (15 mins) and Brighton (20 mins).
By road, access to the major surrounding areas can be gained via the new A272 (relief road) and the A/M23, the latter lying approximately 5.5 miles to the west at Bolney.
Distances on foot in miles (approximately)
Railway station (1.0)
Princess Royal Hospital (0.4)
Primary Schools:
St Wilfrid's (0.4)
St Joseph's (0.25)
Warden Park Primary Academy (0.35)
Secondary Schools:
Oathall Community College (1.1)
Warden Park Secondary Academy (1.5)
Council Tax Band: C
Nearest Stations
- Haywards Heath - 0.85miles
- Wivelsfield - 2.27miles
- Burgess Hill - 3.05miles
- Sheffield Park (Bluebell Railway) - 4.23miles
- Horsted Keynes (Bluebell Railway) - 4.30miles
Location
Floorplans
