2 Bed House Sold STC
Leylands Road, Burgess Hill, RH15

£325,000 (Freehold)

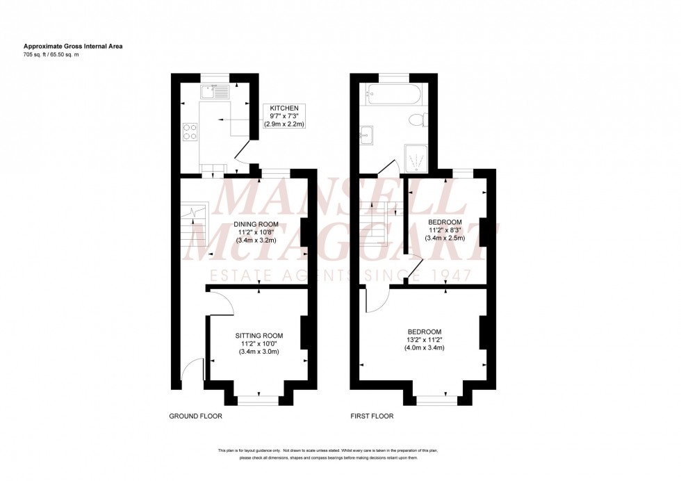
  • Entrance Hall
  • Living Room
  • Dining Room
  • Kitchen
  • 2 Bedrooms & Bathroom
  • 95' Rear Garden

A charming and very well presented 2 bedroom mid-terrace Victorian cottage with a light and airy feel, benefiting from a 95’ rear garden and within a moments’ walk of Wivelsfield mainline railway station, a parade of shops and Oak Tree Primary School. The current vendors have carried out major refurbishment and redecoration since their ownership in 2019/2020.

The accommodation has the original wood flooring to the ground floor and includes an entrance hall with stairs to the first floor and a living room with a Victorian (registered) open fire place with limestone surround. The dining room has deep storage cupboards beneath the stairs and a built in cupboard with plumbing for a washing machine, a step leads into the kitchen which is fitted with hand painted oak units complemented with oak worktops and a door to the rear garden. Integrated dishwasher, space for cooker and fridge freezer.

On the first floor, there is a split-level landing, with stairs to the 2 bedrooms both with a Victorian fireplace and the main bedroom having exposed brick chimney. The large bath/shower room has been fitted with a white suite with a freestanding bath, shower cubicle and wash hand basin with cupboard under.

Outside, there is a small front garden which is laid to slate with interspersed shrubs enclosed by brick wall and sleepers. The north facing 95’ x 13’ rear garden has a polished sandstone patio adjoining the house leading to a decking area with a pond. A stepping stone path with decorative bark flanked by mature shrub borders leads to the timber shed. Outside tap and power points. A side gate provides access across the neighbouring property (No 12).

Benefits include gas fired central heating (the Glow Worm boiler is located in the kitchen), new electrics and plumbing and uPVC framed double glazed windows.

Council Tax Band: C

Nearest Stations

  • Wivelsfield - 0.10miles
  • Burgess Hill - 0.87miles
  • Haywards Heath - 2.87miles
  • Hassocks - 3.03miles
  • Plumpton - 3.59miles

Contact the office to
discuss this property

01444 235665 Email us View your shortlist

Location

Floorplans

Floorplan for Leylands Road, Burgess Hill, RH15
⁡⁣⁣⁢

Request a Viewing

Contact the office to
discuss this property

01444 235665 Email us View your shortlist