4 Bed House For Sale
Cheney Crescent, Haywards Heath, RH16

Guide Price £650,000 (Freehold)

  • Built by Crest Nicholson in 2013 to their Grantham design
  • NO ONWARD CHAIN
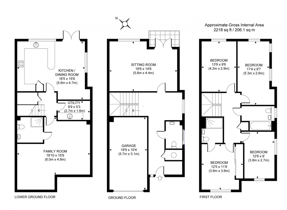
  • 38' wide x 29' (min deep) extending to 50' max rear garden - Private driveway parking & integral garage
  • Entry level: entrance hall, cloakroom, study area, sitting room with a balcony and integral garage
  • Lower ground floor: impressive kitchen/dining room with doors to garden, utility room and recreation room with en-suite shower (wet room)
  • Top floor: 4 double bedrooms & 2 bath/shower rooms
  • Gas heating to radiators
  • New primary school to be built in Hurstwood Lane in the next few years
  • Internal viewing highly recommended to appreciate the size and quality of this large home
  • Quiet cul-de-sac location backing onto woodland close to the hospital

GUIDE PRICE … £650,000-£675,000 - NO ONWARD CHAIN

PLEASE WATCH THE VIDEO BEFORE BOOKING AN APPOINTMENT

A deceptively spacious (2200 ft.²) 4/5 bedroom town house tucked away in a cul-de-sac backing onto woodland on the southern edge of town offering highly flexible accommodation over 3 floors. NO ONWARD CHAIN.

Service charge Half Yearly - for 01.10.25-31.03.26 = £146.94 paid to Hunters Estate & Property Management Ltdt (St Francis Park Client) t: 01444 254400 e: block@hunters-group.co.uk or accounts@hunters-group.co.uk

Location Summary

Cheney Crescent is off Bowden Way and forms part of the St Francis Park Development which was built around 2012/2013 by Crest Nicholson and can be accessed off the Rocky Lane/Foxhill/Wivelsfield Road roundabout on the southern side of town. The property is within a short walk of the Sainsbury’'s Local store, the hospital and countryside. Several primary schools are also within walking distance and children from this side of town can catch the bus to Warden Park Secondary Academy School in neighbouring Cuckfield or Oathall Community College in Lindfield. A regular bus service runs close by linking with the town centre, railway station, neighbouring districts and Brighton. The town has an extensive range of shops, stores, restaurants, cafes and bars, state of the art leisure centre and 6th form college.

By road, access to the major surrounding areas can be swiftly gained via the A272 relief road and the A/M23 which lies approximately 6 miles to the west at Bolney or Warninglid. There are several beauty spots within easy reach including both Ditchling and Chailey Common Nature Reserves, the Ashdown Forest, Ardingly Reservoir and the South Downs National Park.

Distances in approximate miles on foot/car/train
Schools
St Wilfrids Primary (0.65)
St Joseph’s RC Primary (0.85)
Northlands Wood (0.85)
Warden Park Primary Academy (0.95)
Oathall Community College (1.5)
Warden Park Secondary Academy in Cuckfield (2.5) - Children catch a school bus from Wivelsfield Road
Station
Haywards Heath mainline railway station (1.5 miles) offering fast commuter services to London (Victoria/London Bridge 47 mins), Gatwick Airport (15 mins) and the south coast (Brighton 20 mins)

Council Tax Band: F

Nearest Stations

  • Haywards Heath - 1.33miles
  • Wivelsfield - 1.86miles
  • Burgess Hill - 2.64miles
  • Sheffield Park (Bluebell Railway) - 4.22miles
  • Plumpton - 4.35miles

Contact the office to
discuss this property

01444 456431 Email us View your shortlist

Location

Floorplans

Floorplan for Cheney Crescent, Haywards Heath, RH16
View PDF Brochure

Video Tours

⁡⁣⁣⁢

Request a Viewing

Contact the office to
discuss this property

01444 456431 Email us View your shortlist