4 Bed House For Sale
Nursery Close, Haywards Heath, RH16
Guide Price £600,000 (Freehold)
- Family home in cul-de-sac on prime west side of town
- Great location near town and railway station - Harlands Primary and Warden Park Secondary Academy School catchment areay
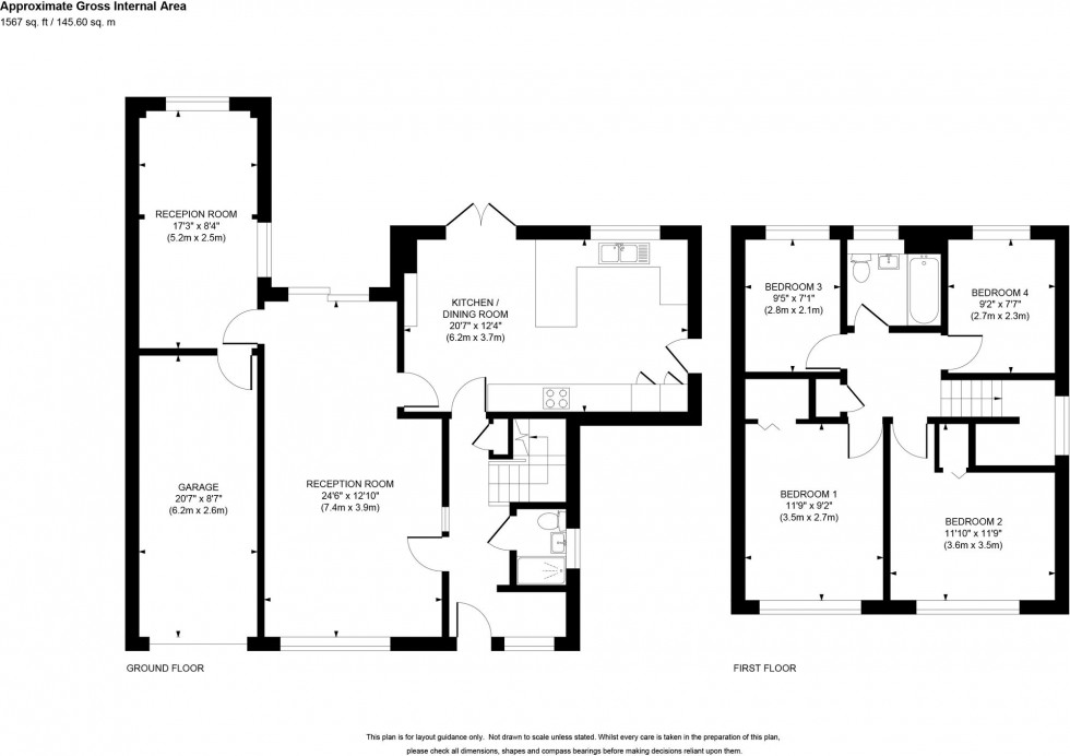
- 61' wide x 33' on average L shaped rear garden - Driveway & long attached garage with potential
- Potential for extension/garage conversion STPP
- Would benefit from general updating throughout
- Extra large ground floor living accommodation
- Double aspect living room with playroom - Family sized kitchen/breakfast room with granite tops
- Entrance hall, downstairs cloak/shower room - 4 first floor bedrooms and family bathroom
- EPC rating: C - Council Tax Band: F
GUIDE PRICE … £600,000 - £625,000 … FREEHOLD
PLEASE WATCH THE VIDEO BEFORE BOOKING AN APPOINTMENT
An extended detached 4 bedroom house tucked away in the corner of a cul-de-sac with a good size plot on the desirable west side of town within a 10 minute walk of the town centre, railway station and easy reach of the best local schools.
Location Summary
Nursery Close is located off Sergison Close which in turn is located off Sergison Road on the town's desirable west side. The railway station, leisure centre, trendy Broadway, town centre, schools and glorious countryside is all within a short walk. The town has a varied range of restaurants, cafés, bars and shops. The leisure centre and 6th form college are within a 10 minute walk and there are numerous sports clubs and leisure groups in the district. Children from this side of town fall into the catchment area for Harlands Primary School in Penland Road and go onto Warden Park Secondary Academy in neighbouring Cuckfield which is easily accessed on foot via an alleyway at the top of Nursery Close and Sergison Close. The Paiges Meadow and Blunts Wood nature reserve are also within a 10/15 minute walk. By road access to the major surrounding areas can be swiftly gained via the A272 and A/M23 what lies about 5.5 miles to the west at Bolney.
Distances in approximate miles on foot/car/rail:
Haywards Heath railway station 0.6,The Broadway & town centre 0.5, Harlands Primary School 0.85, Warden Park Secondary Academy School 1.5, Gatwick Airport 13, Brighton Seafront 15,
A23 Bolney 5
Council Tax Band: F
Nearest Stations
- Haywards Heath - 0.41miles
- Wivelsfield - 2.59miles
- Burgess Hill - 3.37miles
- Balcombe - 3.90miles
- Horsted Keynes (Bluebell Railway) - 4.25miles
Location
Floorplans
