2 Bed Bungalow For Sale
Willows Rise, Framfield, TN22

Guide Price £400,000 (Freehold)

  • CHAIN FREE
  • Detached bungalow
  • 2 double bedrooms
  • 2 bath/shower rooms
  • Beautiful outlook over neighbouring countryside
  • Detached garage and driveway
  • Quiet cul-de-sac location
  • Conservatory

£400,000-£425,000 An enviably positioned 2 bedroom, 2 bath/shower room CHAIN FREE detached bungalow enjoying a delightful outlook across the neighbouring countryside with a detached garage, parking for several vehicles and modern conservatory.

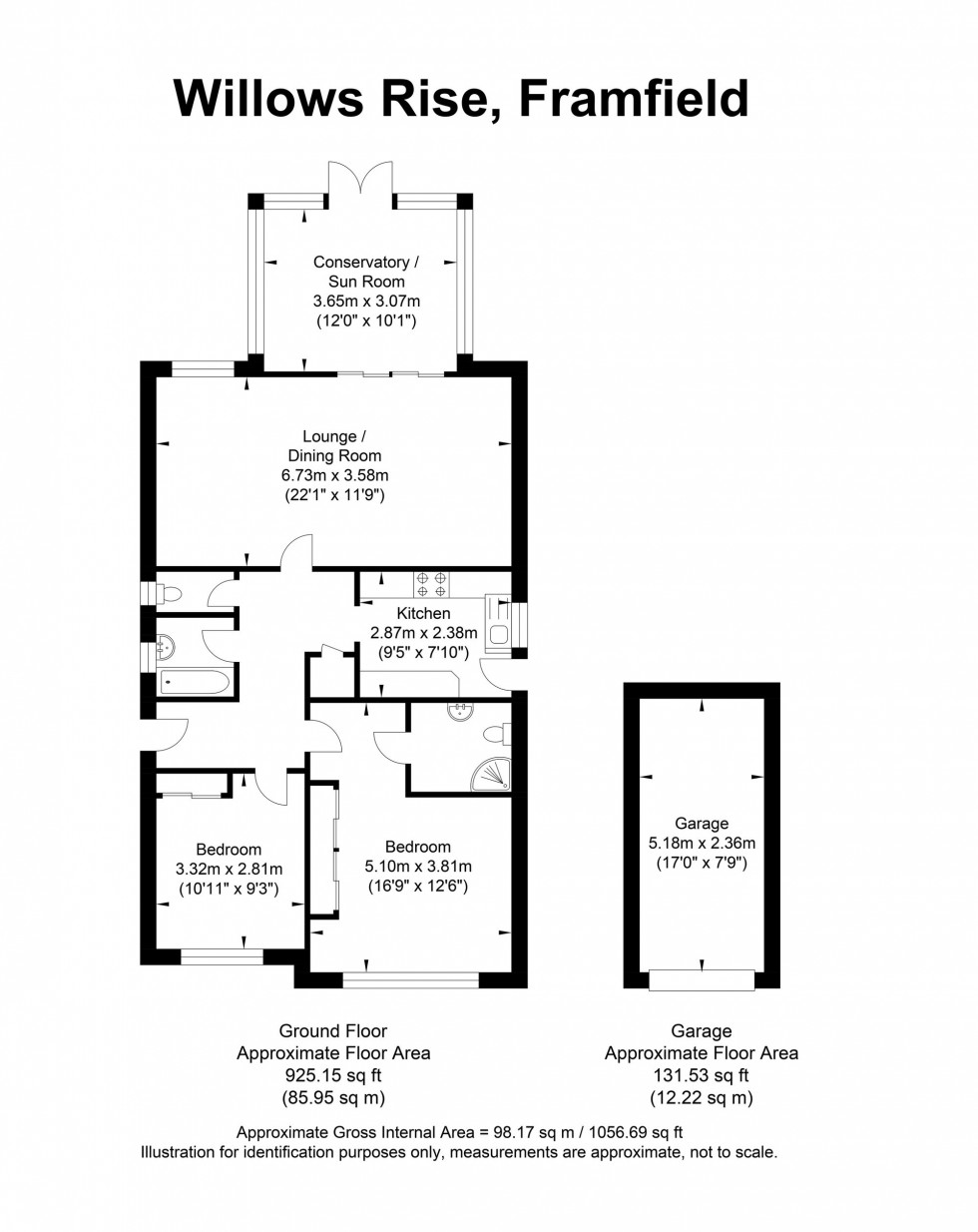
This delightful bungalow, offered with no onward chain, is beautifully positioned in a traffic free position towards the end of this popular cul-de-sac in the highly sought after village of Framfield and benefits from, in brief; an entrance hall, a kitchen with a range of matching units to eye and base level, an impressive 22 ft living room diner with sliding doors leading to a modern conservatory which in turn offers double doors opening onto the rear garden and enjoys a delightful outlook across the adjacent countryside, a principle bedroom suite with a range of fitted wardrobes and en-suite shower room, a second double bedroom with fitted wardrobes, a family bathroom and a separate WC.

Outside the rear garden offers a beautiful outlook across the neighbouring fields, a seating terrace immediately adjoining the rear of the property, a personal door allows pedestrian access to the garage and a passage provides side access front to rear.

The front of the property is approached via a long driveway leading to a detached single garage.

The property is pleasantly positioned within the heart of this sought after village surrounded by open fields and countryside with meandering bridle paths linking with the neighbouring districts.  The village itself offers a strong sense of community spirit with the highly regarded primary school, a village pub, a large recreation ground and a picturesque church.  Shopping and leisure facilities can be found in nearby Uckfield offering a comprehensive range of public facilities including a library, numerous bars/restaurants, supermarkets and individual shops including bus services to Uckfield and beyond. In addition Uckfield offers a railway stations offering services to London, further rail services can be found in nearby Buxted providing swift rail services to London in just over one hour. The breath-taking six and a half thousand acre Ashdown Forest is also within close proximity, the inspiration behind AA Milne’s Winnie the Pooh books offering vast scenic walks and bridle paths.  Framfield is also conveniently positioned for the major surround towns including Haywards Heath, Lewes, Brighton city, and the historic Tunbridge Wells.

Location Summary

The property is pleasantly positioned within the heart of this sought after village surrounded by open fields and countryside with meandering bridle paths linking with the neighbouring districts.  The village itself offers a strong sense of community spirit with the highly regarded primary school, a village pub, a large recreation ground and a picturesque church.  Shopping and leisure facilities can be found in nearby Uckfield offering a comprehensive range of public facilities including a library, numerous bars/restaurants, supermarkets and individual shops.  In addition Uckfield offers a railway stations offering services to London, further rail services can be found in nearby Buxted providing swift rail services to London in just over one hour. The breath-taking six and a half thousand acre Ashdown Forest is also within close proximity, the inspiration behind AA Milne’s Winnie the Pooh books offering vast scenic walks and bridle paths.  Framfield is also conveniently positioned for the major surround towns including Haywards Heath, Lewes, Brighton city, and the historic Tunbridge Wells.

Council Tax Band: D

Nearest Stations

  • Uckfield - 1.52miles
  • Buxted - 1.89miles
  • Sheffield Park (Bluebell Railway) - 6.17miles
  • Crowborough - 6.31miles
  • Cooksbridge - 7.31miles

Contact the office to
discuss this property

01825 760770 Email us View your shortlist

Location

Floorplans

Floorplan for Willows Rise, Framfield, TN22
View PDF Brochure
⁡⁣⁣⁢

Request a Viewing

Contact the office to
discuss this property

01825 760770 Email us View your shortlist