3 Bed House For Sale
New England Road, Haywards Heath, RH16
Guide Price £475,000 (Freehold)
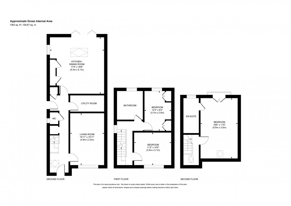
- Fabulous home of deceptively large proportions
- Beautiful orangery style kitchen/breakfast room - Built-in appliances and granite worktops
- Separate lounge, utility room and cloakroom
- Top floor master bedroom suite
- 2 further double bedrooms - Impressive bathroom
- Driveway parking for several cars
- 28' x 23' rear garden laid to Astroturf
- Separate studio/home office with underfloor heating
- Close to schools, shopping areas & railway station
- EPC rating: D - Council Tax Band: D
GUIDE PRICE … £475,000-£500,000
PLEASE WATCH THE VIDEO BEFORE BOOKING AN APPOINTMENT
A beautifully presented 1930s semi-detached house on the rejuvenated eastern side of town which was the subject of major refurbishment and enlargement a few years ago to create a truly fabulous home, which is ideally located within a short walk of the town centre, several schools and just a 0.9 mile walk to the railway station.
Location Summary
The property is situated on the northern side of New England Road on the east side of town and is ideally placed within a short walk of local shops in nearby America Lane, several primary schools, Oathall Community College with its farm, the railway station and Lindfield's picturesque village High Street via the Scrase Valley Nature Reserve. The town centre is within 0.5 miles where there is an extensive range of shops and stores whilst the Broadway is a little further on where there are several restaurants, cafes and bars.
The town has a leisure centre, 6th form college, numerous sports clubs and leisure groups and had several large open spaces including both Victoria and Clair Parks, Ashenground Woods, Scrase Valley Nature Reserve and Lindfield Common. The railway station is 0.9 miles on foot via Clair Park. A bus service runs along the road linking with all the towns facilities, hospital and neighbouring districts. By road access to the major surrounding areas can be swiftly gained via the B2112, A272 and A/M23 which lies about 6 miles to the west at Bolney or Warninglid.
Distances: (in miles approx) :-
Railway station 0.9 - providing fast commuter links to London (Victoria/London Bridge 47 mins), Gatwick Airport (15 mins) and the south coast (Brighton 20 mins)
Primary Schools: Warden Park Primary Academy 150 yards, St Wilfrid's 0.6, St Joseph's 500 yards
Secondary Schools & Colleges: Oathall Community College 0.7, Warden Park Secondary Academy 1.87,
6th Form College 1.1
A23 Bolney 6, Brighton Seafront 14, Gatwick Airport 15
Council Tax Band: D
Nearest Stations
- Haywards Heath - 0.56miles
- Wivelsfield - 2.70miles
- Burgess Hill - 3.49miles
- Horsted Keynes (Bluebell Railway) - 3.89miles
- Sheffield Park (Bluebell Railway) - 4.10miles
Location
Floorplans