Bed Other For Sale
Ashurst Lane, Plumpton, BN7

Guide Price £500,000 (Freehold)

  • £500,000 - £550,000 guide price
  • APPROVED PLANNING PERMISSION TO DEVELOP
  • POPULAR VILLAGE LOCATION
  • PLANNING FOR A 4 BEDROOM HOME
  • FAR REACHING VIEWS OF THE LOCAL COUNTRYSIDE
  • GARDEN AND WALLED COURTYARD

£500,000 - £550,000 guide price.

An interesting opportunity to purchase a former stable block which is offered for sale for residential redevelopment.

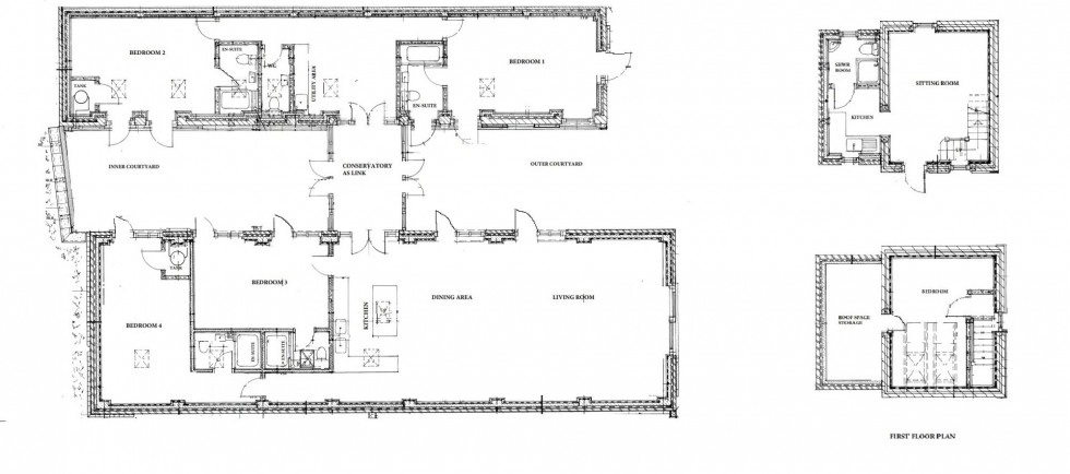
The site benefits from Approved Planning Permission to develop a bespoke home which will partially utilise the existing stables and outbuilding and incorporate a newly constructed addition, creating a wonderful home of approximately 2,395 sq ft with a further 425 sq ft Detached 1 Bedroom Annexe.

The full application can be viewed on the Lewes-Eastbourne.gov.uk Planning Portal with reference LW/22/0364 – permission approved June 2022.

The dwelling would become a desirable 2,395 sq ft (approximate) 4 double Bedroom home. The plans show for an impressive open plan Living Room and Kitchen Diner which would boast far reaching views across the local countryside.

The property features vaulted ceilings with roof windows, and an atrium style of entrance which will link the stable conversion to the modern extension.

Each bedroom will benefit from its own EnSuite Bathroom or Shower Room, and direct access to the courtyard or garden.

The Annexe is an interesting proposal and would create a 425 sq ft (approximate) 1 Bedroom detached annexe. This would be developed from an existing outbuilding and a modest extension.

Outside the property will feature a walled courtyard and also gardens to the front which will benefit from the views across the local countryside. The plans also show for off street parking.

Viewings are highly recommended to appreciate size and the views that will be achieved from the plot.

Ashurst Lane is private road and bridle way in the sought after village of Plumpton.
Plumpton benefits from a Mainline Railway Station with direct services to Lewes, Haywards Heath and London Victoria.
The village features a local convenience shop, The Fountain Public House and two further public houses are also within easy reach, located in more rural Plumpton. There is also a children’s recreation field and playground, a sports field, pretty church and popular primary school, with Chailey secondary school a short drive away. Plumpton is also home to Plumpton Racecourse which hosts numerous events and family days throughout the year.
Scenic walks are easily accessible from the property with almost direct walks to the local countryside.

Tenure – freehold
EPC rating – N/A
Council tax band – N/A

Nearest Stations

  • Plumpton - 0.55miles
  • Cooksbridge - 2.74miles
  • Burgess Hill - 3.50miles
  • Hassocks - 3.51miles
  • Wivelsfield - 3.82miles

Contact the office to
discuss this property

01273 407929 Email us View your shortlist

Location

Floorplans

Floorplan for Ashurst Lane, Plumpton, BN7
View PDF Brochure
⁡⁣⁣⁢

Request a Viewing

Contact the office to
discuss this property

01273 407929 Email us View your shortlist