3 Bed Bungalow For Sale
Windmill Drive, Burgess Hill, RH15
In Excess of £525,000 (Freehold)
- Entrance Hall
- Study/Bedroom 3
- Living Room/Bedroom 2
- Family/Dining Room
- Bathroom
- Kitchen & Utility
- First Floor Bedroom Suite (dressing room & ensuite)
- Long Private Driveway
- Garage/Workshop
- 2 Large Areas of Garden
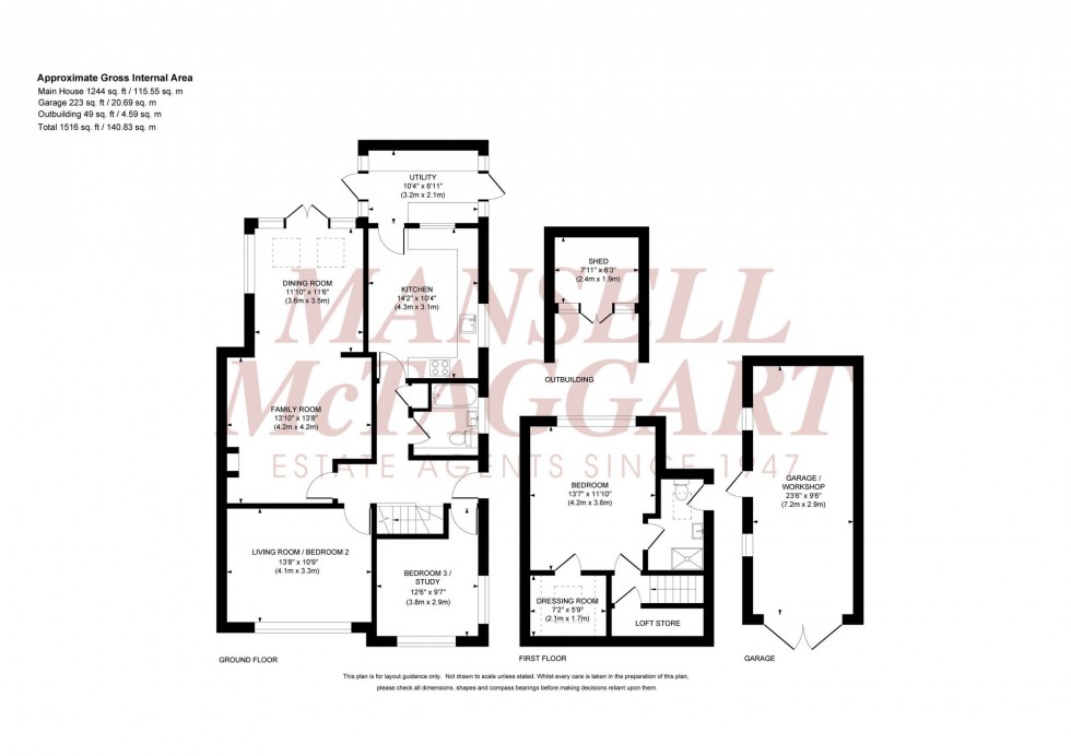
A much improved and extended chalet bungalow that was extended into the loft space soon after our vendors moved in in 2013 to create a master suite with dressing room and ensuite. They also replaced a conservatory in 2025 to create one large family/dining room. The accommodation is particularly spacious and versatile with the possibility of 3 bedrooms or multiple reception rooms. There is ample driveway parking, a large garage/workshop and generous gardens on 2 sides.
Built in the 1930’s and situated in this much sought after close with a footpath next to the property that leads onto Mill road and a footpath from St Peters Road that is a flat walk to the town and St Johns Park. The mainline station is 0.7 mile away.
The accommodation comprises an entrance hall with stairs to the first floor, a linen cupboard and a coats/meter cupboard. The 2nd bedroom or living room faces the front as does the dual aspect bedroom 3/study. A particular feature is the extended dining/family room with part vaulted ceiling with glazed insets and double doors to the garden. Fireplace with inset multi fuel burner.
The kitchen is fitted with a good range of cream cupboards and integrated appliances to include an induction hob, a double oven, and a dishwasher. There is a utility room with plumbing for a washing machine, a door to the courtyard and a door to the garden. The bathroom has been refitted with a white suite and tiled walls.
From the landing there is a Velux window and insulated eaves storage cupboard. The master bedroom overlooks the rear garden with a dressing room and ensuite shower room.
Outside a block paved driveway provides parking for 5 cars. Double gates open to the south facing 34’ x 17’ courtyard with raised fishpond and access to the 24’ x 10’ timber garage/workshop (the driveway could be continued across the courtyard if required). The east facing 51’ x 35’ rear garden is laid to crazy paved patio and lawn, flanked by a shrub border. Summer House.
Benefits include gas fired central heating (the combination boiler is located in an eaves cupboard off the ensuite shower room) and uPVC framed double glazed windows.
Council Tax Band: D
Nearest Stations
- Wivelsfield - 0.44miles
- Burgess Hill - 0.54miles
- Hassocks - 2.64miles
- Haywards Heath - 3.24miles
- Plumpton - 3.78miles
Location
Floorplans