2 Bed House For Sale
Morris Road, Lewes, BN7

In Excess of £575,000 (Freehold)

  • TOWN CENTRE LOCATION
  • 2 DOUBLE BEDROOMS
  • 28ft THROUGH SITTING ROOM / DINING ROOM
  • MODERN KITCHEN
  • MODERN BATHROOM
  • CONSERVATORY
  • LANDSCAPED GARDEN
  • SITUATED ON A NON THROUGH ROAD
  • POTENTIAL FOR A LOFT CONVERSION (stpp)
  • VIEWINGS HIGHLY RECOMMENDED

A Beautifully Presented, 2 Bedroom, Victorian home, located in an extremely popular non through road in the heart of Historic Lewes Town Centre.

The character property benefits from a Modern Kitchen, Conservatory, and an enviable 24ft Through Sitting Room / Dining Room with fireplace and bay window.

Upstairs there is a Modern Bathroom and 2 Double Bedrooms, both with fitted wardrobes and exposed floorboards, with the second bedroom further boasting a Vaulted Ceiling.

Outside is a wonderful, landscape garden and period features can be found throughout the home, such as ornate fireplaces, double glazed sash windows, picture rails, exposed floor boards and panelled doors.

Whilst beautifully presented there does appear to be further potential to extend into the loft, subject to the necessary permissions and consents, but as others have achieved.

VIEWING RECOMMENDED

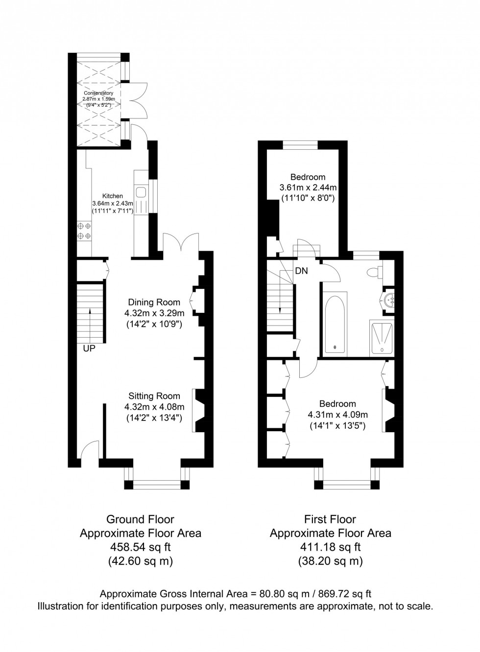
ENTRANCE HALL- Front door, opening to;.

THROUGH SITTING ROOM / DINING ROOM- Measuring a generous 24ft the dual aspect room enjoys views to the front and double doors open to the rear garden.

SITTING ROOM- A generously sized Reception Room with feature fireplace with exposed brick slips and generous bay window with double glazed sash windows looking along Morris Road. The Sitting Room is completely open plan to the;

DINING ROOM- Double doors to garden and opening to kitchen. Stairs with painted hand rail and balustrade to first floor. Understairs storage cupboard. Fitted cupboard into chimney breast.

KITCHEN - A modern fitted kitchen finished in a timeless white and comprising of an excellent range of cupboards and drawers, all complimented by large profile tiled floor and composite worksurface. The dual aspect kitchen enjoys views and access to the garden and double doors open to;

CONSERVATORY- A dual aspect conservatory with views and access to the landscaped garden, double glazed roof.

FIRST FLOOR LANDING- white painted panelled doors to principal rooms. Exposed floorboards and fitted cupboard.

BEDROOM 1- A super double room with bay window with double glazed sash windows enjoying elevated views along Morris Road. Fitted wardrobes, exposed floorboards, picture rail and ornate fireplace.

BEDROOM 2- A double bedroom with vaulted ceiling, window to the rear, exposed floorboards and fitted wardrobe.

BATHROOM- Modern bathroom suite with deep fill bath and separate shower enclosure, wc and wash hand basin set into a vanity unit. Window to the rear, exposed floorboards and cupboard housing boiler.

REAR GARDEN- A deceptively generous garden considering the town centre location. The landscaped garden provides a summer feel all year round with decked terraces and pebble stone details with established flower beds well stocked with mature plants and shrubs. The garden feel noticeable private not being overlooked from the rear and is enclosed by fenced boundaries.

 

Planning Permission – Whilst no planning permission is currently in place we do feel there is potential to further extend and/or complete a loft conversion at the property as neighboring properties have done so.

Morris Road is an enviable, non through road, superbly located for the pedestrianised cobbled streets of Cliffe High Street, but also conveniently located for Lewes Mainline Railway Station which offers direct trains to London, Brighton, Gatwick and Eastbourne.

The Railway Land Nature Reserve and South Downs Nation Park are both easily accessible, offering scenic walks on the doorstep of the Town Centre.

The High Street offers many individual shops, restaurants, and public houses. Together with local outdoor swimming pool, leisure centre, and The Depot Cinema.

Highly regarded primary schools are also an easy walk as are Priory Secondary School, Sussex Downs College, and Lewes Old Grammar School.

Lewes is also proud to host a number of sports clubs including football, rugby, tennis, golf, cricket, stoolball and athletics and cycling to name a few.

 

Tenure – Freehold

Gas Central Heating - Double Glazed Sash Windows.

EPC Rating – C

Council Tax Band – D

 

 

 

Council Tax Band: D

Nearest Stations

  • Lewes - 0.38miles
  • Cooksbridge - 2.43miles
  • Glynde - 2.44miles
  • Southease - 2.96miles
  • Southease - Piddinghoe Road - 3.02miles

Contact the office to
discuss this property

01273 407929 Email us View your shortlist

Location

Floorplans

Floorplan for Morris Road, Lewes, BN7
View PDF Brochure
⁡⁣⁣⁢

Request a Viewing

Contact the office to
discuss this property

01273 407929 Email us View your shortlist