2 Bed Apartment For Sale
Barncroft Drive, Haywards Heath, RH16

Guide Price £285,000 (Leasehold)

  • A modern 2 Double Bedroom first floor apartment built by Barratt Homes in 2012 to 'The Escombe' design situated in central village location
  • Private front door + Entrance Hall and stairs to first floor
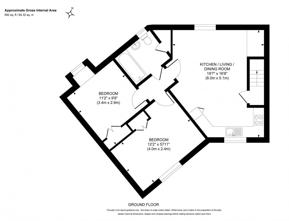
  • Open plan double aspect Kitchen / Living / Dining Room
  • Kitchen with integrated appliances including fridge/freezer, washer/dryer and dishwasher
  • Separate modern white Bathroom
  • Gas central heating to radiators + double glazed windows + 155 year lease from 2012
  • Adjoining Carport with x2 Off Road Parking Spaces
  • Short walk of the High Street, village Common, Pond and schooling
  • EPC rating: C and Council Tax Band: B

*PLEASE WATCH VIEWING VIDEO*

A centrally located 2 Double Bedroom first floor apartment built by Barratt Homes in 2012 to ‘The Escombe’ design plus 2 Off Road Parking Spaces.

The accommodation comprises: Private front door into the Entrance Hall stairs rising to first floor landing. Kitchen Area - fitted with a range of units at eye and base level, sink unit, integral fridge/freezer, dishwasher, washer/dryer, built-in oven and 4-ring gas hob. Cupboard housing gas fired Potterton boiler. Dining Area - space for dining table and chairs Living Area - recess, window to front and radiator. Inner Lobby – hatch to loft space (access only).  Bedroom 1 built-in wardrobes, window to rear. Bedroom 2 built-in wardrobes, window to front.  Bathroom fitted with a modern white suite, enclosed bath, mixer tap and shower attachment, low level WC, wash basin, heated towel rail and opaque window to front plus Store. 

Benefits include gas central heating, double glazed windows and this excellent apartment is situated only a short walk to the picturesque High Street, village common, landmark pond and highly regarded local schooling.  

Outside – adjoining the apartment is a carport with 2 tandem Off Road Parking spaces. 

Tenure
: Leasehold (155 years from 2012)
Ground Rent: £327.88 pa HomeGround Management LTD, PO Box 6433, London, W1A2UZ. Tel: 03300 887953. Service Charge: approx £825.00 pa. Managing Agents: HES Estates ManagementLTD, 2 Chartland House, Old Station Approach,Leatherhead, Surrey, KT22 7TE. Tel: 01372 677977 Email: info@heseml.co.uk

Lindfield is one of the most desirable villages in the Southeast and has just been named the best place to live in 2026 in The Times and The Sunday Times.

Location Summary

LOCATION - Barncroft Drive is situated in The Limes development off Newton Road in the heart of Lindfield and is within a short walk of local shops, stores, boutiques, churches, pond, common and historical properties. Lindfield has numerous sports clubs, leisure groups and societies including the long established Bonfire Society.
BY ROAD - Access to the major surrounding areas can be gained via the A272 and the A/M23 linking with Gatwick Airport and the M25.
SCHOOLS - Lindfield Primary School (0.7 miles) Blackthorns Primary School (1.3 miles), Oathall Community College Secondary School (1.3 miles). The local area is well served by several independent schools including: Great Walstead (1.6 miles) and Ardingly College (2.9 miles).
STATION - Haywards Heath mainline railway station (1.7 miles). Fast and regular services to London (London Bridge/Victoria 47 mins), Gatwick Airport (15 mins) and Brighton (20 mins).

Council Tax Band: B

Nearest Stations

  • Haywards Heath - 1.34miles
  • Horsted Keynes (Bluebell Railway) - 2.72miles
  • Sheffield Park (Bluebell Railway) - 3.42miles
  • Wivelsfield - 3.83miles
  • Balcombe - 4.00miles

Contact the office to
discuss this property

01444 484084 Email us View your shortlist

Location

Floorplans

Floorplan for Barncroft Drive, Haywards Heath, RH16
View PDF Brochure

Video Tours

⁡⁣⁣⁢

Request a Viewing

Contact the office to
discuss this property

01444 484084 Email us View your shortlist