6 Bed House For Sale
Windmill Lane, East Grinstead, RH19

Offers in Region of £850,000 (Freehold)

  • Detached family home
  • Six bedrooms
  • Three bathrooms and a downstairs cloakroom
  • Nearly 2,850 Sq ft of living space
  • Corner plot
  • South facing rear garden
  • Driveway parking
  • Double garage
  • Walking distance to East Grinstead town centre & mainline train station
  • End of chain!

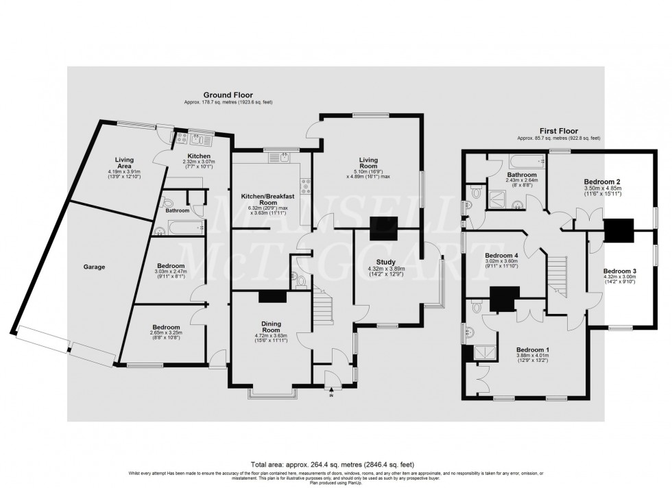
A spacious and well proportioned six bedroom 1920s detached family home, which is ideally situated within walking distance of East Grinstead Town centre, mainline train station and local schools. The property offers nearly 2,850 Sq ft of living space and benefits from driveway parking, double garage, a separate annex and a South facing rear garden. This property is being offered to the market with no onward chain.

The living accommodation briefly comprises: entrance porch; entrance hall with an understairs cupboard; dining room with a bay window to the front and open fireplace; dual aspect study with an open fireplace and backdoor access to the rear garden; downstairs cloakroom with a WC and wash hand basin; triple aspect living room with an open fireplace and access to the garden. A kitchen/breakfast room with a fitted kitchen with a range of wall and base level units, a range gas oven, a 7 gas ring hob and space for other appliances concludes the ground floor.

On the first floor there is a landing with loft hatch access to the partially boarded loft; master bedroom with fitted wardrobes and ensuite shower room with a WC, wash hand basin; dual aspect guest bedroom with fitted wardrobes; further dual aspect double bedroom, fitted wardrobes and feature fireplace; family bathroom with a WC, wash hand basin, airing cupboard, bath and a shower cubicle; separate WC and wash hand basin. A final double bedroom with rear aspect views completes the living accommodation.

There is also a separate annex which consists of two double bedrooms; a family bathroom with a WC, wash hand basin and bath with an overhead shower; a kitchenette with a range of wall and base level units and space for appliances. A living/dining room with rear aspect views completes the living accommodation in the annex.

Externally, the property benefits from driveway parking and a double garage. Gated side access leads to the South Facing and wrap around rear garden, which is mainly laid to lawn, with a patio seating area abutting the rear of the property.

Council Tax Band: G

Nearest Stations

  • East Grinstead - 0.43miles
  • Dormans - 1.75miles
  • Kingscote (Bluebell Railway) - 2.37miles
  • Lingfield - 3.09miles
  • Cowden - 5.86miles

Contact the office to
discuss this property

01342 311711 Email us View your shortlist

Location

Floorplans

Floorplan for Windmill Lane, East Grinstead, RH19
⁡⁣⁣⁢

Request a Viewing

Contact the office to
discuss this property

01342 311711 Email us View your shortlist