4 Bed House Sold STC
Denham Road, Burgess Hill, RH15

£360,000 (Freehold)

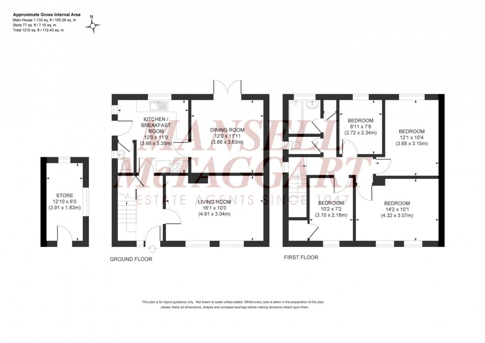
  • Entrance Hall
  • Kitchen/ Breakfast Room
  • Dining Room
  • Living Room
  • Downstairs WC
  • 4 Good Sized Bedrooms
  • Bathroom/ WC
  • Driveway
  • Large Rear Garden & Outhouse
  • Modernisation Required & Vacant Possession

Spacious 4 bedroom semi detached house built in the 1950s, requiring modernisation and presented with vacant possession. 2 reception rooms, cloakroom/WC, private drive and large rear garden.

Situated in this established road overlooking a play park/ green. Shops, Schools and a Doctors surgery are all a short walk away. The town centre is 1.1 miles away and the Mainline Railway Station in 1.4 miles away.

The accommodation comprises an entrance hall with stairs rising to the first floor landing with a built in understairs storage cupboard, a lounge with a feature cast iron fireplace and a kitchen/ breakfast room. A rear lobby with space and plumbing for a washing machine, door to the side, separate WC and a dining room with doors to the rear garden.

On the first floor landing there is a hatch to loft space, a window to the side aspect and an airing cupboard housing the gas fired combination boiler. There are 4 bedrooms, a bathroom and a separate WC.

Outside, a private driveway is flanked by a good size area of lawn. A side gate opens to the north facing 68’ x 25’ rear garden which is mainly laid to patio and lawn. Outside tap.

12’10 x 6’7 brick OUTHOUSE which would be ideal for a number of uses.

Benefits include gas fired central heating to radiators and uPVC framed double glazed windows.

Council Tax Band: C

Nearest Stations

  • Burgess Hill - 1.17miles
  • Wivelsfield - 1.40miles
  • Hassocks - 2.47miles
  • Haywards Heath - 3.76miles
  • Plumpton - 4.56miles

Contact the office to
discuss this property

01444 235665 Email us View your shortlist

Location

Floorplans

Floorplan for Denham Road, Burgess Hill, RH15
View PDF Brochure
⁡⁣⁣⁢

Request a Viewing

Contact the office to
discuss this property

01444 235665 Email us View your shortlist