5 Bed House Sold STC
Isewoods Way, Haywards Heath, RH16

Guide Price £600,000 (Freehold)

  • Attached home in prime Bolnore Village location
  • 1.1 mile walk to railway station (1.8 mile drive)
  • 5-10 min walk to Village Square & school - Warden Park Secondary Academy School catchment area
  • Anglian Conservatory added in 2022
  • Kitchen with stone worktops fitted in 2020/21
  • Refitted en-suite shower room & bathroom in 2025
  • Living room with wood burner and oak floor
  • 28' x 26' partly walled east facing rear garden - Driveway and garage behind
  • EPC rating: C - Council Tax Band: F

GUIDE PRICE … £600,000-£650,000

PLEASE WATCH THE VIDEO BEFORE BOOKING AN APPOINTMENT

A versatile 5 bedroom link-detached house which has been the subject of numerous recent upgrades, including a refitted kitchen, a new conservatory and 2 new bathroom suites situated in the highly desirable Upper Village area of Bolnore within walking distance of the town centre and railway station and very close to the Village Square, excellent primary school and the glorious countryside and woodland that surrounds the Village.

Estate charge: Bolnore Village is a privately managed estate with many communal areas and parks which are maintained for the enjoyment of all residents. Current year costs approx - £350.00.

Managing agents:  www.pembrokepm.co.uk

 

Location Summary

Isewoods Way is located off Trubwick Avenue in the most desirable Upper Village area of Bolnore village which is a modern development on the south western side of Haywards Heath. The Village has a great community spirit and is surrounded by glorious countryside and woodland interspersed with pathways giving swift access through to the town centre. There is a Village Square with a Co-op store and excellent primary school, sports fields, an all-weather sports, the Woodside Pavilion and a good nursery school. A regular bus service runs through the village linking with the town centre, the railway station, hospital and neighbouring districts.

The town has an extensive range of shops, stores, restaurants, cafes and bars, leisure centre, several schools and a 6th form college. Children from the village go onto Warden Park Secondary Academy in neighbouring Cuckfield.

Road access to the major surrounding areas can be gained via the A273, A272 and the A/M23 the latter lying about 4.5 miles to the west at Bolney.

Distances (in approximate miles)

Schools: Bolnore Village Primary (0.3), Warden Park Secondary Academy (1.5)

Mainline Station: Haywards Heath (1.15) provides fast commuter links to London (Victoria/London Bridge 47 mins), Gatwick Airport (15 mins) and the south coast (20 mins).

Council Tax Band: F

Nearest Stations

  • Haywards Heath - 0.96miles
  • Wivelsfield - 2.04miles
  • Burgess Hill - 2.81miles
  • Balcombe - 4.36miles
  • Horsted Keynes (Bluebell Railway) - 4.78miles

Contact the office to
discuss this property

01444 456431 Email us View your shortlist

Location

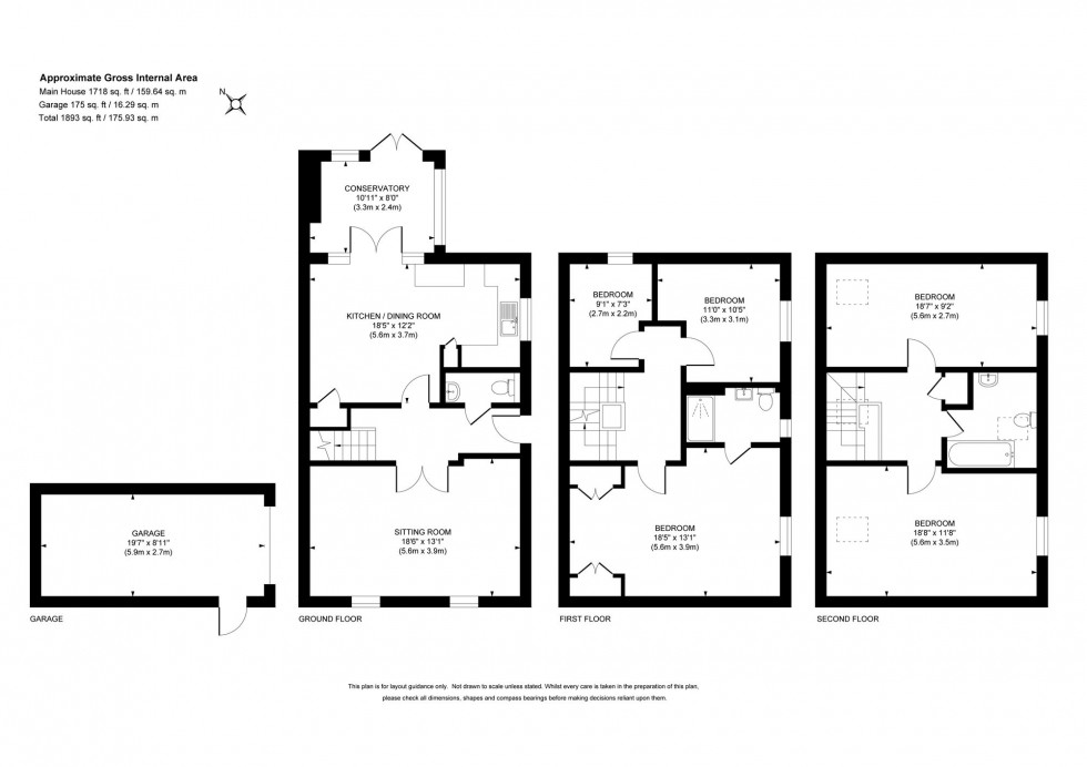
Floorplans

Floorplan for Isewoods Way, Haywards Heath, RH16
View PDF Brochure

Video Tours

⁡⁣⁣⁢

Request a Viewing

Contact the office to
discuss this property

01444 456431 Email us View your shortlist