3 Bed House For Sale
Fletcher Way, Haywards Heath, RH16

Guide Price £425,000 (Freehold)

  • Semi-detached house in Middle Village area of Bolnore
  • 42' x 27' max fully enclosed rear garden
  • Close to Village Square & Primary School
  • Double aspect sitting room - cloakroom
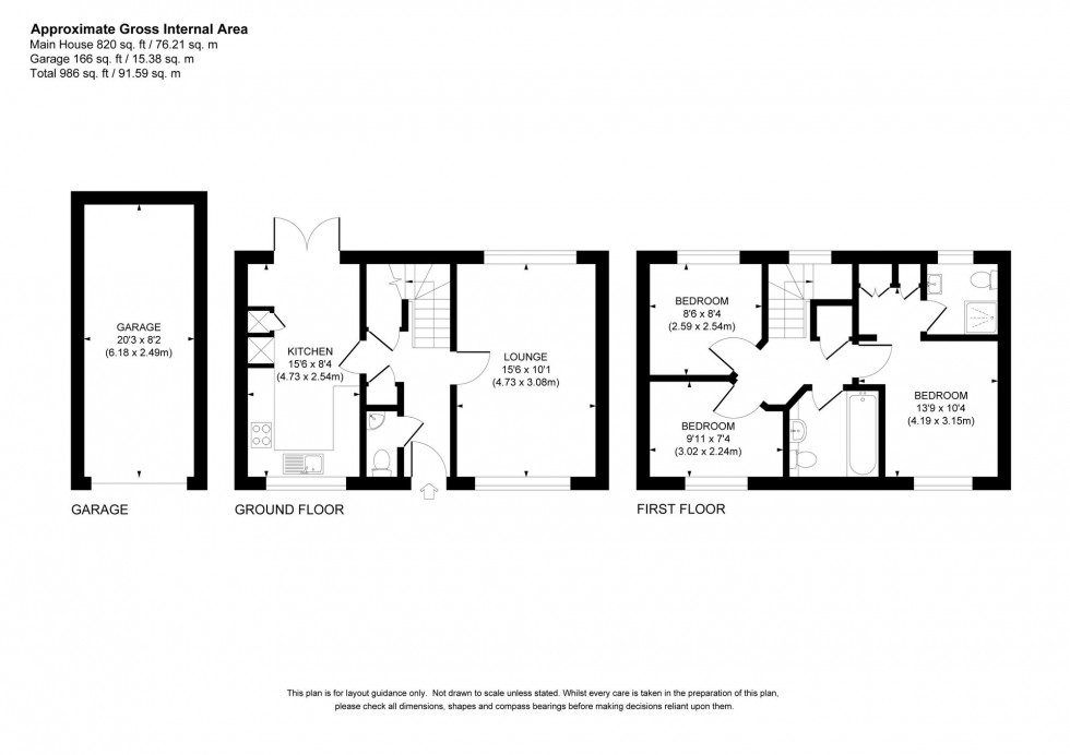
  • Beautiful kitchen re-fitted by Wren
  • Re-fitted en-suite shower room & bathroom
  • Garage with parking space in front close by
  • Several visitors parking spaces directly close by
  • Warden Park secondary Academy Catchment area - Close to children's parks & playing fields - Wonderful woodland ideal for dog walking
  • Walking distance to town centre and railway station

GUIDE PRICE … £425,000-£450,000

PLEASE WATCH THE VIDEO BEFORE BOOKING AN APPOINTMENT

A 3 bedroom semi-detached house tucked away in a cul-de-sac within the desirable Middle Village area of Bolnore, within a few minutes’ walk of the Village Square shops, an excellent primary school, ancient woodland walks and within walking distance of the town centre and railway station.

 

Location Summary

Fletcher Way is situated in the desirable Middle Village area of Bolnore close to the shops, excellent primary school, countryside and woodland walks, playing fields and the Woodside Pavilion with its numerous facilities. Bolnore is particularly popular with families and professionals and is fast becoming one of the most popular parts of the town. A regular bus service runs through the village linking with the town centre, hospital, railway station and neighbouring districts. On foot, it is possible to walk through to Bolnore and Ashenground Roads giving swift pedestrian access through to the town centre, hospital and railway station. The town has an extensive range of shops, stores, restaurants, cafes and bars.

There are schools for all age groups, a 6th form college and a leisure centre. Children from the village go onto Warden Park Secondary Academy in neighbouring Cuckfield.

By road, access to the major surrounding areas can be swiftly gained by the A272 town relief road and the A/M23 which lies approximately 5 miles to the west at Bolney.

Distances in miles on foot/car
Bolnore Primary School 400 yards
Warden Park Secondary Academy 1.8
Haywards Heath Railway Station 1.4
The Broadway 1.3
Brighton Seafront 14
Gatwick Airport 16

Estate charge: Bolnore Village is a privately managed estate and all residents pay an annual charge of approximately £500 paid in 2 half-yearly instalments for the upkeep of the communal areas, parks and maintenance.

Managing agents: Pembroke

Council Tax Band: D

Nearest Stations

  • Haywards Heath - 1.24miles
  • Wivelsfield - 1.75miles
  • Burgess Hill - 2.52miles
  • Balcombe - 4.63miles
  • Hassocks - 4.66miles

Contact the office to
discuss this property

01444 456431 Email us View your shortlist

Location

Floorplans

Floorplan for Fletcher Way, Haywards Heath, RH16
View PDF Brochure
⁡⁣⁣⁢

Request a Viewing

Contact the office to
discuss this property

01444 456431 Email us View your shortlist