3 Bed House For Sale
Northlands Avenue, Haywards Heath, RH16

Guide Price £375,000 (Freehold)

  • 3 bedroom semi-detached house
  • Bigger than average garden (52’ x 20’)
  • For sale with no onward chain
  • Garage en-bloc behind - Big timber shed
  • Double aspect lounge/dining room
  • Very clean and tidy throughout
  • Would require some modernisation
  • 0.4 mile walk to Princess Royal Hospital - 0.2 mile walk to Northlands Wood Primary
  • On a bus route to town centre and station - 20 Minute walk to Lindfield High Street
  • Council Tax Band 'D' and EPC 'E'

Guide Price £375,000 – £400,000 -

A 3 bedroom semi-detached house in need of some modernisation with a 52‘ x 20‘ fully enclosed rear garden with large shed and garage en-bloc behind situated in the popular Northlands Wood area of town close to the hospital, excellent local primary school, shops and within walking distance of the town centre and Lindfield Village

Location Summary

The property is tucked away up a pedestrian walkway between Northlands Avenue and Rowan Close, surrounded by properties of similar style and age, forming part of the popular Northlands Wood area close to the excellent local primary school on the town's south eastern outskirts. The area is particularly popular with families and those working at the Princess Royal Hospital (0.5 miles distant).

Council Tax Band: D

Nearest Stations

  • Haywards Heath - 1.18miles
  • Wivelsfield - 2.69miles
  • Burgess Hill - 3.46miles
  • Sheffield Park (Bluebell Railway) - 3.55miles
  • Horsted Keynes (Bluebell Railway) - 3.89miles

Contact the office to
discuss this property

01444 456431 Email us View your shortlist

Location

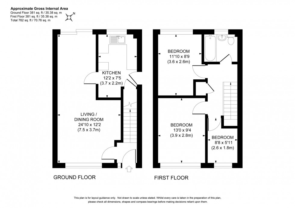
Floorplans

Floorplan for Northlands Avenue, Haywards Heath, RH16
View PDF Brochure

Video Tours

⁡⁣⁣⁢

Request a Viewing

Contact the office to
discuss this property

01444 456431 Email us View your shortlist