4 Bed House For Sale
Clementina Crescent, Haywards Heath, RH16

£675,000 (Freehold)

  • Built by David Wilson Homes in 2022 to the Holden design
  • 49‘ x 43‘ fully enclosed rear garden
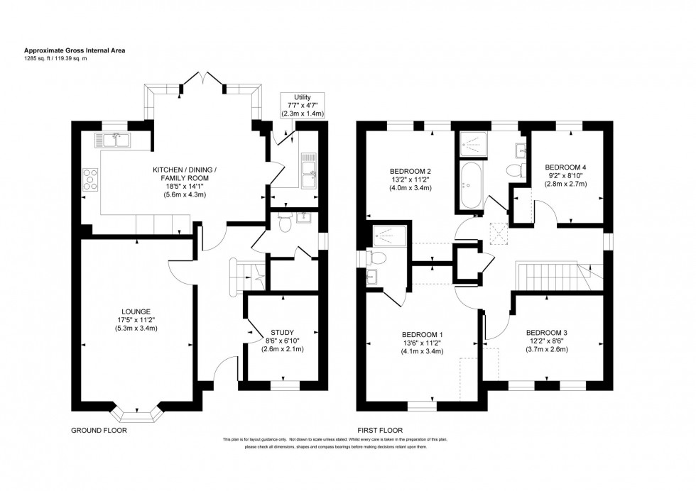
  • Well proportioned accommodation of 1,285 sq. feet
  • Driveway for 2 cars and detached garage alongside
  • Fantastic family sized kitchen/living room - Lounge, study, utility and cloakroom
  • Master bedroom with en-suite shower room
  • 3 further double bedrooms and family bathroom
  • Warden Park Secondary Academy School catchment
  • Short walk of countryside, parks and play areas
  • EPC rating: B - Council Tax Band: F

PLEASE WATCH THE VIDEO BEFORE BOOKING AN APPOINTMENT -

A most attractive, almost new, 4 bedroom detached family house with a driveway and detached garage alongside occupying one of the largest plots within the popular Wychwood Park development on the town’s southern edge and a short walk of countryside.

Estate charge: Approx £300 per year.

The property forms part of a privately managed estate where all residents pay towards the upkeep of the communal areas, parks and wildlife corridors. 

Managing agents: hobdensmanage.co.uk, Estate Manager Mike Mitchell T: 01903 724040

 

Location Summary

The property is situated on the eastern side of Barratt/David Wilson Homes' Wychwood Park development which in turn is situated off Rocky Lane on the town’s southern outskirts close to countryside.

A public footpath just to the west leads through to Rookery Way linking with Fox Hill and Rocky Lane giving swift pedestrian access to the town centre and bus stops for both Warden Park Secondary Academy School and Chailey Secondary School. The footpath will continue down through the development once completed and link with countryside and the river making a rather pleasant country walk through to the Fox and Hounds pub and the old village of Wivelsfield. A new primary school is to be built off Hurstwood Lane.

The town centre has an extensive range of shops, stores, restaurants, cafés and bars, a leisure centre, a 6th form college and several good primary schools.

By road, access to the major surrounding areas can be gained via Rocky Lane (A272) and the A/M23 which lies about 7 miles to the west at Bolney or Warninglid.

Distances on foot/car/rail
Haywards Heath Railway Station 1.9 (fast commuter services to London Bridge/Victoria 45 mins, Gatwick Airport 15 mins and Brighton 20 mins.
Wivelsfield Station 2.2

Council Tax Band: F

Nearest Stations

  • Haywards Heath - 1.48miles
  • Wivelsfield - 1.59miles
  • Burgess Hill - 2.37miles
  • Plumpton - 4.28miles
  • Sheffield Park (Bluebell Railway) - 4.47miles

Contact the office to
discuss this property

01444 456431 Email us View your shortlist

Location

Floorplans

Floorplan for Clementina Crescent, Haywards Heath, RH16
View PDF Brochure

Video Tours

⁡⁣⁣⁢

Request a Viewing

Contact the office to
discuss this property

01444 456431 Email us View your shortlist