3 Bed House Sold STC
Valley Road, Lewes, BN7

Guide Price £425,000 (Freehold)

  • £425,000 - £450,000 GUIDE PRICE
  • POTENTIAL TO EXTEND stpp
  • CORNER PLOT WITH MOSTLY SOUTHERLY FACING GARDEN
  • 3 BEDROOMS PLUS ADDITIONAL LOFT ROOM
  • SITTING ROOM with fireplace
  • KITCHEN/BREAKFAST ROOM
  • OFF STREET PARKING FOR 2 VEHICLES
  • POPULAR WINTERBOURNE AREA
  • VIEWING RECOMMENDED
  • NO ONWARD CHAIN

£425,000 - £450,000 GUIDE PRICE

A great opportunity to purchase this well presented 3 Bedroom, semi-detached home in the popular Winterbourne Area of Lewes. 

Occupying a corner plot the property boasts a wraparound garden which is mostly South Facing and accommodates a timber built Workshop and Off Street Parking for 2 vehicles. 

The accommodation briefly comprises of a generously sized Sitting Room with fireplace, A Kitchen Breakfast Room, Conservatory and Ground Floor Bathroom. 

Upstairs to the first floor we find 3 comfortable Bedrooms and a decorated Loft Room to the second floor. 

Whilst well presented throughout, the property and plot seem to offer potential to extend the property, naturally this is subject to the necessary permissions and consents, but as others have done so in the road.

VIEWING RECOMMENDED

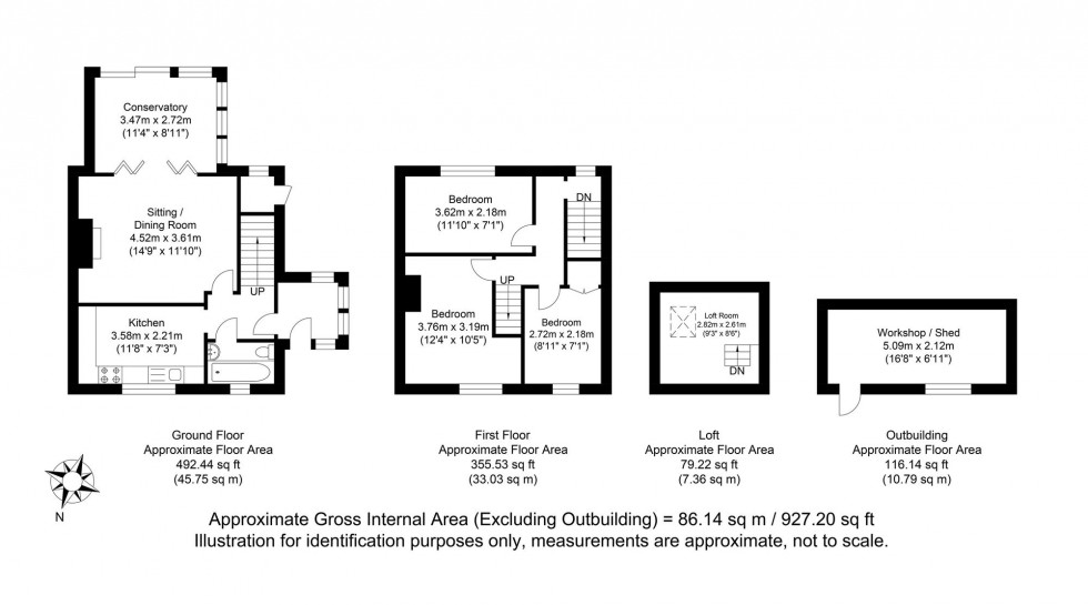
ENTRANCE PORCH- A generously sized entrance porch enjoying triple aspect views over the garden. front door with stained glass window inset. Tiled floor. Door to;

ENTRANCE HALL- Stairs to first floor, stripped wood doors to principal rooms.

SITTING ROOM- A generously sized reception roomwith fireplace and timber mantel, ceiling light and wall mounted lights, glazed bi-fold doors open to;

CONSERVATORY- A dual aspect conservatory with patio doors enjoying views and access to the rear garden.

KITCHEN BREAKFAST ROOM- Fitted kitchen finished in a timeless white. The kitchen comprises of a range of wall and base units built in an L shape with excellent worksurface space and tiled splashbacks. Views to the front with views over the front garden. Painted wood panelled wall.

GROUND FLOOR BATHROOM- Modern white suite comprising of a bath with shower over and glass screen door, wc and wash hand basin. Tiled surrounds and window to the front.

FIRST FLOOR LANDING- Window the rear. Stripped wood panelled doors to principal rooms. Wooden handrail and balustrade over stairs. Stairs continue to Second Floor

BEDROOM 1- Double bedroom with elevated views to the front.

BEDROOM 2- Another double bedroom with elevated views over the rear garden and beyond.

BEDROOM 3- A further comfortable bedroom with elevated views to the front and wardrobe with double doors.

LOFT ROOM – A decorated and carpeted loft room with roof window and eaves storage.

 

OUTSIDE

FRONT & SIDE GARDEN- Mostly laid to lawn and enclosed by a fenced boundary with mature hedges. Pathway to front door and to the side into the rear garden.

REAR GARDEN- Of a desirable Southerly aspect the garden has been landscaped to create a terrace with a circular paved patio which extends into an area of gravel. A brick laid pathway then meanders through the garden passing the driveway and onto a second terrace of gravel amongst numerous flower beds. At the end of the garden is a useful timber built Workshop/Garden Studio

DRIVEWAY- Located at the rear of the property and accessible from the adjoining road to the side. The brick laid driveway provides off street parking for three vehicles.

Valley Road is located within the popular Winterbourne area of Lewes with a local convenience store just around the corner. It is conveniently located for Lewes High Street and Mainline Railway Station with direct trains to London Victoria, Brighton, Gatwick, and Eastbourne. The High Street is surprisingly close by taking just a 12 minute walk via Rotten Row. (source Google Maps) 

The Winterbourne area benefits from a good sized Recreation Ground and newly renovated Children’s Playground and boasts great access to scenic walks across the South Downs National Park. Easy road access and bus access to Brighton and motorways. 

Lewes High Street offers an array of shops, restaurants, eateries and public houses. Lewes further features a Leisure Centre, open air swimming pool and The Depot Cinema. 

Lewes’ highly regarded primary schools are also an easy walk as are Priory Secondary School, Sussex Downs College, and Lewes Old Grammar School. 

 

Tenure – Freehold 

Gas Central Heating - Double Glazing. 

EPC Rating – D 

Council Tax Band – C

 

Council Tax Band: C

Nearest Stations

  • Lewes - 0.71miles
  • Cooksbridge - 2.39miles
  • Southease - Piddinghoe Road - 2.91miles
  • Southease - 3.05miles
  • Glynde - 3.34miles

Contact the office to
discuss this property

01273 407929 Email us View your shortlist

Location

Floorplans

Floorplan for Valley Road, Lewes, BN7
View PDF Brochure
⁡⁣⁣⁢

Request a Viewing

Contact the office to
discuss this property

01273 407929 Email us View your shortlist