3 Bed House For Sale
Ashenground Close, Haywards Heath, RH16

Guide Price £500,000 (Freehold)

  • Highly versatile home in cul-de-sac
  • Fantastic 110' x 50' west facing plot
  • Established and secluded gardens
  • Plenty of driveway parking – garage/workshop
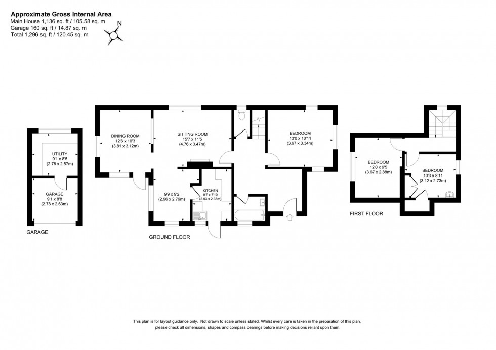
  • 4 ground floor living areas, kitchen & bathroom
  • 2 double size first floor bedrooms
  • Requires general updating throughout
  • Tremendous potential for extending STPP
  • 5-10 min walk to Ashenground Woods & town centre - 1.1 mile walk to railway station via Victoria Park
  • EPC rating: D - Council Tax Band: E

GUIDE PRICE … £500,000-£525,000

PLEASE WATCH THE VIDEO BEFORE BOOKING AN APPOINTMENT

A versatile 2/3 bedroom, 3/4 reception room detached chalet-style house occupying an established and secluded plot in a short cul-de-sac on the southern side of town, offering tremendous potential for enlargement and requiring some updating.

Location Summary

The property is situated in a cul-de-sac off Ashenground Road on the town's southern side, surrounded by other individual homes. This established residential area is particularly popular with families and commuters as it is ideally placed within a very short walk of the town centre, several schools, Victoria Park, glorious woodland and just over a mile of the railway station on foot via Victoria Park. The town has an extensive range of shops, stores, restaurants, cafes and bars, a leisure centre, 6th form college and numerous sports clubs and leisure groups. Schools are well represented and the property is within walking distance of several primary schools including Bolnore Village Primary, which is within a very pleasant walk through the Woods. Children from this side of town go onto Warden Park Secondary Academy in neighbouring Cuckfield. Ashenground and Bolnore Woods provide some wonderful walks and the local area has numerous beauty spots including both Ditchling and Chailey Common nature reserves, the Ashdown Forest and the South Downs National Park. By road, access to the major surrounding areas can be gained via the A272 and the A/M23, the latter lying about 5.5 miles to the west at Bolney or Warninglid.

Distances in miles on foot (approximately)
Bolnore Villlage Primary (0.7)
St Wilfrid's C of E Primary (0.85)
Warden Park Primary Academy (0.85)
St Joseph's RC (0.75)
Warden Park Secondary Academy (1.8)
Oathall Community College (1.3)
St Pauls R C Secondary College (3.5)
Haywards Heath Mainline Railway Station (1.15) - fast commuter services to London (Victoria/London Bridge 47 mins), Gatwick Airport (15 mins) and the south coast (Brighton 20 mins)

Council Tax Band: E

Nearest Stations

  • Haywards Heath - 1.00miles
  • Wivelsfield - 1.97miles
  • Burgess Hill - 2.76miles
  • Sheffield Park (Bluebell Railway) - 4.55miles
  • Horsted Keynes (Bluebell Railway) - 4.64miles

Contact the office to
discuss this property

01444 456431 Email us View your shortlist

Location

Floorplans

Floorplan for Ashenground Close, Haywards Heath, RH16
View PDF Brochure

Video Tours

⁡⁣⁣⁢

Request a Viewing

Contact the office to
discuss this property

01444 456431 Email us View your shortlist