4 Bed House For Sale
Station Road, Plumpton Green, BN7

In Excess of £950,000 (Freehold)

  • EDWARDIAN SEMI-DETACHED HOME
  • PLANNING PERMISSION FOR DETACHED 4 BEDROOM, 3 BATHROOM HOUSE
  • PLANNING REFERENCE LW/25/0008 (APPROVED APRIL 2025)
  • FOUR DOUBLE BEDROOM MAIN HOUSE
  • WONDERFUL COUNTRYSIDE VIEWS
  • GENEROUS WESTERLY FACING GARDEN
  • MANY ORIGINAL CHARACTER FEATURES
  • SITTING ROOM AND DINING ROOM WITH BAY WINDOWS AND FIREPLACES
  • KITCHEN BREAKFAST ROOM WITH AGA
  • VIEWS OF HISTORIC CHURCH AND SURROUNDING COUNTRYSIDE

Overview

A fantastic opportunity to purchase this wonderful Edwardian semi-detached home in the pretty, sought after village of Plumpton.

 

Planning Permission was approved in April 2025 to develop the side garden into a Detached, 4 Bedroom, 3 Bathroom home. Planning Reference LW/25/0008

 

The existing 4 Bedroom home boasts wonderful views of the adjoining countryside and benefits from a generously sized Westerly facing garden.

 

Inside the well presented home has many character features such as fireplaces, picture rails and exposed panelled doors.

 

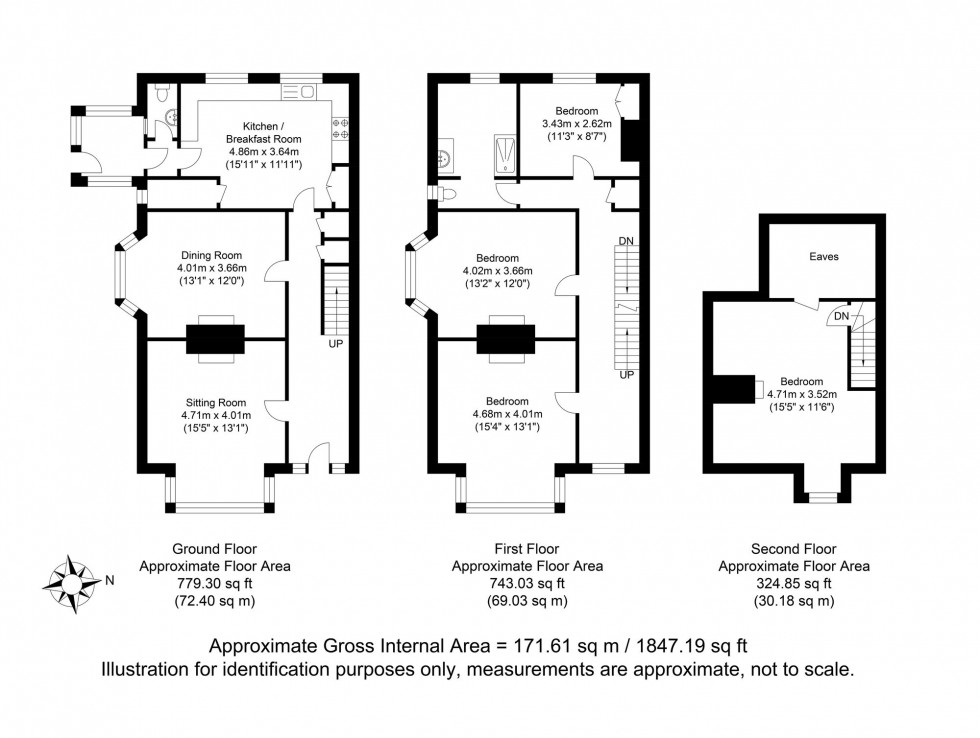
The property features a Sitting Room and Dining Room both with bay windows and fireplaces a Kitchen Breakfast Room with AGA and a ground floor cloakroom. Upstairs over the first and second floors there is a Modern Shower Room and  4 Double Bedrooms, two of which enjoy views of the historic church and one has magnificent views of the adjoining countryside.

The property

ENTRANCE HALL- A generous entrance hall with stripped wood panelled doors to principal rooms. A grand staircase with wooden handrail and decorative balustrade leads to the first floor. Front door with beautiful stain glass windows inset and to either side.

 

SITTING ROOM- A wonderful reception room with impressive bay window comprising of four sashes enjoying views over the front garden. Fireplace with timber mantel and decorative tiles inset. Picture rail.

 

DINING ROOM- Another generously sized reception room with bay window and views over the garden to the side. Ornate fireplace with timber mantel and surround and tiled inset. Picture rail.

 

KITCHEN BREAKFAST ROOM- Modern fitted kitchen finished in a timeless white and complimented by grey coloured worksurfaces. The kitchen comprises of an excellent choice of cupboards and drawers and an enviable larder cupboard. The kitchen enjoys views over the rear garden and onto farmland beyond. AGA set into chimney recess and wood panelled door to;

 

REAR LOBBY- Door to Cloakroom and Door to Boot Room.

 

CLOAKROOM- Latched door, white suite comprising of wc and wash hand basin. Painted brick walls.

 

BOOT ROOM- Triple aspect windows with views and access to the garden.

 

FIRST FLOOR LANDING- Stripped wood panelled doors to principal rooms. Wooden hand rail and balustrade over stairs with stairs continuing to second floor. Linen cupboard. Reading nook with sash window to the front with elevated views to the pretty church opposite.

 

SHOWER ROOM- Modern suite comprising of a generously sized shower enclosure, wc and wash hand basin. The bathroom provides plenty of modern vanity storage and enjoys elevated views over the rear garden and countryside beyond. Heated towel rail.

BEDROOM 1- A wonderful principal bedroom with squared bay windowenjoying elevated viewsof the church across the road. Ornate fireplace with decorative tiles inset, exposed floorboards and picture rail.

 

BEDROOM 2- A generously sized double bedroom with bay window to the side. Picture rail and pretty fireplace with decorative tiles inset.

 

BEDROOM 4- A comfortable bedroom with double wardrobe and elevated views over the garden and onto the adjoining countryside beyond.

 

SECOND FLOOR LANDING- Wood panelled door to;

 

BEDROOM 3- A generously sized double bedroom with views of the church. The bedroom features exposed floorboards, and an ornate fireplace. Eaves storage cupboard.

 

 

 

OUTSIDE

 

GARDEN- The property sits to the middle of the plot boasting an extensive front garden which is mostly laid to lawn and enclosed by ahedged boundary. The rear gardenboasts wonderful views of the adjoining countryside, also of a generous size and mostly laid to lawn. The garden features a paved patio adjacent to the property, ideal for dining and entertaining, there is an ornamental pond, and the garden is enclosed by a fenced and hedged boundary.

 

Planning Permission has been obtained to develop a driveway to the front of the property providing off street parking for several vehicles.

Plumpton Village boasts a Mainline Railway Station with regular services to Lewes, London and Gatwick. The pretty village is home to a popular Convenience Shop, a well referred Primary School, a nursery school, The Fountain Public House with two further inns located to the outskirts of the village. There is a childrens playground, historic church and Plumpton Agricultural College is close by.

 

Plumpton is also home to Plumpton Racecourse which hosts a number of race fixtures throughout the rear but also family orientated events.

 

The larger towns of Lewes, Haywards Heath and Burgess Hill are just a short drive, bus journey or train ride away. 

Title- Freehold 

Oil Fired Central Heating 

EPC Rating- F 

Council Tax Band - E

Building plot

Planning Permission has been Approved to construct a Detached 4 Bedroom, 3 Bathroom property to the side of Winkfield.

 

The 1,754 sq ft home would provide 4 Bedrooms, 2 EnSuite Dressing Rooms and 2 EnSuite Shower Rooms with a Further Family Shower Room. The property would accommodate an Open Plan Kitchen Dining Room and Sitting Room and also a Utility Room with Ground Floor Cloakroom.

 

The three-storey dwelling was approved in April 2025 with planning reference LW/25/0008 and was designed by Scandi Hus who own the architects drawings.

 

The completed property would boasts wonderful views across the local countryside, benefit from a generous garden of a desirable Westerly aspect and a generous amount of off street parking and feature Solar PV generating electricity

 

 

 

Council Tax Band: E

Nearest Stations

  • Plumpton - 0.43miles
  • Cooksbridge - 3.12miles
  • Burgess Hill - 3.17miles
  • Wivelsfield - 3.30miles
  • Hassocks - 3.77miles

Contact the office to
discuss this property

01273 407929 Email us View your shortlist

Location

Floorplans

Floorplan for Station Road, Plumpton Green, BN7
View PDF Brochure
⁡⁣⁣⁢

Request a Viewing

Contact the office to
discuss this property

01273 407929 Email us View your shortlist