3 Bed House For Sale
Lewes Road, Lindfield, RH16

Guide Price £625,000 (Freehold)

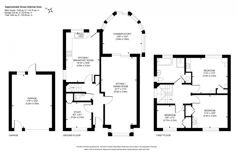
  • **NO ONWARD CHAIN** A centrally located 3 Bedroom, 4 Reception Room detached village home situated only a stones throw from Lindfield Common
  • Reception Hall + Study (optional Play Room / Bedroom 4) + ground floor Cloakroom/WC
  • Good sized open plan bay fronted Sitting / Dining Room + adjoining Conservatory
  • Extended Kitchen / Breakfast Room + extensive fitted units, space for appliances + table / chairs
  • First Floor: 3 Bedrooms (2 Doubles / 1 Single) all with built-in wardrobes
  • Re-fitted modern white Family Bath / Shower Room
  • Gas fired warm air vented heating system / some electric heating + uPVC double glazed window
  • 40' x 17' Frontage + 60' x 36' North East facing Rear Garden laid to patio / lawn + Parking + Garage to the rear
  • Short walk of the picturesque tree-lined High Street + highly regarded local schooling
  • EPC Rating: D and Council Tax Band: F

Guide Price £625,000 - £640,000 *PLEASE WATCH VIEWING VIDEO*

**AVAILABLE WITH NO CHAIN** A centrally located and extended 3 Bedroom, 4 Reception Room detached village home situated only a stones throw from Lindfield Common.

Reception Hall stairs to first floor, cupboard housing warm air heating system. Study (optional Play Room / Bedroom 4) with storage cupboard. Ground floor Cloakroom/WC fitted white suite. Good sized open plan bay fronted Sitting /Dining Room. Adjoining Conservatory with doors to garden. Extended Kitchen / Breakfast Room extensive fitted units, space for appliances, table / chairs plus stable door to garden.

First Floor - landing with side window and loft hatch. 3 Bedrooms (2 Doubles / 1 Single) all with built-in wardrobes. Family Bath / Shower Room re-fitted with a modern white suite. Gas fired warm air vented heating system / some electric heating and uPVC double glazed windows.

Outside - 40' x 17' Frontage, side gate around to the 60' x 36' North East Rear Garden laid to patio and lawn with fish pond, tucked away garden shed. Parking and Garage to the rear. Short walk of the Common, High Street and highly regarded local schooling.

Lindfield is one of the most desirable villages in the Southeast and has just been named the best place to live in 2026 in The Times and The Sunday Times.

Location Summary

LOCATION - The Lewes Road runs alongside the village common and is a short walk of local shops, stores, boutiques, churches, pond, common and historical properties. Lindfield has numerous sports clubs, leisure groups and societies including the Bonfire Society.
BY ROAD - Access to the major surrounding areas can be gained via the A272 and the A23/M23 linking with Gatwick Airport and M25.
SCHOOLS - Lindfield Primary (0.5 miles) Blackthorns Primary (1.2 miles) and Oathall Community College (1.2 miles).The local area is well served by several independent schools including: Great Walstead (1.1 miles) and Ardingly College (3 miles).
STATION - Haywards Heath mainline railway station (1.6 miles) Fast and regular services to London (Victoria/London Bridge 47 mins), Gatwick Airport (15 mins) and Brighton (20 mins).

Council Tax Band: F

Nearest Stations

  • Haywards Heath - 1.23miles
  • Horsted Keynes (Bluebell Railway) - 2.96miles
  • Sheffield Park (Bluebell Railway) - 3.40miles
  • Wivelsfield - 3.60miles
  • Balcombe - 4.15miles

Contact the office to
discuss this property

01444 484084 Email us View your shortlist

Location

Floorplans

Floorplan for Lewes Road, Lindfield, RH16
View PDF Brochure

Video Tours

⁡⁣⁣⁢

Request a Viewing

Contact the office to
discuss this property

01444 484084 Email us View your shortlist