2 Bed Retirement Property For Sale
Warren Drive, Lewes, BN7

Guide Price £180,000 (Leasehold)

  • RETIREMENT FLAT FOR THOSE OVER 55 YRS
  • 2 BEDROOMS
  • FIRST FLOOR APARTMENT
  • MODERN KITCHEN
  • MODERN SHOWER ROOM
  • GENEROUS SITTING ROOM
  • POPULAR WINTERBOURNE LODGE DEVELOPMENT
  • WARDEN ASSISTED
  • CLOSE TO BUS STOPS TO HIGH STREET & BRIGHTON

Winterbourne Lodge is a popular retirement development on the western side of Lewes for those aged 55 and above. The properties benefit from an onsite warden who is available during working hours, and 24-hour emergency assist pull chords. There is a communal Laundry Room and guest suite that can be hired and booked in advance for a nominal fee.

Communal Entrance – Secure Entry Phone System. Front door opens to a communal entrance hall with stairs rising to the first floor.

Entrance Hall – Generously sized storage cupboard, doors to principal rooms.

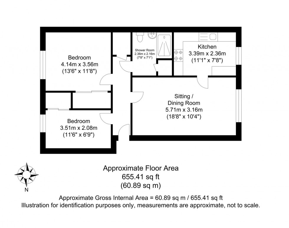
Sitting/Dining Room – Measuring a generous 18’8 with modern double-glazed window with views to the front to the West. Picture rail, wall mounted and ceiling lights, door to;

Kitchen – Modern fitted kitchen finished in a timeless white and complemented by darker coloured worksurfaces and a colour tiled splashback. The kitchen comprises of a range of cupboards and drawers, provides space for appliances and enjoys views to the front.

Bathroom – Modern suite comprising of a Shower with attached seat, tiled surround and glass screen. Handwash basin with several modern white vanity units below, LLWC and airing cupboard.

Bedroom 1 – Double room with Easterly facing double glazed windows overlooking the communal grounds and treeline outside. Fitted wardrobe.

Bedroom 2 – Featuring an Easterly aspect double glazed window and built in wardrobe.

Communal Gardens - An attractive feature of this property are the pretty gardens which wrap around the building. The gardens are typically laid to lawn with established plants and shrubs.

Parking – Off Street Parking for residents and guests is available on a first come first serve basis but parking is often available.

 

Warren Drive is located on the western side of Lewes and benefits from easy access with a short and direct pathway to bus stops offering direct services to Brighton and Lewes town centre. Local shops and scenic walks over the South Downs are a short walk away. Lewes further benefits from a Cinema, comprehensive High Street and Mainline Railway Station with direct services to London and Brighton.

 

Gas Central Heating – Double Glazing

Tenure – Leasehold with ap 57 years remaining

Service Charge & Ground Rent – apx £237.60 PCM

EPC Rating – C

Council Tax Band – C

Lease extension - apx £36,000

Council Tax Band: C

Nearest Stations

  • Lewes - 0.70miles
  • Cooksbridge - 2.22miles
  • Southease - Piddinghoe Road - 3.07miles
  • Southease - 3.20miles
  • Glynde - 3.37miles

Contact the office to
discuss this property

01273 407929 Email us View your shortlist

Location

Floorplans

Floorplan for Warren Drive, Lewes, BN7
View PDF Brochure
⁡⁣⁣⁢

Request a Viewing

Contact the office to
discuss this property

01273 407929 Email us View your shortlist