3 Bed House For Sale
Munnion Road, Ardingly, RH17

Guide Price £550,000 (Freehold)

  • A tucked away 3 Bedroom, 2 Bath/Shower link-detached village property built by Munnion in 1964 + excellent scope for alteration / enlargement (STPP) to create your own home!
  • Offered for sale with Vacant Possession + No Chain
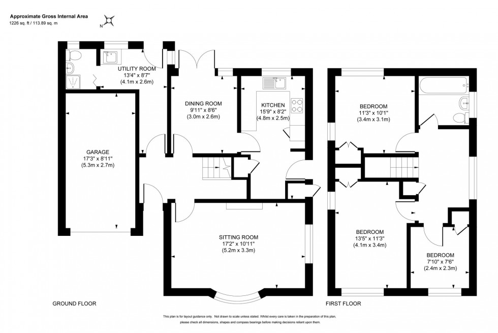
  • Entrance Hall + stairs to first floor
  • Double aspect bay fronted Sitting Room + open fire + separate Dining Room
  • Kitchen fitted with a range of units + Utility Room/Shower Room/WC
  • First Floor: 3 Bedrooms (2 Doubles + 1 Single) and separate Family Bathroom
  • Gas fired central heating to radiators + double glazed/secondary glazed windows + solar panels
  • 50' x 40' South East facing rear Garden laid to patio and lawn + lawned Front Garden
  • 27' Private Driveway + Single Garage + EPC Rating: C and Council Tax Band: E
  • The picturesque 180 acre Ardingly Reservoir is within walking distance + offers water sports activities in addition to pleasant walks

*PLEASE WATCH VIEWING VIDEO*

A tucked away 3 Bedroom, 2 Bath/Shower link-detached village property built by Munnion in 1964. Excellent scope for alteration / enlargement(STPP) to create your own home! Vacant Possession + No Chain

Entrance Hall stairs to first floor. Double aspect bay fronted Sitting Room feature open fireplace. Separate Dining Room with door to garden. Kitchen fitted range of units, space for appliances, Ideal Mexico 2 gas boiler, storage and side door. Utility Room/Shower Room/WC plumbing for appliances and door to garden. Shower cubicle, low level WC and wash basin.

First Floor landing - side window, airing cupboard and loft hatch (ladder and lighting). 3 Bedrooms (2 Doubles + 1 Single all with built-in storage). Family Bathroom coloured suite, bath, low level WC, wash basin and side window.

Gas fired central heating, double glazed windows / secondary glazing plus solar panels, parquet wood flooring in the Hall, Sitting, Dining rooms underneath carpets.

Outside - Lawned Front Garden (Frontage - 42’ wide) 27’ Private Driveway block paved for 2 vehicles single Garage electric up and over door, power, lighting, solar panel inverter / battery. Enclosed 50’ x 40’ South East Rear Garden patio and lawn, small pond, greenhouse, summerhouse and timber fencing.

Location Summary

LOCATION - Munnion Road is a no through road located off College Road. Ardingly is located in the High Weald area of outstanding natural beauty and benefits from a central High Street with shops and stores, including Fellows Bakery and public houses. The picturesque 180 acre Ardingly Reservoir
is within walking distance and offers water sports activities in addition to pleasant walks. Haywards Heath town centre is 4 miles and offers a comprehensive range of shopping facilities.
SCHOOLS -There is St Peters Primary School in the village plus Ardingly College located nearby. Children from the village fall into the catchment area for Oathall Community College (secondary school) for which there is a bus service.
STATION - Haywards Heath mainline railway station provides fast and regular services to London (Victoria/London Bridge 47 mins), Gatwick Airport and the South coast (Brighton 20 mins). Alternatively, neighbouring Balcombe also has a railway station.
BY ROAD - Easy access can be gained to the nearby towns of East Grinstead and Crawley via the B2028 or Junction 10a onto the A/M23.

Council Tax Band: E

Nearest Stations

  • Horsted Keynes (Bluebell Railway) - 1.62miles
  • Balcombe - 2.47miles
  • Haywards Heath - 3.00miles
  • Kingscote (Bluebell Railway) - 4.17miles
  • Sheffield Park (Bluebell Railway) - 4.95miles

Contact the office to
discuss this property

01444 484084 Email us View your shortlist

Location

Floorplans

Floorplan for Munnion Road, Ardingly, RH17
View PDF Brochure

Video Tours

⁡⁣⁣⁢

Request a Viewing

Contact the office to
discuss this property

01444 484084 Email us View your shortlist