2 Bed Flat Let Agreed
New England Road, Haywards Heath, RH16

£1,250PCM

  • A spacious, two double bedroom, first floor maisonette with a front garden area
  • Ideally located within a few minute's walk to the town centre & easy walking distance to the station
  • Now available, unfurnished. EPC Rating C. Council Tax Band B.

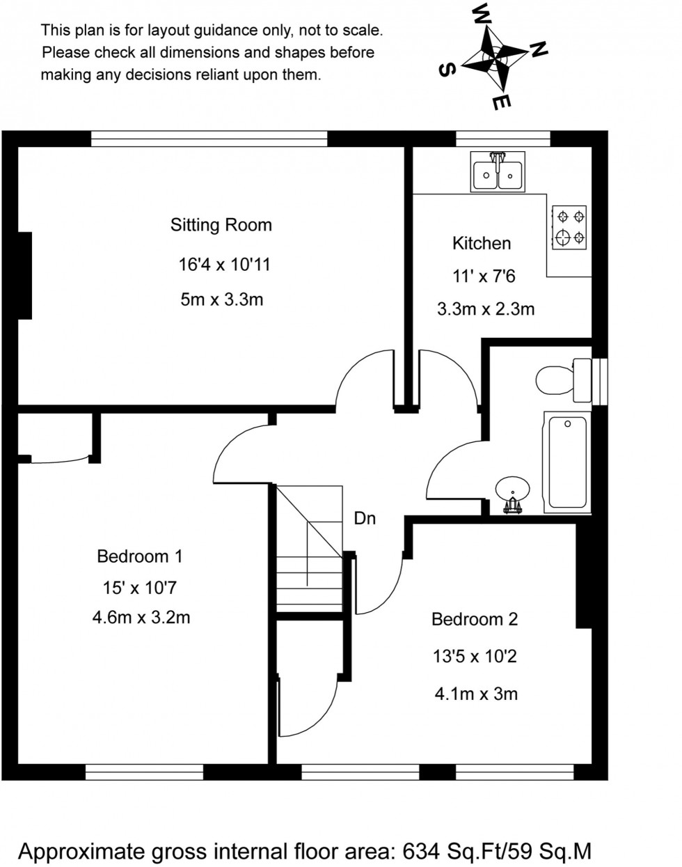
A spacious, well presented, two double bedroom, first/top floor maisonette, ideally located within a few minute’s walk to the town centre and easy walking distance to the station. Accommodation includes: Own front door with stairs leading to the first floor which has a spacious lounge/diner with a feature fireplace, modern fitted kitchen with some appliances, both bedrooms have built in cupboards, modern fitted bathroom with a shower over the bath. The property also benefits from a front garden area and gas fired central heating. It is now available, unfurnished. EPC Rating C. Council Tax Band B.

Council Tax Band: B

Nearest Stations

  • Haywards Heath - 0.52miles
  • Wivelsfield - 2.58miles
  • Burgess Hill - 3.37miles
  • Horsted Keynes (Bluebell Railway) - 4.02miles
  • Balcombe - 4.23miles

Contact the office to
discuss this property

01444 239822 Email us View your shortlist

Location

Floorplans

Floorplan for New England Road, Haywards Heath, RH16

Video Tours

Request a Viewing

Contact the office to
discuss this property

01444 239822 Email us View your shortlist