3 Bed House Sold STC
Malling Down, Lewes, BN7

Guide Price £450,000 (Freehold)

  • SOLD STC by Mansell McTaggart
  • 3 BEDROOMS
  • STUNNING FAR REACHING VIEWS
  • OFF STREET PARKING AND GARAGE AT THE REAR
  • SOUTH EAST FACING REAR GARDEN
  • SITTING ROOM WITH WOODBURNING STOVE
  • FURTHER RECEPTION ROOM
  • MODERN KITCHEN/BREAKFAST ROOM
  • MODERN FAMILY BATHROOM
  • MANY ORIGINAL FEATURES

SOLD STC by Mansell McTaggart

A great opportunity to purchase a 3 bedroom family home with magnificent Far Reaching Views across the Ouse Valley, South Downs and the Ashdown Forest in the far distance.

The extended 1920’s home boasts many character features such as panelled doors, exposed floorboards and fireplaces.

The property is particularly well presented throughout, featuring a modern, light and bright, Bathroom, modern Kitchen Breakfast Room and generously sized, south east facing rear Garden and even a detached Garage and Parking at the rear.

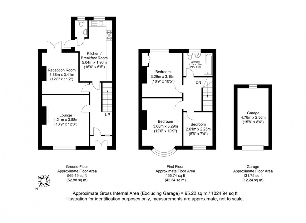
The accommodation briefly comprises of a Sitting Room with wood burning stove, Kitchen Breakfast Room, further Reception Room with double doors to garden, a ground floor Cloakroom. Upstairs we find 3 Bedrooms and a modern Family Bathroom.

Approach – Pathway leads through front garden to Entrance Porch.

Entrance Porch – Double doors open into the entrance hall with front door opening to;

Entrance Hall – Window to front, stairs rising to first floor painted panelled doors to principal rooms.

Sitting Room – Measuring a generous 13’9 x 12’8 and boasting Magnificent far-reaching views across the Ouse Valley, South Downs and Ashdown Forest in the far distance. Feature fireplace with timber mantel and surround and wood burning stove inset.

Reception Room – Currently presented as a ground floor double bedroom the reception features double doors leading onto the garden and exposed painted floorboards.

Kitchen / Breakfast Room – Modern fitted kitchen comprising of a range of wall and base units with cupboards and drawers, finished in a soft grey and complimented by high quality quartz worksurfaces. The extended kitchen enjoys viewings and access to the garden.

Cloakroom – Ground floor wc and wash hand basin.

First Landing – Painted panelled doors to principal rooms.

Bathroom - Modern white suite comprising of a bath with shower over and glass screen door. Low level W.C. Wash hand basin set into a vanity unit. Modern tiled surrounds.

Bedroom 1 – Boasting magnificent far reaching views across the Ouse Valley, South Downs and the Ashdown Forest in the far distance.

Bedroom 2 – A double bedroom with elevated views over the garden.

Bedroom 3 – A comfortable single bedroom with elevated and far reaching views across the Ouse Valley.

Garage – Detached garage located at the end of the rear garden and access via a track leading up from Malling Down.

Front Garden – Laid to lawn and enclosed by hedged boarders. Pathway to front door.

Garden – A generously sized, South Easterly facing garden. The garden has been cleverly designed with a focus on privacy and boasts a generous patio area under a pergola providing an alfresco dining area. The garden is otherwise laid to lawn with a paved patio adjacent to the property and bushes and shrubs to the boarders. There is a greenhouse within the garden and brick laid path leads to a Garage located at the end of the garden and accessible from a lane behind.

Location

Malling Down is located in the North East corner of Lewes which boasts magnificent far reaching views across the Ouse Valley, South Downs and the Ashdown Forest in the far distance.

A local convenience shop, popular primary school and recreation field and children’s park can be found within easy walking distance and a regular bus services offers transport to Lewes town centre and Brighton via a bus stop at the end of the road.

Historic Lewes High Street is an 18 minute walk away. Source Google Maps. With its array of shops, restaurants, cafés and public houses. Lewes also boasts The Depot Cinema, a leisure centre and Mainline Railway Station with direct services to London, Brighton and Eastbourne.


Tenure – Freehold
Gas central Heating – Double Glazing.
EPC Rating – TBC
Council Tax Band – D



Council Tax Band: D

Nearest Stations

  • Lewes - 0.96miles
  • Cooksbridge - 1.91miles
  • Glynde - 2.74miles
  • Southease - 3.63miles
  • Southease - Piddinghoe Road - 3.72miles

Contact the office to
discuss this property

01273 407929 Email us View your shortlist

Location

Floorplans

Floorplan for Malling Down, Lewes, BN7
View PDF Brochure
⁡⁣⁣⁢

Request a Viewing

Contact the office to
discuss this property

01273 407929 Email us View your shortlist