4 Bed House For Sale
East Hoathly, Lewes, BN8

Offers in Region of £640,000 (Freehold)

  • A magnificent and characterful Victorian former coach house situated off a peaceful country lane surrounded by open countryside
  • Stunning period features | High ceilings | brick arches
  • Beautifully decorated throughout
  • Sitting room | dining room | county style kitchen/breakfast room
  • Self-contained lower ground floor bedroom with under floor heating | wet room/utility
  • Three first floor double bedrooms
  • Driveway
  • Cottage style secluded garden

A magnificent four double bedroom two bathroom attached former Victoria coach house, occupying a pleasant corner plot with a driveway and private rear garden. Beautifully situated off a rarely used country lane, surrounded by open countryside and within 0.8 of a mile of the centre of the village.

Clock House is a most attractive red brick former coach house, believed to date from 1889. The property has stunning period features throughout, high ceilings with most rooms enjoying a double aspect and brick arches in the lower ground floor. Over the most recent years the property has been tastefully decorated in heritage colours and features a refitted stylish and contemporary family bathroom. The lower ground floor is of a particular interest and could easy serve as self-contained accommodation. It is a versatile room which can serve as a bedroom or reception room. There is a wet room/utility with underfloor heating and there is a personal door which gives access to the driveway.

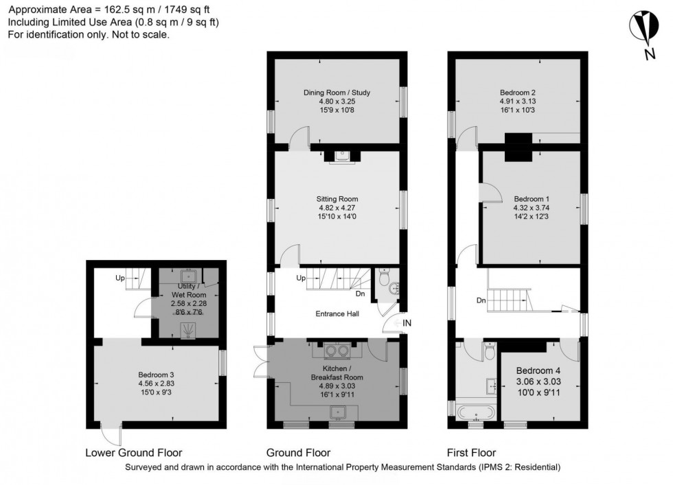
The property is entered via a spacious hall with a staircase rising to the first floor, with a cloakroom found nearby. There is a triple aspect kitchen/breakfast room fitted with a matching range of country-style units and an Everhot range stove. The sitting room is an impressive space, featuring a weathered metal insert and Chesney stove. Continuing from the sitting room is a dining room/study.

The first floor provides a galleried landing, there are three double bedrooms with vaulted ceilings and exposed timbers. The family bathroom comprises of a modern suite with enclosed bath, central wall mounted values and built in shower.

The lower ground floor is a spacious fourth bedroom/reception room with tiled flooring and underfloor heating, attractive brick arches, personal door accessing the driveway and a wet room/utility room.

Outside, the front of the property is approached via shallow steps, to one side is a wide gravelled driveway providing off street parking. The rear garden enjoys much seclusion, predominantly laid to lawn and flanked by mature borders, with a brick paved seating terrace featuring a pergola and climbing roses. It has been carefully planted with a variety of climbers and bedding plants to provide blooms throughout the spring, summer and into autumn, and the wisteria is believed to be over a hundred years old.

EPC F

Tax Band E

Oil fired central heating

Shared private drainage

Location Summary

Clock House is situated in a rural position in the tiny hamlet of Barham close to open fields and woods with public footpaths, farmland and rolling countryside. Less than a mile away East Hoathly offers a range of local facilities, including a village shop with post office, a café, hairdressers, public inns, a primary school, a church and a local bus service which links with neighbouring districts. A more comprehensive range of shopping and leisure facilities can be found in Lewes and Uckfield both less than a 15 minute drive away, and both offering direct trains to central London. Uckfield boasts a cinema, several bars/restaurants and a popular leisure centre. There is a large selection of schools for all age groups in the area, including a sixth form community college, Tonbridge School, Annan School, Bedes, Cumnor House, Great Horsted and Lewes Grammar. Annan School Kindergarden & Haymakers Nursery are both less than 3 miles away. Sporting and recreational facilities are within close range including golf courses at the East Sussex National course and the Royal Ashdown at Forest Row. Equestrian Facilities are available less than a 10 minute walk away. East Hoathly Memorial Playing Fields houses excellent Tennis & Cricket Clubs, as well as a fantastic playground. The coastal resorts of Eastbourne and Brighton are also close by.

Council Tax Band: E

Nearest Stations

  • Uckfield - 4.28miles
  • Buxted - 4.39miles
  • Berwick (Sussex) - 6.43miles
  • Glynde - 6.92miles
  • Crowborough - 7.83miles

Contact the office to
discuss this property

01825 760770 Email us View your shortlist

Location

Floorplans

Floorplan for East Hoathly, Lewes, BN8
View PDF Brochure
⁡⁣⁣⁢

Request a Viewing

Contact the office to
discuss this property

01825 760770 Email us View your shortlist