4 Bed House Sold STC
Icarus Avenue, Burgess Hill, RH15

£585,000 (Freehold)

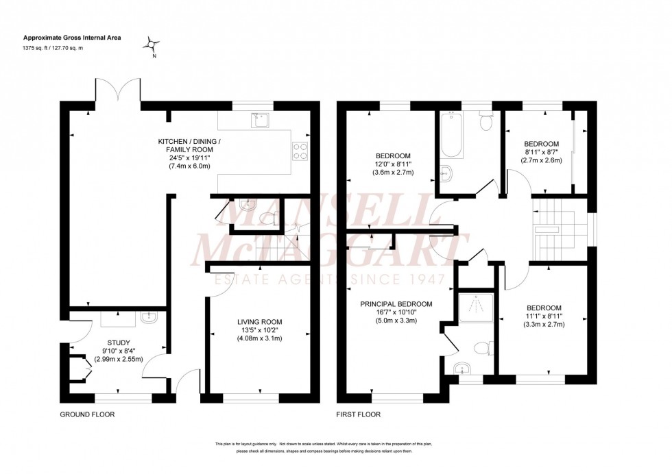
  • Entrance Hall & Cloakroom
  • Study
  • Living Room
  • Kitchen/Dining/Family Room
  • Master Bedroom & Ensuite
  • 3 Further Bedrooms
  • Family Bathroom
  • South Facing Rear Garden
  • Private Driveway

A well presented 4 bedroom detached house having been occupied by our vendors since being built by Charles Church Homes in 2016. A garage conversion has been undertaken and the downstairs configuration cleverly altered to create a study and an impressive kitchen/dining/family room.

The property is situated in a particularly peaceful courtyard setting amongst only 2 other detached properties with a wooded outlook to the front. Birchwood Grove primary school and the train station are both within walking distance. The town centre is 1.1 miles away.

The accommodation comprises an entrance hall with stairs to the first floor and a cloakroom/wc leading off it. A study with sink and built in cupboards faces the front. The living room also faces the front.

A particular feature is the large L-shaped kitchen/dining/family room which spans the rear of the house with double doors opening to the rear garden. The kitchen was refitted in 2024 with a good range of cupboards complemented by a butlers sink and quartz stone worksurfaces. Integrated appliances include a hob, a double oven, a dishwasher, a washing machine and a fridge/freezer.

On the first floor the good size landing has a linen cupboard and a hatch to the loft. The master bedroom faces the front, with a range of wardrobes and an ensuite shower room refitted in 2023. There are 3 further bedrooms and a family bathroom.

Outside a block paved driveway provides parking for 2 cars. A side gate opens to the south facing 37’ x 28’ min rear garden. A full width patio abuts the house, leading to an area of lawn, artificial lawn and a raised pvc deck covered by a pergola. Hydrangea border, tap, power.

Benefits include gas fired central heating (the Glow-worm boiler is located in the kitchen) and uPVC framed double glazed windows.

Estate Charge: £427 per annum


Council Tax Band: E

Nearest Stations

  • Burgess Hill - 0.68miles
  • Wivelsfield - 0.77miles
  • Hassocks - 2.55miles
  • Plumpton - 2.89miles
  • Haywards Heath - 3.53miles

Contact the office to
discuss this property

01444 235665 Email us View your shortlist

Location

Floorplans

Floorplan for Icarus Avenue, Burgess Hill, RH15
⁡⁣⁣⁢

Request a Viewing

Contact the office to
discuss this property

01444 235665 Email us View your shortlist