5 Bed House For Sale
The Old Rectory, Station Road, BN7

£1,130,000 (Freehold)

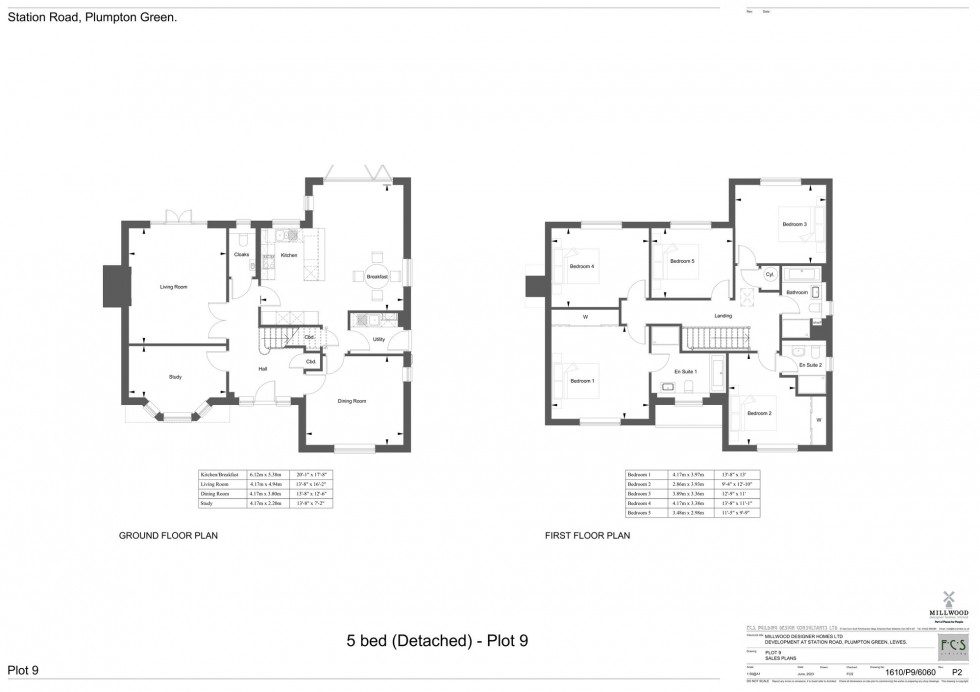
  • Entrance Hall & Cloakroom
  • Kitchen/Breakfast/Family Room & Utility Room
  • Living Room
  • Dining Room & Study
  • Master Bedroom & Ensuite
  • Guest Bedroom & Ensuite
  • 3 Further Bedrooms & Bathroom
  • Private Drive to Garage & Garden
  • Air Source Pump Central Heating
  • PV Solar Panels & 10 Year LABC Guarantee

The Pierremont is a 5 bedroom and 3 bathroom brand new detached home with 3 reception rooms and a fabulous kitchen/breakfast/family room. Situated just off the village high street with pubs, village store/post office, primary school and sports clubs. Catchment area for Chailey school and walking distance of Plumpton railway station, a rare bonus for any village.

Nearest Stations

  • Plumpton - 0.42miles
  • Cooksbridge - 3.11miles
  • Burgess Hill - 3.17miles
  • Wivelsfield - 3.31miles
  • Hassocks - 3.77miles

Contact the office to
discuss this property

01444 235665 Email us View your shortlist

Location

Floorplans

Floorplan for The Old Rectory, Station Road, BN7
⁡⁣⁣⁢

Request a Viewing

Contact the office to
discuss this property

01444 235665 Email us View your shortlist