3 Bed House Sold STC
Washington Road, Haywards Heath, RH16

Guide Price £350,000 (Freehold)

  • 3 double bedroom house on east side of town
  • Easy walk to Lindfield Village High Street via Scrase Valley Nature Reserve
  • 0.8 mile walk to railway station via Clair Park
  • Very clean and tidy but requires updating
  • Front garden (potential driveway parking STPP)
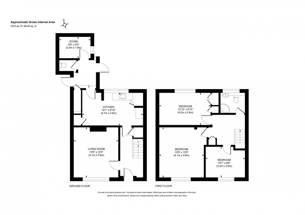
  • 57' x 22' fully enclosed rear garden, greenhouse
  • Sitting room with open fireplace
  • Family sized kitchen/breakfast - utility/outhouse, WC, various storage areas
  • 3 double bedrooms and upstairs shower room
  • For sale with no onward chain - EPC rating: D - Council Tax Band: C

GUIDE PRICE … £350,000-£375,000 … FREEHOLD

PLEASE WATCH THE VIDEO BEFORE BOOKING AN APPOINTMENT

A 3 double bedroom terraced house with a 57’ x 22’ rear garden which has been occupied by the same family for 68 years requiring cosmetic updating yet presented in very clean and tidy order, situated on the Haywards Heath/Lindfield borders within a 0.8 mile walk to the railway station via Clair Park.

Location Summary

The property is located in this established residential area on the Haywards Heath/Lindfield borders and is ideally placed within walking distance of Lindfield Village, via the Scrase Valley Nature Reserve, with its traditional range of shops, boutiques and pubs in the High Street, picturesque duck pond and the Common (which holds several events throughout the year). Haywards Heath mainline station is 0.8 of a mile on foot via Clair Park. The town centre with its extensive range of shops, stores, restaurants, cafes and bars is within a mile and a regular bus service (No. 29) runs along Washington Road linking with the town centre, railway station, the hospital and the neighbouring districts. The town also has a 6th form college and a leisure centre. By road, access to the major surrounding areas can be gained via the A272 and the A/M23, the latter lying approximately 5 miles to the west at Bolney or Warninglid or 8 miles to the north at Maidenbower (Junction 10a).

Schools:
Warden Park Junior Academy (0.6 miles)
St Wilfrids Primary (1 mile)
Blackthorns & Lindfield (both 0.6 miles)
St Josephs RC Primary (0.6 miles)
Warden Park (Secondary) Academy in Cuckfield (2 miles)
Oathall Community College (closest Secondary School - 0.4 miles)

Station: Haywards Heath mainline station (under a mile distant on foot) provides fast commuter links to London (Victoria/London Bridge 47 mins), Gatwick Airport (15 mins) and the south coast (Brighton 20 mins).

Council Tax Band: C

Nearest Stations

  • Haywards Heath - 0.66miles
  • Wivelsfield - 3.00miles
  • Horsted Keynes (Bluebell Railway) - 3.56miles
  • Burgess Hill - 3.79miles
  • Sheffield Park (Bluebell Railway) - 3.89miles

Contact the office to
discuss this property

01444 456431 Email us View your shortlist

Location

Floorplans

Floorplan for Washington Road, Haywards Heath, RH16
View PDF Brochure

Video Tours

⁡⁣⁣⁢

Request a Viewing

Contact the office to
discuss this property

01444 456431 Email us View your shortlist