3 Bed House For Sale
Ashenground Close, Haywards Heath, RH16
Guide Price £600,000 (Freehold)
- A detached home offering open planned living space
- 3 double bedrooms with 2 bath/shower rooms
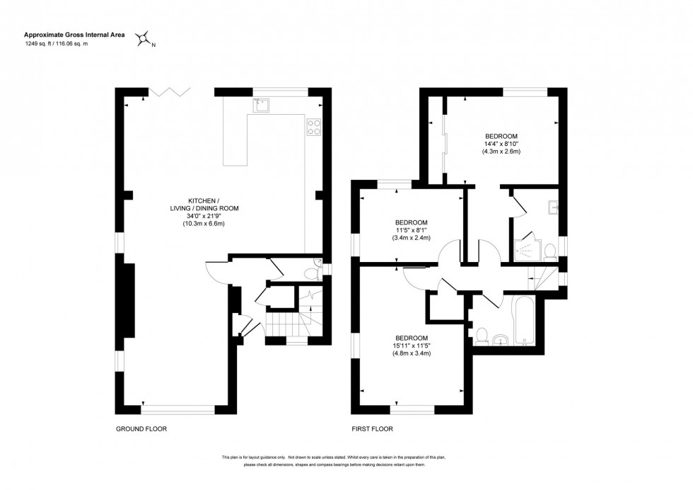
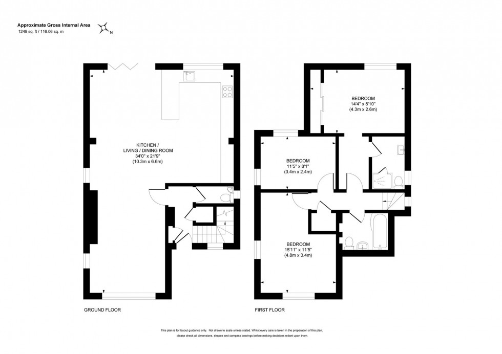
- 34’ x 29’9 L-shaped kitchen/living/dining room with wood burning stove
- 35’ x 30 west facing landscaped rear garden
- 41’ x 30’ front driveway / garden offering parking for 2 cars
- 10 mins walk to town centre and Broadway
- 1 mile walk to the railway station & 5-10 minute walk of Ashenground Woods for dog walking
- Easy reach of several primary schools
- Warden Park Secondary Academy school catchment area
- EPC rating: D - Council Tax Band: E
GUIDE PRICE … £600,000-£650,000 … FREEHOLD
PLEASE WATCH THE VIDEO BEFORE BOOKING AN APPOINTMENT
A 3 double bedroom, 2 bath/shower room detached house of 1,249 sq ft with a 31’ x 30’ front garden and a 35’ x 30’ west facing rear garden situated in a quiet cul-de-sac in this established part of town to the south of the town centre, close to Victoria Park and Ashenground Woods.
Location Summary
The property is situated in a cul-de-sac off Ashenground Road on the town's southern side, surrounded by other individual homes. This established residential area is particularly popular with families and commuters as it is ideally placed within a very short walk of the town centre, several schools, Victoria Park, glorious woodland and just over a mile of the railway station on foot via Victoria Park. The town has an extensive range of shops, stores, restaurants, cafes and bars, a leisure centre, 6th form college and numerous sports clubs and leisure groups. Schools are well represented and the property is within walking distance of several primary schools including Bolnore Village Primary, which is within a very pleasant walk through the Woods. Children from this side of town go onto Warden Park Secondary Academy in neighbouring Cuckfield. Ashenground and Bolnore Woods provide some wonderful walks and the local area has numerous beauty spots including both Ditchling and Chailey Common nature reserves, the Ashdown Forest and the South Downs National Park. By road, access to the major surrounding areas can be gained via the A272 and the A/M23, the latter lying about 5.5 miles to the west at Bolney or Warninglid.
Distances in miles on foot (approximately)
Bolnore Villlage Primary (0.7)
St Wilfrid's C of E Primary (0.85)
Warden Park Primary Academy (0.85)
St Joseph's RC (0.75)
Warden Park Secondary Academy (1.8)
Oathall Community College (1.3)
St Pauls R C Secondary College (3.5)
Haywards Heath Mainline Railway Station (1.15) - fast commuter services to London (Victoria/London Bridge 47 mins), Gatwick Airport (15 mins) and the south coast (Brighton 20 mins)
Council Tax Band: E
Nearest Stations
- Haywards Heath - 1.02miles
- Wivelsfield - 1.95miles
- Burgess Hill - 2.74miles
- Sheffield Park (Bluebell Railway) - 4.54miles
- Horsted Keynes (Bluebell Railway) - 4.65miles
Location
Floorplans
