3 Bed House Sold STC
Gordon Road, Haywards Heath, RH16

Guide Price £400,000 (Freehold)

  • Clean and tidy house in popular road
  • 0.4 mile walk to the railway station
  • Easy walk to Lindfield Village & good schools
  • 0.7 mile walk to town centre via Clair Park
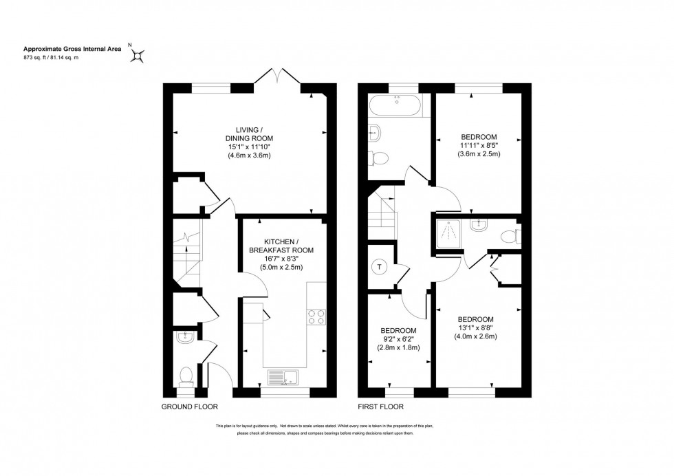
  • 37’ x 16’ fully enclosed garden with shed - 2 allocated parking spaces directly behind
  • Kitchen/breakfast room with some appliances - Living room with doors out to the rear garden
  • Master bedroom with ensuite shower room
  • Estate Charge: £24.57 per month (£294.84 pa) - Managing Agents: Grange Property Management
  • For sale with no onward chain
  • EPC rating: C - Council Tax Band: D

GUIDE PRICE … £400,000-£425,000 … FREEHOLD

PLEASE WATCH THE VIDEO BEFORE BOOKING AN APPOINTMENT

A 3 bedroom terraced house with a 37‘ x 16‘ rear garden and 2 allocated parking spaces directly behind situated in one of the quieter roads near the railway station. On sale with no onward chain.

 

Location Summary

Gordon Road is surrounded by properties of varying style, size and age in this established residential area. The house is ideally suited to those needing good schools and the mainline railway station which is just 0.4 miles distant and provides fast commuter links to London (Victoria/London Bridge 47 mins), Gatwick Airport (15 mins) and the south coast (Brighton city centre 20 mins). There are several highly regarded schools close by in both Haywards Heath and Lindfield. Other nearby facilities include an array of shops and food outlets near the station, the Sainsbury's Superstore, Waitrose Superstore. the 6th form college and the Dolphin Leisure Centre. The town centre is within 0.75 miles and can be easily accessed on foot via Clair Park, providing an extensive range of shops, stores, restaurants, cafes and bars. Access to the major surrounding areas can be gained via the A272 and the A/M23, the latter lying approximately 5 miles to the west at Bolney or Warninglid or 8 miles to the north at Maidenbower (Junction 10a).

Distances in approximate miles
Primary Schools: Harlands (0.7); Blackthorns (0.7); Lindfield (1.0) and St Joseph's RC (0.9) Secondary Schools: Oathall Community College in Lindfield (0.5) and Warden Park Secondary Academy in Cuckfield (1.9) Mainline Railway Station: Haywards Heath (0.4).

Council Tax Band: D

Nearest Stations

  • Haywards Heath - 0.34miles
  • Wivelsfield - 3.18miles
  • Horsted Keynes (Bluebell Railway) - 3.51miles
  • Balcombe - 3.68miles
  • Burgess Hill - 3.97miles

Contact the office to
discuss this property

01444 456431 Email us View your shortlist

Location

Floorplans

Floorplan for Gordon Road, Haywards Heath, RH16
View PDF Brochure

Video Tours

⁡⁣⁣⁢

Request a Viewing

Contact the office to
discuss this property

01444 456431 Email us View your shortlist