1 Bed Commercial Property For Sale
High Street, Hurstpierpoint, BN6
£150,000 (Freehold)
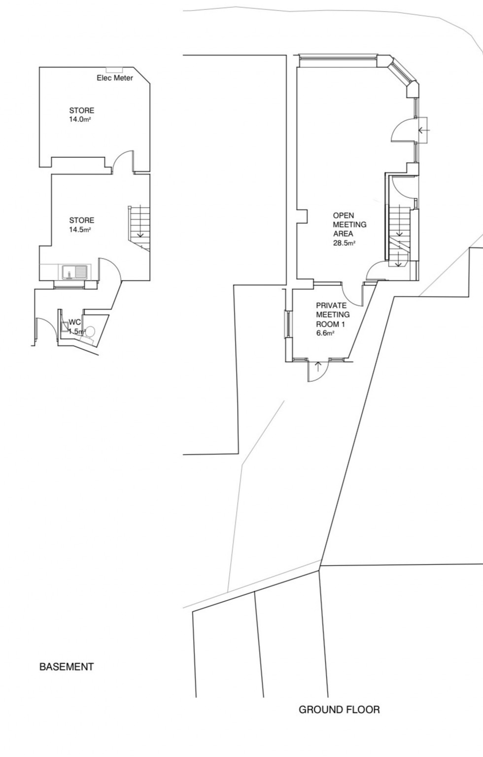
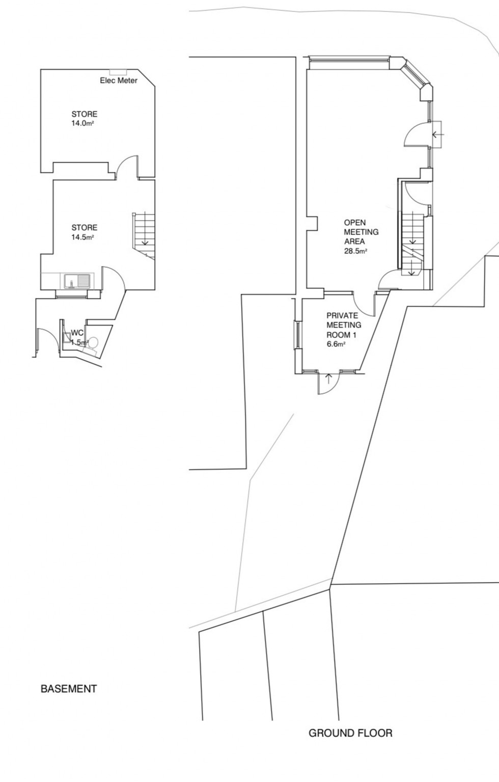
- Commerical Unit with Estimated Rental Income of £12k to £15k
- Useful Basement Storage
- High Street Location
- Refurbishment Required
- Close to Village Car Park and Bus Stop
- Popular and Picturesque Village
A wonderful opportunity to purchase this Commercial Unit located in the heart of a popular and picturesque village, offering an estimated rental income of £12,000 to £15,000 annually. Boasting a prime spot on the high street, this property provides an excellent investment opportunity for those looking to capitalise on its potential. With useful basement storage, the unit offers versatility and convenience for a variety of business uses. While requiring refurbishment, this space presents a blank canvas for customisation, allowing the new owner to shape it according to their vision. Situated close to the village car park and bus stop, accessibility and visibility are ensured, making it a convenient choice for both customers and tenants alike.
Location Summary
LOCATION
The High Street in Hurstpierpoint village offers a range of facilities including; post
office, three public houses, restaurants, shops, general store, boutiques etc. More
comprehensive shopping facilities are available just over a mile away to the east at
Hassocks village. Burgess Hill and Haywards Heath town centres are 3 miles and 6
miles to the north with the city of Brighton and Hove 8 miles to the south.
STATION
Hassocks mainline railway station provides fast and frequent services to London
(Victoria/London Bridge 48 minutes), Gatwick International Airport (about 25
minutes) and the South Coast (Brighton 15 minutes).
BY ROAD
Access to the motorway network and surrounding areas at Sayers Common or
Pyecombe (A/M23) both within 3 miles.
Nearest Stations
- Hassocks - 1.53miles
- Burgess Hill - 2.62miles
- Wivelsfield - 3.28miles
- Plumpton - 5.15miles
- Haywards Heath - 5.92miles
Location
Floorplans
