4 Bed House For Sale
Highgate, Forest Row, RH18

Guide Price £575,000 (Freehold)

  • DETACHED FAMILY HOME
  • CHARACTER INTERIOR
  • INCLUDES SINGLE STOREY WING/ANNEXE
  • ADJ ASHDOWN FOREST
  • FOOTPATH WALK TO VILLAGE
  • 3/4 BEDROOMS, 2 BATHROOMS
  • 1/2 RECEPTION ROOMS, KITCHEN/DINING ROOM, CELLAR
  • UTILITY ROOM, STORE ROOM
  • PARKING FOR SEVERAL CARS
  • GARDEN

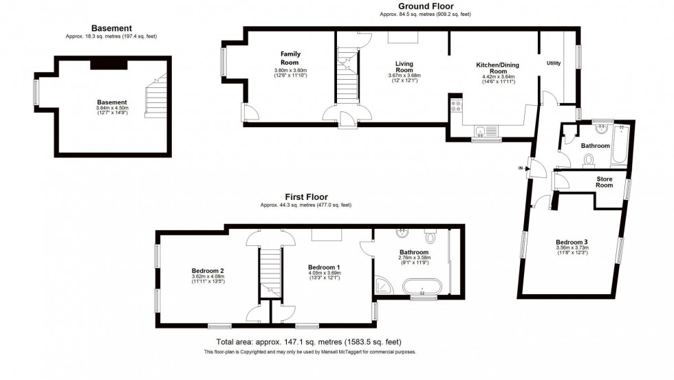
No Onward Chain. A spacious and light detached family home on Ashdown Forest, within walking distance of the village centre, with extensive accommodation. Forest Row is a sought after village on the East/West Sussex border located on the northern extremity of the heath/woodland of the Ashdown Forest. The village has a surprisingly wide variety of local stores, specialist shops, cafes and restaurants. Buses from Forest Row connect to the major towns of East Grinstead, Crawley, Tunbridge Wells and Haywards Heath all with more extensive shopping/leisure amenities and rail services to London. The Royal Ashdown Golf Course & Ashdown Forest for walking are within 200 yards. The property is built externally of brickwork under a slate roof extending to a total floor area of almost 1600 square feet. The accommodation is arranged over two floors with an additional single storey wing ideal as an annexe/studio with a separate front door. The house is set in a well screened location and has a garden to the front with lawn, paved pathway and mature hedging for privacy. There is a hardstanding providing parking as well as space for a garage/shed. Internally the main house has two good sized light reception room, this includes a family room/bedroom 4 with bay window and shelving, and a living room with a fireplace and window overlooking the garden, Door to the basement In addition there is a spacious kitchen/dining room with fitted worktops, inset sink unit, oven and hob, plumbing for dishwasher and base/wall storage cupboards, Adjacent is a utility room. The single storey north wing of the property can be accessed from the house or has its own entrance door from the garden, and has a ground floor bathroom, bedroom 3/reception room and a boot room. Beneath the house there is a one roomed basement. On the first floor there are two double bedrooms and a large en-suite with a free standing bath having mixer/hand held shower attachment, a new shower unit, w.c suite hand basin and full height storage cupboards. All windows and external doors were updated and double glazed last year. The total floor area extends to 1580 square feet providing a spacious family home.


Council Tax Band: F.

EPC Rating: E (53)

Council Tax Band: F

Nearest Stations

  • East Grinstead - 3.42miles
  • Kingscote (Bluebell Railway) - 3.75miles
  • Horsted Keynes (Bluebell Railway) - 4.62miles
  • Dormans - 4.86miles
  • Cowden - 5.56miles

Contact the office to
discuss this property

01342 826682 Email us View your shortlist

Location

Floorplans

Floorplan for Highgate, Forest Row, RH18
⁡⁣⁣⁢

Request a Viewing

Contact the office to
discuss this property

01342 826682 Email us View your shortlist