2 Bed Maisonette For Sale
London Road, Mardens Court London Road, TN6
£250,000 (Leasehold)
- Beautifully presented and extremely spacious 2 bedroom maisonette with allocated parking
- Quiet, tucked away position yet within a 'stones throw' of Crowborough town centre
- Private entrance
- Large siting room
- Stunning open plan kitchen/dining room with built-in oven and hob
- 2 good sized bedrooms (bedroom 2 with extensive built-in wardrobes)
- Re-fitted bathroom with luxurious double ended bath
- Long lease with 116 years remaining
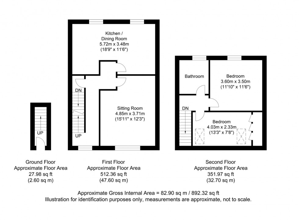
An extremely spacious and beautifully presented two bedroom maisonette with parking located in a quiet tucked away position yet within a ‘stone’s throw’ of Crowborough town centre and Goldsmiths Leisure and Recreation Ground. This outstanding and seldom found home has been updated and modernised in recent years and offers light and well proportioned accommodation which extends to 894 sq. ft. and comprises in brief a private entrance into an entrance lobby with a staircase ascending to the first floor, a good size reception hall, a fine sitting room which affords far reaching roof top views and a stunning open plan kitchen/dining room with built-in oven and hob. From the hallway, a staircase ascends to the first floor landing, two generous size bedrooms (bedroom two with built-in wardrobes) and a luxurious refitted bathroom with free standing double ended bath. Outside, to the rear of the development there is an allocated parking bay beyond which is further residents and visitors parking. EPC Band C. Council Tax Band B.
The accommodation and approximate room measurements comprise:
Front door with glazed insert into ENTRANCE LOBBY: staircase rising to the first floor landing, door into: ENTRANCE HALL: staircase rising to the second floor, double glazed window overlooking the front of the property, radiator with decorative cover.
SITTING ROOM: 15’11 x 12’3 a fine room, double glazed window overlooking the rear of the property with fine roof top views, radiator, coved ceiling.
KITCHEN/DINING ROOM: 18’9 x 11’5 a stunning open plan room, fitted with a range of units to eye and base level and comprising single bowl single drainer stainless steel sink unit with mixer tap, cupboards, drawers and space and pluming for domestic appliances beneath. Adjoining work surfaces, inset four ring stainless steel gas hob with extractor over and oven beneath, further range of units to eye and base level, recess for tall standing fridge/freezer, radiator, breakfast bar providing seating for four, double glazed windows overlooking the front of the property, wall light points.
From the first floor landing, a staircase rises to the: SECOND FLOOR LANDING.
BEDROOM 1: 11’10 x 11’6 double glazed window overlooking the front of the building, radiator.
BEDROOM 2: 13’3 x 7’8 two sky light windows overlooking the rear of the building enjoying fine far reaching roof top views, extensive range of built-in wardrobes, radiator.
BATHROOM: refitted with a luxurious white suite and comprising free standing bath with central chrome mixer tap, washbasin with unit under, low level WC, part tiled walls, tiled flooring, heated chrome ladder style towel rail, opaque double glazed window to front.
OUTSIDE
Positioned to the rear of the building is an ALLOCATED PARKING BAY beyond which is further residents and visitors parking.
LEASE: 116 years remaining.
ANNUAL SERVICE CHARGE: £840.00 per annum.
Location Summary
The property is positioned within a ‘stone’s throw of the breath-taking Ashdown Forest, the inspiration behind A A Milne’s Winnie the Pooh books. Crowborough town centre is within walking distance and provides a good selection of shopping and leisure facilities including several supermarkets, a public library, various restaurants and individual shops and a popular leisure centre. The area is well served with good primary and junior schooling with St Johns primary school also within walking distance. In addition, the popular Beacon Community School is also nearby. Sporting facilities within the area include two popular golf courses (the Beacon golf club is nearby). Crowborough railway station is approximately 2 miles distant with train service to London in approximately one hour. The Spa town of Royal Tunbridge Wells with its theatres, shopping and leisure complex is within a short driving distance (approximately 8 miles), and the coastal town of Eastbourne and City of Brighton can be reached by car in approx. 40 mins and 30 mins respectively.
Council Tax Band: B
Nearest Stations
- Crowborough - 1.56miles
- Eridge - 2.59miles
- Eridge (Spa Valley Railway) - 2.59miles
- Groombridge (Spa Valley Railway) - 3.69miles
- Ashurst (Kent) - 4.67miles