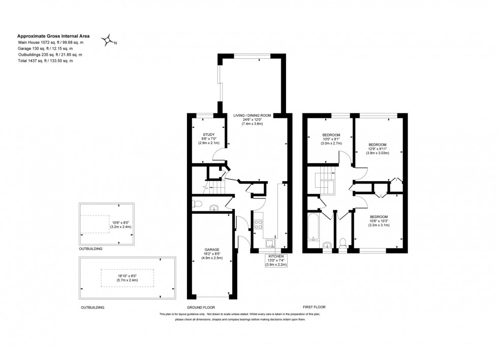
3 Bed House Sold STC
Barnmead, Haywards Heath, RH16
Guide Price £425,000 (Freehold)
- Prime location near railway station & Harlands primary school
- Fabulous 90' x 20' west facing rear garden
- Owned by the same family since new (1967)
- Very clean & tidy – needs modernisation throughout
- Front garden, driveway and garage
- Hall, downstairs cloakroom, study/bed 4 - extended lounge/dining room, door to garden
- Potential for further enlargement STPP
- Warden Park Secondary Academy catchment
- For sale with no onward chain
- EPC rating: D - Council Tax Band: D
PLEASE WATCH THE VIDEO BEFORE BOOKING AN APPOINTMENT
An extended 3/4 bedroom terraced house with a 90’ x 20’ west facing rear garden in this highly desirable neighbourhood, owned by the same family since it was built in 1967, which has been very well cared for but does now require general modernisation throughout.
Location Summary
The property is located at the northern end of Barnmead which in turn is located off the Balcombe Road on the northern side of town within a 10 minute walk of the railway station. An alleyway leads from Barnmead through to Penland Road and Harlands Primary School. Children from this side of town fall into the catchment area for Warden Park Secondary Academy in neighbouring Cuckfield.
The property is conveniently close to the leisure centre, 6th form college, Sainsbury’s superstore, Waitrose and several food outlets by the station. The town’s trendy Broadway with its numerous restaurants, cafés and bars and the main shopping areas are about 1 mile distant. By road, access to the major surrounding areas can be swiftly gained via the Balcombe Road, A272 and A/M23 the latter lies about 5 miles to the west at Warninglid or 7.5 miles to the north at Maidenbower (Junction 10A).
Distances in approximate miles (on foot/car)
Schools: Harlands Primary 0.2, 6th Form College 0.4, Warden Park Secondary Academy in Cuckfield 1.5
Station: Haywards Heath Mainline Station (0.6 miles) providing fast commuter links to London (Victoria/London Bridge 47 mins), Gatwick Airport (15 mins) and the south coast (Brighton 20 mins).
Council Tax Band: D
Nearest Stations
- Haywards Heath - 0.32miles
- Wivelsfield - 3.22miles
- Balcombe - 3.39miles
- Horsted Keynes (Bluebell Railway) - 3.68miles
- Burgess Hill - 4.00miles
Location
Floorplans
