2 Bed House Sold STC
Mocatta Way, Burgess Hill, RH15

In Excess of £335,000 (Freehold)

  • Entrance Hall
  • Kitchen
  • Lounge/Dining Room
  • 2 Bedrooms
  • Bathroom
  • Garage
  • South Facing Rear Garden
  • Vacant Possession

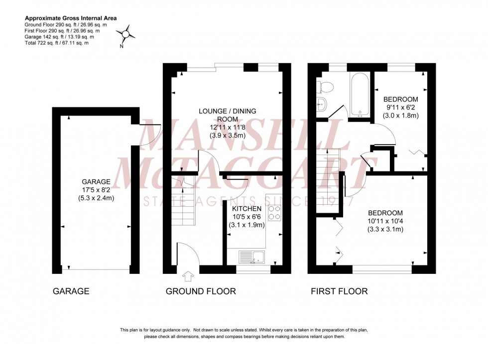
A 2 bedroom semi detached house with a private drive to garage and a south facing rear garden. Presented with vacant possession. The house was built in 1995, within 0.6 miles of 2 primary schools and St Pauls Catholic College. The Woolpack pub, a doctors surgery, a Tesco convenience shop and The Triangle Leisure Centre are all within walking distance. The town centre and mainline station are 1.6 miles away.

The accommodation comprises an entrance hall with stairs to the first floor. The well fitted kitchen faces the front with integrated cooking appliances. The lounge/dining room spans the rear of the house with sliding doors to the garden.

From the landing there is an airing cupboard and hatch to the loft. There are 2 bedrooms with wardrobes and a bathroom.

Outside a private driveway leads to a pitched roof garage with a pedestrian door to the south facing 32’ x 13’ rear garden. A patio leads to a lawn with hedging and timber shed. Outside tap.

Benefits include gas fired central heating (the Worcester boiler is located in the kitchen) and uPVC framed double glazed windows.

Council Tax Band: C

Nearest Stations

  • Burgess Hill - 1.28miles
  • Wivelsfield - 1.29miles
  • Hassocks - 2.82miles
  • Haywards Heath - 3.41miles
  • Plumpton - 4.67miles

Contact the office to
discuss this property

01444 235665 Email us View your shortlist

Location

Floorplans

Floorplan for Mocatta Way, Burgess Hill, RH15
⁡⁣⁣⁢

Request a Viewing

Contact the office to
discuss this property

01444 235665 Email us View your shortlist