5 Bed House Sold STC
Wood Ride, Haywards Heath, RH16

Guide Price £400,000 (Freehold)

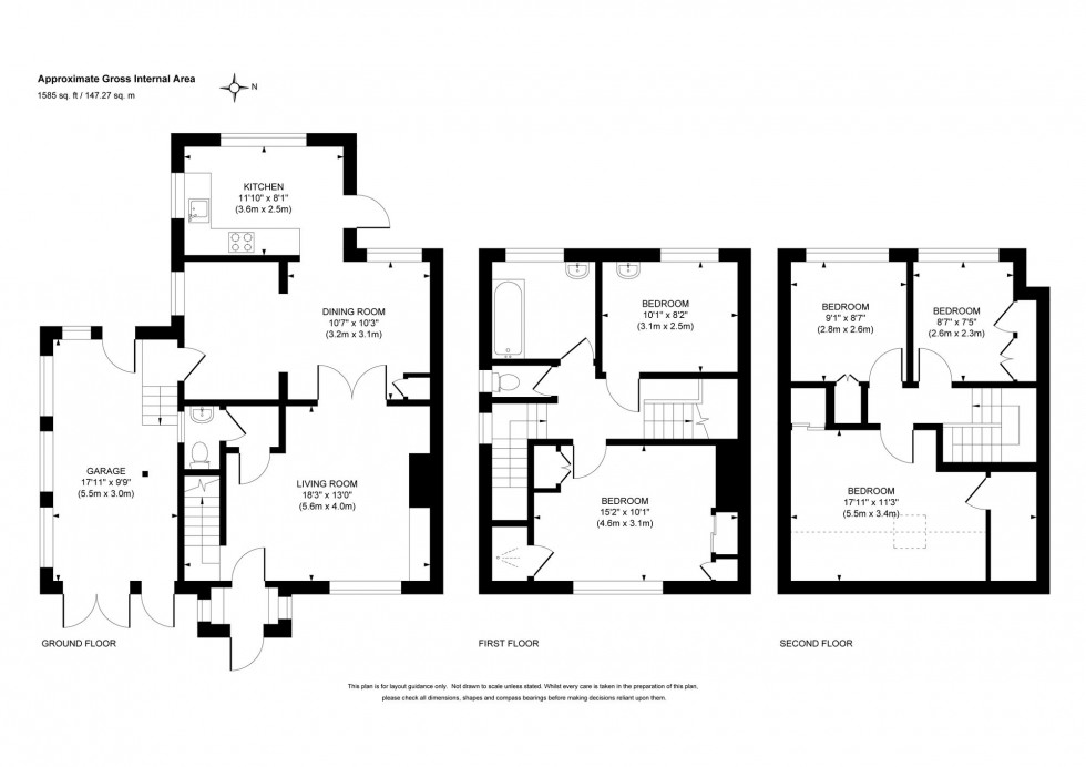
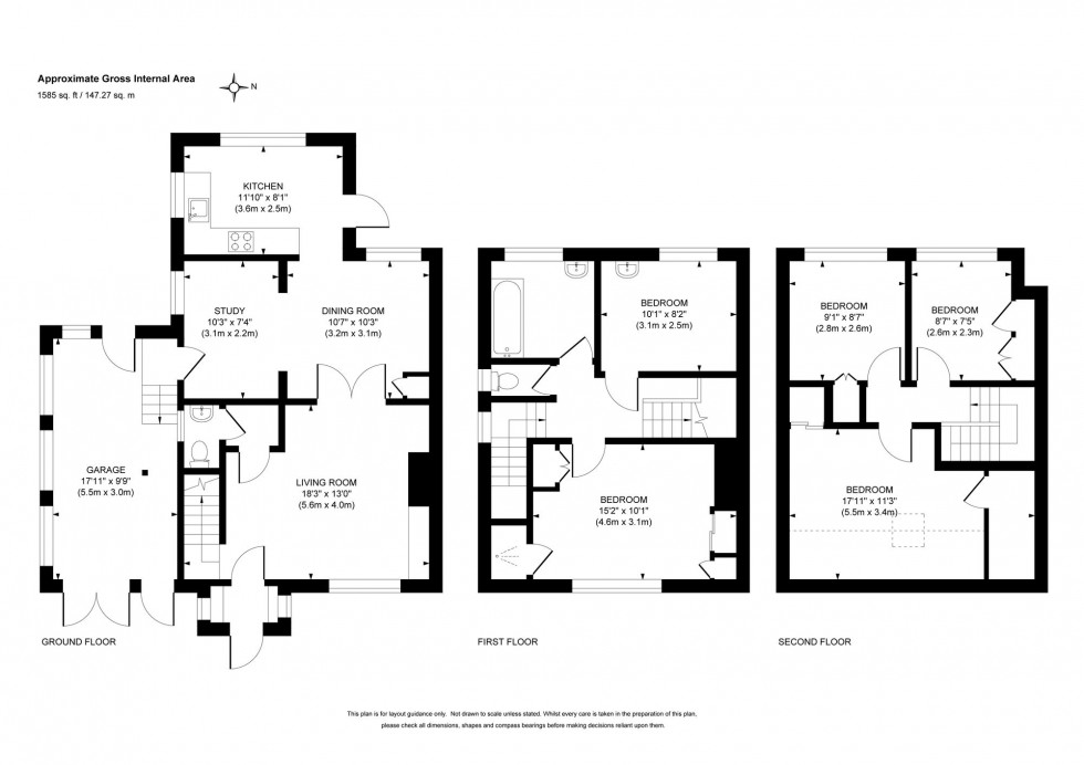
  • Family home in need of renovation throughout
  • Character accommodation over three floors
  • Lounge with fireplace, dining room, study area
  • Separate kitchen – doorway leading through to garage
  • 2 first floor bedrooms, cloakroom & bathroom
  • 3 second floor bedrooms
  • Driveway parking, front garden & garage
  • 40' (approx) west facing rear garden
  • Would suit someone looking for a project
  • For sale with no onward chain - EPC rating: D - Council Tax Band: D

GUIDE PRICE … £400,000-£450,000

PLEASE WATCH THE VIDEO BEFORE BOOKING AN APPOINTMENT

A 4/5 bedroom semi-detached house believed to date from the 1920s in need of complete renovation situated in this very popular residential neighbourhood just to the south of the town centre and Victoria Park within a 0.8 mile walk of the railway station. There is huge potential to create a beautiful family home in this well-established residential road.

 

Location Summary

The property is situated in Wood Ride which runs between Park Road and Ashenground Road just south of Victoria Park. This established residential area is particularly popular with families and commuters as it is ideally placed within a very short walk of the town centre, Victoria Park, glorious woodland and just 0.8 of a mile of the railway station on foot via Victoria Park. The town has an extensive range of shops, stores, restaurants, cafes and bars, a leisure centre, numerous sports clubs and leisure groups. Schools are well represented and the property is within walking distance of several primary schools including St Wilfrid’s, Warden Park Primary Academy, St Joseph’s RC and Bolnore Village Primary, which is within a very pleasant walk through Ashenground Woods. Children from this side of town go onto Warden Park Secondary Academy School in neighbouring Cuckfield. Ashenground and Bolnore Woods provide some wonderful walks and the local area has numerous beauty spots including both Ditchling and Chailey Common nature reserves, the Ashdown Forest and the South Downs National Park. By road, access to the major surrounding areas can be gained via the A272 and the A/M23, the latter lying about 5.5 miles to the west at Bolney or Warninglid.

Distances in miles on foot (approximately)
Bolnore Villlage Primary (0.8), St Wilfrid's C of E Primary (0.85), Warden Park Primary Academy (0.7), St Joseph's RC (0.6), Warden Park Secondary Academy (1.8), Oathall Community College (1.3), St Pauls R C Secondary College (3.5), Haywards Heath Mainline Railway Station (0.9) - fast commuter services to London (Victoria/London Bridge 47 mins), Gatwick Airport (15 mins) and the south coast (Brighton 20 mins).

Council Tax Band: D

Nearest Stations

  • Haywards Heath - 0.74miles
  • Wivelsfield - 2.21miles
  • Burgess Hill - 3.00miles
  • Balcombe - 4.38miles
  • Horsted Keynes (Bluebell Railway) - 4.45miles

Contact the office to
discuss this property

01444 456431 Email us View your shortlist

Location

Floorplans

Floorplan for Wood Ride, Haywards Heath, RH16
View PDF Brochure

Video Tours

⁡⁣⁣⁢

Request a Viewing

Contact the office to
discuss this property

01444 456431 Email us View your shortlist