3 Bed House For Sale
Meadow Drive, Lindfield, RH16

Guide Price £575,000 (Freehold)

  • A tucked away 3 Bedroom semi-detached village home situated at the very end of this popular and convenient no through road + NO CHAIN
  • This wonderful plot offers excellent scope for enlargement (STPP) and adjoins Scrase Valley nature reserve + walking distance of the High Street and schooling
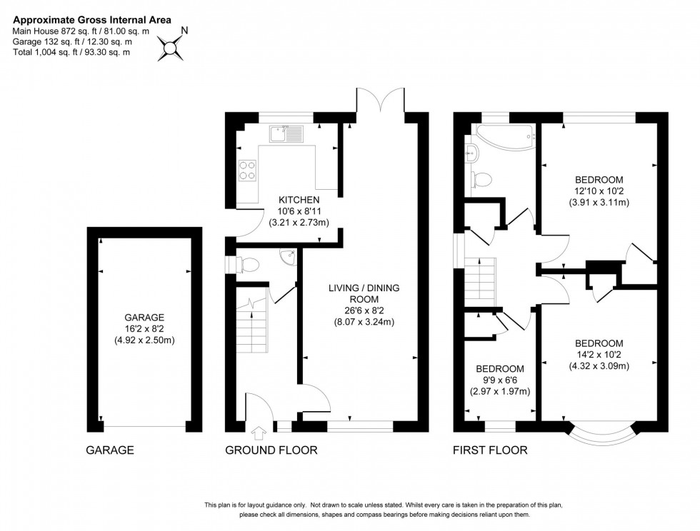
  • Entrance Hall + ground floor Cloakroom/WC
  • Front to back double aspect Sitting / Dining Room + doors to garden
  • Kitchen fitted with a range of units + some integral domestic appliances
  • First Floor - landing with storage and loft hatch + side window
  • 3 Bedrooms (2 Doubles + 1 Single all with built-in wardrobes) + separate Family Bathroom
  • Private Driveway for several vehicles + detached Garage
  • Lawned Front Garden + private 60' x 38' North West facing sunny Rear Garden
  • Gas fired central heating to radiators + uPVC double glazing + EPC Rating: C and Council Tax Band: D

*PLEASE WATCH VIEWING VIDEO*

A tucked away 3 Bedroom semi-detached village home situated at the very end of this popular and convenient no through road. NO CHAIN. This wonderful plot offers excellent scope for enlargement (STPP), adjoins Scrase Valley nature reserve and is walking distance of the High Street and schooling.

Entrance Hall - stairs to first floor and storage. Ground floor Cloakroom/WC - fitted white suite. Front to back double aspect Sitting / Dining Room - double doors to garden. Kitchen - fitted with a range of units, some integral domestic appliances and side door.

First Floor - landing with storage, loft hatch and South facing side window. 3 Bedrooms (2 Doubles and 1 Single all with built-in wardrobes). Family Bathroom - coloured suite, corner bath, low level WC, wash basin, tiled floor and walls plus opaque rear window.

Gas fired central heating to radiators and uPVC double glazing.

Outside - 48’ Private Driveway for several vehicles leading to the detached Garage with electric roller door, power and lighting and lawned Front Garden with flower beds. Private and sunny 60' x 38' North West Rear Garden paved patio adjoins the house, shaped lawns, timber fencing, water tap and side gate into the nature reserve.

Location Summary

LOCATION - Meadow Drive is located off the bottom of Gravelye Lane on the edge of Lindfield village convenient for all village facilities. The picturesque tree-lined High Street is approximately one third of a mile with a traditional range of shops, Churches, Pond and Common which hosts several events throughout the year. Lindfield has numerous sports clubs, leisure groups and societies including the long established Bonfire Society. Haywards Heath town centre is a little further with its extensive range of shops, stores, restaurants, bars and cafes.
SCHOOLS - There are two excellent primary schools within walking distance plus Oathall Community College (secondary school) and Sixth Form College in Haywards Heath.
STATION - Haywards Heath railway station is 1.5 miles distant and offers fast and regular services to London (Bridge/Victoria 47 mins), Gatwick Airport (15 mins) and (Brighton (20 mins).
BY ROAD - Access to the major surrounding areas can be gained via the A272 (Lewes / Uckfield to the East) and A/M23, the latter lying approximately 6 miles to the West at Bolney / Warninglid (linking with Gatwick Airport and the M25).

Council Tax Band: D

Nearest Stations

  • Haywards Heath - 1.05miles
  • Horsted Keynes (Bluebell Railway) - 3.17miles
  • Wivelsfield - 3.39miles
  • Sheffield Park (Bluebell Railway) - 3.52miles
  • Burgess Hill - 4.17miles

Contact the office to
discuss this property

01444 484084 Email us View your shortlist

Location

Floorplans

Floorplan for Meadow Drive, Lindfield, RH16
View PDF Brochure

Video Tours

⁡⁣⁣⁢

Request a Viewing

Contact the office to
discuss this property

01444 484084 Email us View your shortlist