2 Bed House For Sale
Colwell Gardens, Haywards Heath, RH16
				Guide Price £315,000 (Freehold)
- Well presented house in quiet cul-de-sac
- Easy walk to town centre and hospital
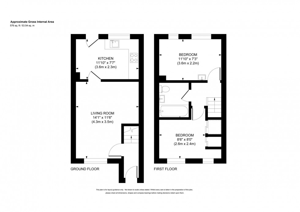
- Modern kitchen - Separate lounge
- 2 double size bedrooms - refitted bathroom
- Garage with pitched roof & parking space (right hand garage next to 32)
- Front garden (potential parking STPP) - 38' x 12' west facing rear garden with pond
- Double glazed windows
- Gas heating to radiators
- For sale with no onward chain
- EPC rating: C - Council Tax Band: C
GUIDE PRICE … £315,000-£325,000 … FREEHOLD
PLEASE WATCH THE VIDEO BEFORE BOOKING AN APPOINTMENT
A nicely presented 2 double bedroom terraced house with a garage, parking space and a 38' west facing rear garden quietly tucked away in a cul-de-sac on the south side of the town centre close to the hospital.
Location Summary
Colwell Gardens is located off Colwell Road on the town's southern side. Local facilities include the Princess Royal Hospital, local shops, including a Sainsbury's local store in Wivelsfield Road and a Co-op store in Franklynn Road. There are several primary schools within walking distance and children from this side of town fall into the catchment area for Oathall Community College with its own farm in neighbouring Lindfield. The town also has a leisure centre and 6th form college. An alleyway from Wellswood leads into Kents Road giving swifter pedestrian access to the town's main shopping areas of South Road and the Orchards. The fashionable Broadway is a little further with its range of cafes, bars and restaurants as well as the mainline railway station (1.25 miles distant) which offers fast commuter services to London (Victoria/London Bridge 47 mins), Gatwick Airport (15 mins) and the south coast (Brighton 20 mins). By road, access to the major surrounding areas can be gained via the new Haywards Heath A272 relief road and the A/M23, the latter lying approximately 6.5 miles to the west at Bolney.
Council Tax Band: C
Nearest Stations
- Haywards Heath - 1.03miles
- Wivelsfield - 2.12miles
- Burgess Hill - 2.91miles
- Sheffield Park (Bluebell Railway) - 4.20miles
- Horsted Keynes (Bluebell Railway) - 4.43miles
Location
Floorplans
