2 Bed Flat For Sale
Renfields, Henry House, RH16

£285,000 (Leasehold)

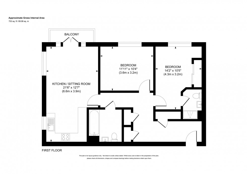
  • South and west facing first floor apartment
  • Great position at rear of building
  • Views over ancient woodland from main rooms
  • Open plan living area with balcony
  • Kitchen with range of integrated appliances
  • Master bedroom with en-suite shower room
  • Allocated parking space
  • 0.8 mile walk to railway station
  • 0.7 mile walk to fashionable Broadway
  • NO ONWARD CHAIN - EPC rating: B - Council Tax Band: D

PLEASE WATCH THE VIDEO BEFORE BOOKING AN APPOINTMENT

A bright and spacious south and west facing 1st floor 2 bedroom, 2 bathroom apartment enjoying a wonderful outlook from all principal rooms over protected ancient woodland and situated in the very top north eastern corner of Bolnore Village within an easy walk of the town centre and railway station.

Tenure: leasehold 125 years from 01.01.2015
Ground rent: reviewed every 10 years and we believe has recently increased to £379.63 but under the new ground rent legislation should be reduced at some stage to £250 per year
Service charge: believed to be £850 every 6 months
Buildings insurance: for the current year £525.74
The above information is believed to be correct however the agents are waiting on full confirmation so should not be relied upon as 100% correct
Managing agent agents: Pembroke Property management

NB. All services/appliances have not and will not be tested





Location Summary

Henry House is located off Renfields, which is in the most recently built part of Bolnore Village on the town's south/western edge and can be swiftly accessed on foot from Saddlers Wood and Bolnore Road. Open countryside and protected woodland interspersed with numerous pathways is close by providing some wonderful walks with links to the Village Square with its Co-op store or through to Ashenground Road. The village has a highly regarded primary school and children go onto Warden Park Secondary Academy in neighbouring Cuckfield. The Woodside pavilion has numerous community facilities, sports pitches and a bar (Open limited hours). A regular bus service runs through the village linking with the town centre, railway station and neighbouring districts. The town has an extensive range of shops, restaurants, cafes and bars, A 6th form college, sports clubs and a leisure centre. The main town centre, trendy Broadway and railway station can be reached on foot within 15 minutes.

Distances: (on foot/by car in miles approx)
Bolnore Primary School 900 yards
Warden Park Secondary Academy 1.6
Railway station 1.3 (London Bridge/Victoria 45 mins, Gatwick Airport 15 mins, Brighton 20 mins)
A/M23 at Bolney 5.5
Gatwick Airport 14
Brighton seafront 15

Council Tax Band: D

Nearest Stations

  • Haywards Heath - 0.80miles
  • Wivelsfield - 2.19miles
  • Burgess Hill - 2.96miles
  • Balcombe - 4.25miles
  • Horsted Keynes (Bluebell Railway) - 4.62miles

Contact the office to
discuss this property

01444 456431 Email us View your shortlist

Location

Floorplans

Floorplan for Renfields, Henry House, RH16
View PDF Brochure

Video Tours

⁡⁣⁣⁢

Request a Viewing

Contact the office to
discuss this property

01444 456431 Email us View your shortlist