3 Bed House For Sale
Ashleigh Road, Horsham, RH12

In Excess of £475,000 (Freehold)

  • 3 double sized bedrooms
  • Spacious and well presented 3 storey end of terrace house
  • Driveway for 2 vehicles and garage store with utility
  • Low maintenance south west facing garden
  • No onward chain
  • Potential to create 4 bedrooms
  • Superb residential location
  • Principal bedroom with en suite
  • Close to schools, Horsham park, transport links and town centre

A superbly located and versatile 3 double bedroom, 3 storey end of terrace house, built in the 1960s with en suite, driveway for 2 vehicles, garage store, south west facing garden and no onward chain.

The property is situated on this ever so popular and convenient residential road, within striking distance of excellent schools, major transport links, Horsham park and the town centre.

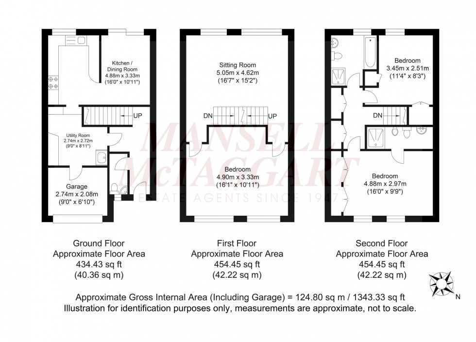
The accommodation comprises: entrance hallway with access into the utility room with plumbing for washing machine and sink and garage store and separate cloakroom.

The kitchen/dining room with sliding doors onto the south west facing garden has been refitted with an attractive range of units, Corian work surfaces, space for fridge/freezer and some Smeg integrated appliances that include induction hob, extractor, oven, combination oven/microwave, dishwasher and boiling tap.

On the first floor there is a well proportioned sitting room with pleasant outlook.

Two sets of doors lead into the guest bedroom with storage and could quite easily be converted back to 2 separate bedrooms, if required.

From the sitting room stairs rise to the second floor with a double sized bedroom with fitted wardrobes and cupboard and modern bath/shower room.

The principal bedroom a great size and is equipped with fitted wardrobes and en suite shower room.

Benefits include double glazed windows and gas fired central heating to radiators (Worcester Bosch boiler located in the garage store).

A driveway provides parking for 2 vehicles, leading to the garage store with power. There is an opportunity to incorporate the garage store and utility room into a full length garage if needed.

The 23’ x 16’ south west facing garden is low maintenance and ideal for entertaining.

NB. site charge £115 per quarter.

Location Summary

The vibrant town of Horsham offers residents and visitors a cultural mix of heritage and state-of-the-art attractions. At its heart, the Carfax is alive with twice-weekly markets, bandstand entertainment and an assortment of enticing shops. Nearby you can find the serenity of the Causeway, home to the historical museum, art gallery and a treasure trove of 17th century properties. Around the corner, Horsham’s multi-million-pound transformation of Piries Place accommodates a specialist vegan market, contemporary Everyman cinema and reputable indoor and alfresco restaurants and bars. Familiar high-street and independent retailers, restaurants and coffee shops can be found in East Street and Swan Walk. Fine-dining and 5* spa hotels, pubs, delicatessen, bakeries, ample parking facilities and a choice of supermarkets are at hand in and around Horsham, serving the lifestyle needs of the whole family. Horsham has an exceptional choice of schools in the area, with high Ofsted ratings and Collyer’s college is a short walk from the town centre. Community facilities are in abundance with a well-stocked library and an array of leisure activities including rugby, football, cricket, gymnastics, dance and martial arts. Golfers have a choice of two local courses and driving range, and Horsham joggers have a welcoming club. For family fun, Horsham Park has significant attractions with a wildlife pond, swimming pools, tennis courts, café, aerial adventure, seasonal events and nature gardens. The Downs Link offers inviting opportunities for scenic family walks and keen cyclists. As a commuter town serving London, Gatwick and the South Coast, there are direct train links to all central and rural locations.

Council Tax Band: D

Nearest Stations

  • Horsham - 0.68miles
  • Littlehaven - 0.86miles
  • Warnham - 1.26miles
  • Christs Hospital - 2.33miles
  • Faygate - 3.10miles

Contact the office to
discuss this property

01403 263000 Email us View your shortlist

Location

Floorplans

Floorplan for Ashleigh Road, Horsham, RH12
View PDF Brochure
⁡⁣⁣⁢

Request a Viewing

Contact the office to
discuss this property

01403 263000 Email us View your shortlist