3 Bed House For Sale
Boston Road, Haywards Heath, RH16

Guide Price £375,000 (Freehold)

  • Beautifully presented end of terrace home
  • The subject of numerous recent improvements
  • Previously had planning permission for loft conversion and rear extension
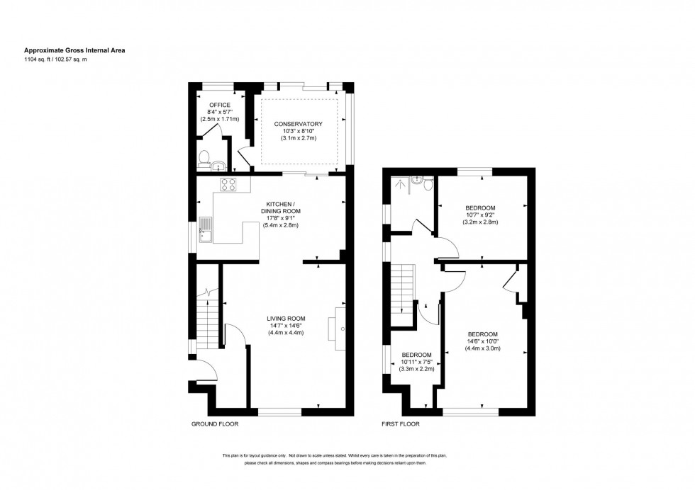
  • Living room with woodburning stove - Open plan kitchen/dining room
  • Orangery style extension, cloakroom, small study/utility
  • 3 big bedrooms & beautifully fitted shower room
  • Plenty of parking – EV charging point - 46' x 25' sunny south/west facing rear garden
  • Easy walk to several primary schools & Oathall Community College
  • Walking distance to Lindfield Village via nature reserve - 1 mile walk to the railway station
  • EPC rating: C - Council Tax Band: C

GUIDE PRICE … £375,000-£400,000

PLEASE WATCH THE VIDEO BEFORE BOOKING AN APPOINTMENT
A very well presented and recently modernised 3 double bedroom end of terrace house with plenty of driveway parking, a 46’ x 30’ south/west facing garden tucked away on the rejuvenated eastern side of town just around the corner from a parade of shops and within an easy walk of several good schools, the town centre and just a 1 mile walk to the railway station.

Location Summary

Boston Road is a ‘horseshoe’ shaped road located off America Lane on the eastern side of town. This established residential area is popular with families and commuters alike and is ideally placed within walking distance of all the town’s facilities. A regular bus service runs along America Lane linking with the town centre, hospital and the railway station. There is a parade of shops on America Lane including a pharmacy and a convenience store.

The town centre is approximately 0.9 miles distant where there is an extensive range of shops, stores, restaurants, cafes and bars. The railway station is 1.1 miles distant and offers fast commuter links to London (Victoria/London Bridge 47 mins), Gatwick Airport (15 mins) and the South Coast (Brighton 20 mins).

By road, access to the major surrounding areas can be gained via the A272, the B2112 and the A/M23, the latter lying approximately 6 miles to the west at Bolney or Warninglid or 8 miles to the north at Maidenbower (Junction 10a).
Distances in approximate miles
Schools: Warden Park Primary Academy (0.4), St Joseph’s RC Primary (0.7), St Wilfrid’s Primary (0.6), Oathall Community College (0.8).

Council Tax Band: C

Nearest Stations

  • Haywards Heath - 0.76miles
  • Wivelsfield - 2.84miles
  • Burgess Hill - 3.63miles
  • Horsted Keynes (Bluebell Railway) - 3.71miles
  • Sheffield Park (Bluebell Railway) - 3.83miles

Contact the office to
discuss this property

01444 456431 Email us View your shortlist

Location

Floorplans

Floorplan for Boston Road, Haywards Heath, RH16
View PDF Brochure

Video Tours

⁡⁣⁣⁢

Request a Viewing

Contact the office to
discuss this property

01444 456431 Email us View your shortlist