4 Bed House For Sale
Nursery Lane, Wivelsfield Green, RH17

Guide Price £975,000 (Freehold)

  • Individual detached home in semi rural village location
  • Built 10 years ago and offering flexible accommodation with up to 5 bedrooms
  • Secluded plot with gardens on all sides - Glorious countryside almost on the doorstep
  • Short walk to the Village pub, shop & primary school
  • Grand central reception hall with oak flooring - Beautiful handmade kitchen - Separate utility/boot room
  • Living room with fireplace, dining room, media room, study, ground floor bedroom with en-suite shower room
  • Master suite, 2 further first floor bedrooms and family bathroom
  • 4 miles from Haywards Heath railway station - Chailey Secondary school catchment (bus service)
  • Within easy reach of several independent schools
  • EPC rating: B - Council Tax Band: G

PLEASE WATCH THE VIDEO BEFORE BOOKING AN APPOINTMENT

An individual detached house offering high versatile accommodation occupying a secluded plot up this no-through lane on the eastern edge of the village close to glorious countryside and within a short walk of the local pub, shop and highly regarded primary school.

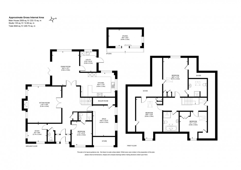
The house was built approximately 10 years ago by a private builder to a very high spec and has been beautifully maintained by the owner who now presents the property for sale in immaculate order throughout. The accommodation could be used with up to 5 bedrooms and currently has 3 bedrooms and 2 bathrooms on the first floor with 5 rooms, a kitchen and a very large utility room on the ground floor so would ideally suit those looking for flexibility or someone looking for home working space or adaptable accommodation for a relative/extended family. 

The house sits on a 100' x 80' plot with driveway parking and an enclosed garden to the front with the remainder of the gardens arranged on all 3 sides with fabulous entertaining space offering a high degree of privacy and with the advantage of a garden studio room. The garage has been partially converted to create a media room.

Location Summary

Nursery Lane is a private road off Strood Gate which is situated in a central position on the eastern side of the village within a few hundred yards of the popular village pub, store/delicatessen/post office and the highly regarded primary school.

The village is surrounded by glorious countryside which is interspersed with footpaths and bridleways linking with neighbouring districts, villages and both Ditchling and Chailey common nature reserves.

Children from the village catch a school bus to Chailey secondary school in nearby South Chailey whilst the local area is also well served by numerous excellent independent schools including Burgess Hill Girls, Great Walstead, Cumnor House, Ardingly and Worth. These and some of the area's other excellent schools like Brighton College, Roedean and Bedes all run a school bus service with pick up points close by.

The towns of Haywards Heath and Burgess Hill both offer extensive shopping, recreational facilities, leisure centres and railway stations with a faster service to London Bridge/Victoria 45 mins from Haywards Heath.

Access to the major surrounding areas, Brighton, Gatwick Airport and the M25 can be swiftly gained via the B2112, A272 and A/M23, the latter lying about 8.5 miles to the west at Bolney.

Council Tax Band: G

Nearest Stations

  • Wivelsfield - 2.12miles
  • Burgess Hill - 2.54miles
  • Plumpton - 2.58miles
  • Haywards Heath - 3.14miles
  • Sheffield Park (Bluebell Railway) - 3.71miles

Contact the office to
discuss this property

01444 456431 Email us View your shortlist

Location

Floorplans

Floorplan for Nursery Lane, Wivelsfield Green, RH17
View PDF Brochure

Video Tours

⁡⁣⁣⁢

Request a Viewing

Contact the office to
discuss this property

01444 456431 Email us View your shortlist