4 Bed House Sold STC
Hickmans Lane, Lindfield, RH16

Guide Price £785,000 (Freehold)

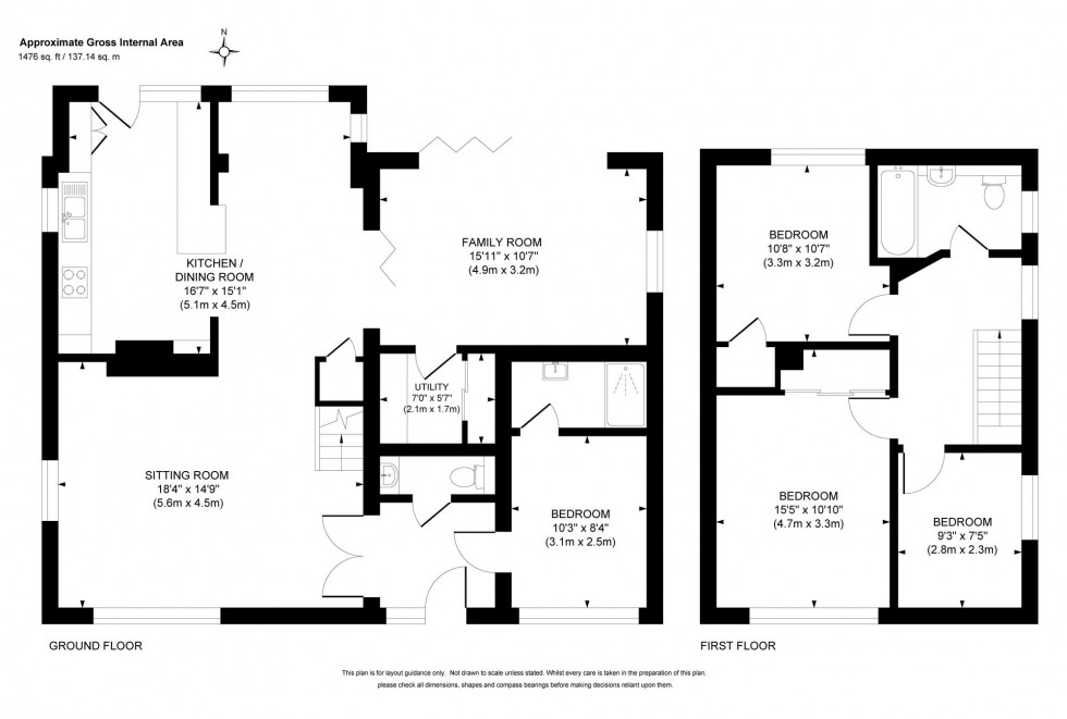
  • An updated and extended 4 Bedroom, 3 Reception Area, 2 Bath/Shower Room detached village home + Corner Plot location walking distance of Lindfield High Street + NO CHAIN
  • Reception Hall + ground floor Cloakroom/WC
  • Ground Floor Double Bedroom + En-Suite Shower Room (2025)
  • Double aspect Sitting Room + wood burner
  • Kitchen / Dining Room fitted units and appliances + breakfast bar
  • Separate Family Room + folding doors onto garden + Utility Room
  • 3 First Floor Bedrooms (2 with built-in wardrobes) + re-fitted white Family Bathroom
  • Block paved Private Driveway + beautiful Corner Plot Gardens
  • Tucked away within Hickmans Lane cul-de-sac of only 3 homes in a prime village address + playing fields nearby + short walk of local pubs, shops, pond, common + schools
  • Potential for further enlargement, if required (STPP) + EPC Rating: C and Council Tax Band: F

*PLEASE WATCH VIEWING VIDEO*

An updated and extended 4 Bedroom detached village home with 3 Reception Areas, 2 Bath / Shower Rooms situated on a Corner Plot walking distance of Lindfield High Street. NO CHAIN

Reception Hall wooden flooring and internal part glazed doors. Cloakroom/ WC fitted modern white suite. Ground Floor Double Bedroom front window. En-Suite Shower Room fitted modern white suite (Bedroom + En-Suite - Garage conversion in 2025). Sitting Room double aspect, feature wood burner and stairs to first floor. Kitchen re-fitted range of units, worksurfaces, 5-ring gas hob, extractor, eye level oven/grill, integrated fridge/freezer, washer / dryer, door to garden and breakfast bar. Dining Room space for family table and chairs and folding doors. Family Room wooden floor and folding doors to the garden. Utility Room space for appliances + storage housing ‘Worcester gas boiler.

First Floor - Landing with access to part boarded loft (ladder and lighting). 3 Bedrooms (2 with built-in wardrobes) and Family Bathroom fitted modern white suite, enclosed bath, low level WC, wash basin and fitted mirror.

Benefits include: Gas fired central heating to radiators, double glazed windows and potential for further enlargement, if required (STPP).

OUTSIDE - 25’ deep block paved Private Driveway flanked by shaped lawns. Gated side access into the Rear Garden (75’ wide max x 39’ deep max) generous shaped lawns, timber sleepers, paved patio, seating areas, fire pit and storage areas.

Location Summary

LOCATION - This property is within a cul-de-sac of only 3 homes in a prime village address with playing fields nearby and just a short walk of local pub, shops, stores, boutiques, churches, pond and historical properties. Lindfield has numerous sports clubs, leisure groups and societies including the long established Bonfire Society.
BY ROAD - Access to the major surrounding areas can be gained via the A272 and the A23/M23 linking with Gatwick Airport and M25.
SCHOOLS - Lindfield Primary School (0.5 miles), Blackthorns Primary School (0.7 miles), Oathall Community College Secondary School (0.6 miles).The local area is well served by several independent schools: Great Walstead (1.9 miles) and Ardingly College (2.4 miles)
STATION - Haywards Heath mainline railway station (1.2 miles). Fast and regular services to London (London Bridge/Victoria 47 mins), Gatwick Airport (15 mins) and Brighton (20 mins).

Council Tax Band: F

Nearest Stations

  • Haywards Heath - 0.95miles
  • Horsted Keynes (Bluebell Railway) - 2.89miles
  • Balcombe - 3.52miles
  • Wivelsfield - 3.75miles
  • Sheffield Park (Bluebell Railway) - 3.99miles

Contact the office to
discuss this property

01444 484084 Email us View your shortlist

Location

Floorplans

Floorplan for Hickmans Lane, Lindfield, RH16
View PDF Brochure

Video Tours

⁡⁣⁣⁢

Request a Viewing

Contact the office to
discuss this property

01444 484084 Email us View your shortlist