3 Bed Not Specified For Sale
Ruppell Rise, Haywards Heath, RH16

Guide Price £425,000 (Freehold)

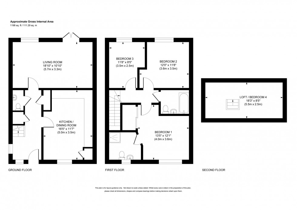
  • Big 3 bedroom house (approx 1200 ft.²)
  • 2 allocated parking spaces directly in front
  • Tucked away off Fox Hill on town outskirts - Close to parkland and countryside
  • Family sized kitchen/dining room
  • Lounge with doors out to the rear garden
  • Master bedroom with en-suite shower room
  • 33' x 24' fully enclosed rear garden
  • 5 mins walk to Fox & Hounds Pub - New primary School to be built close by soon
  • Private Estate Charge: All residents pay £300 per year approx. (for the upkeep of the parkland and children's play areas)

GUIDE PRICE … £425,000-£450,000

PLEASE WATCH THE VIDEO BEFORE BOOKING AN APPOINTMENT

A 3 double bedroom semi-detached house tucked away in a cul-de-sac within the popular Fox Hill development on the town’s southern edge, close to countryside and within a short walk of the local pub and on a bus route to town and both Warden Park & Chailey schools.

Location Summary

The development is situated on the town's southern edge close to countryside, the Fox and Hounds pub and in the next few years will be close to the new primary school on Hurstwood Lane. Fox Hill (B2112) gives swift access out of town to the south linking with Brighton and to the north via the A272 relief road to the A23 at Bolney. The town centre is just over a mile to the north where there is an extensive range of shops, restaurants, cafés and bars.The town has several good primary schools and 2 good secondary schools and a 6th form college. Children from this side of town fall into the catchment area for Warden Park Secondary Academy school in Cuckfield for which there is a school bus stop on Fox Hill. A school bus also picks up from Fox Hill to Chailey Secondary School. Some children from this side of town have also gone to Wivelsfield Primary School.

Distances: on foot/car/rail
Haywards Heath Railway station 2.1, Wivelsfield railway station 2.9, South Road shops 1.2, A23 at Bolney 6.5 , Gatwick Airport 15

Council Tax Band: E

Nearest Stations

  • Wivelsfield - 1.52miles
  • Haywards Heath - 1.72miles
  • Burgess Hill - 2.28miles
  • Plumpton - 3.99miles
  • Sheffield Park (Bluebell Railway) - 4.32miles

Contact the office to
discuss this property

01444 456431 Email us View your shortlist

Location

Floorplans

Floorplan for Ruppell Rise, Haywards Heath, RH16
View PDF Brochure

Video Tours

⁡⁣⁣⁢

Request a Viewing

Contact the office to
discuss this property

01444 456431 Email us View your shortlist