3 Bed House Sold STC
Southdown Close, Haywards Heath, RH16

Guide Price £375,000 (Freehold)

  • Family home in quiet cul-de-sac location
  • In need of complete modernisation throughout
  • Potential for extending & loft conversion STPP
  • Private driveway parking and garage alongside
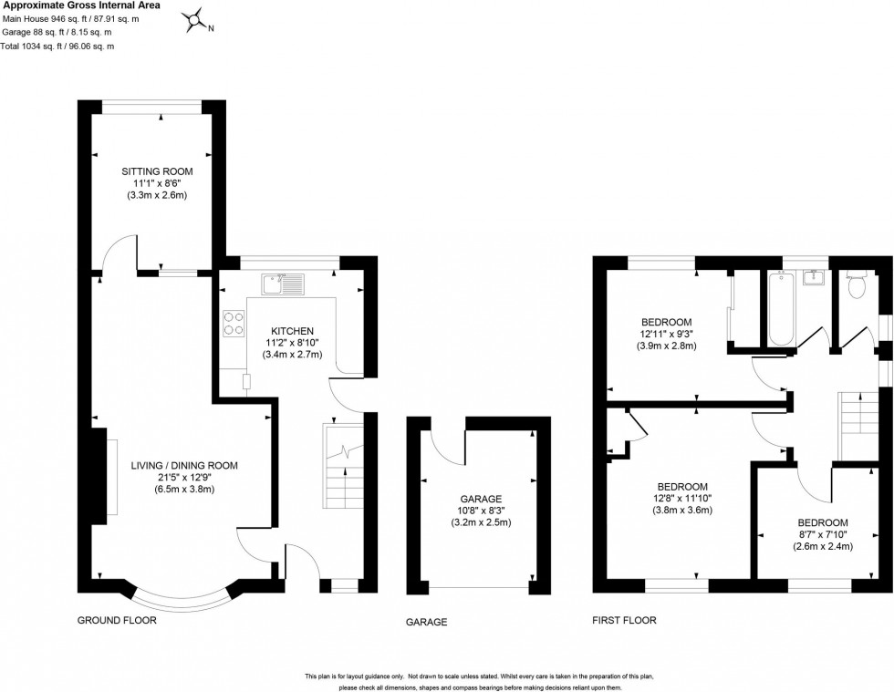
  • 38' x 32' west facing rear garden
  • Ground floor extended to create study/playroom
  • Lounge/dining room with fireplace - Kitchen
  • 2 doubles & 1 single bedroom, bathroom, sep WC
  • Walking distance of town & Ashenground Woods
  • Warden Park Secondary Academy School catchment
  • For sale with no onward chain
  • Council Tax Band 'D' and EPC 'D'

Guide Price £375,000 - £400,000 - A 3 bedroom semi-detached house in need of complete modernisation which has been owned by the same family who moved in to the newly built property in 1964.situated in this popular cul-de-sac on the southern side of town with a 38' x 32' west facing rear garden with a 8' x 6' wooden garden shed with smaller shed / log shed attached and large plastic storage unit 4' x 6' small greenhouse.

Location Summary

Southdown Close is situated off Vale Road which is located on the southern side of town close to the Vale Surgery. A bus service runs along Vale Road linking with the hospital, town centre and railway station. The town has an extensive range of shops, restaurants, cafés and bars. Schools are well represented and there are several primary schools within walking distance and children from this side of town generally fall into the catchment area for the Warden Park Secondary Academy School in neighbouring Cuckfield. The town also has a 6th form college, leisure centre and numerous parks.

Council Tax Band: D

Nearest Stations

  • Haywards Heath - 1.12miles
  • Wivelsfield - 1.83miles
  • Burgess Hill - 2.62miles
  • Sheffield Park (Bluebell Railway) - 4.66miles
  • Plumpton - 4.71miles

Contact the office to
discuss this property

01444 456431 Email us View your shortlist

Location

Floorplans

Floorplan for Southdown Close, Haywards Heath, RH16
View PDF Brochure

Video Tours

⁡⁣⁣⁢

Request a Viewing

Contact the office to
discuss this property

01444 456431 Email us View your shortlist