3 Bed House For Sale
The Coppice, Haywards Heath, RH16

£550,000 (Freehold)

  • Detached home in beautiful order throughout
  • Driveway with detached garage alongside
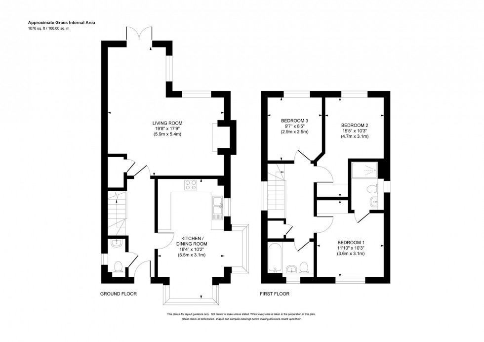
  • 33' x 30’ (average) east facing garden with a 24’ x 10’ west facing patio
  • L-shaped sitting room with log burning stove
  • Kitchen/breakfast room with integral appliances
  • Master bedroom with en-suite shower room
  • 2 further good sized bedrooms and family bathroom
  • Southern side of town close to countryside
  • Warden Park Secondary Academy catchment & walk of Chailey School bus stop
  • Internal viewing highly recommended
  • EPC rating: B - Council Tax Band: E

PLEASE WATCH THE VIDEO BEFORE BOOKING AN APPOINTMENT

A beautifully presented 3 bedroom, 2 bath/shower room detached house with a driveway and detached garage alongside situated within the popular Beeches development off Rocky Lane on the southern edge of town.

Estate Charge: for the 6 month period (01.09.25-31.03.26) - £178.90

Management agents: HML (0333 032 5955)

Location Summary

The Coppice is located off Rocky Drive which forms part of the Beeches development on the town's southern edge. The development is located off Rocky Lane (A272) which provides far swifter vehicular access around the town and out to the A23 to the west. There are a series of paved footpaths giving easy pedestrian access through to the town centre and Bolnore Village and its protected woodland providing some wonderful walks. The town has an extensive range of shops, stores, restaurants, cafes and bars, 6th form college and a leisure centre.

Schools are well represented throughout the town and children from this side of town generally fall into the catchment area for Warden Park Secondary Academy in neighbouring Cuckfield. The local area is also well served by numerous excellent independent schools, most of which provide a school bus service with pick up points close by.

Open countryside is close by which includes several beauty spots like Ditchling and Chailey common nature reserve, the Ashdown Forest and the South Downs National Park.

Distances in approximate miles (on foot/car/train) Schools: St Wilfrid's Primary 1.3, Warden Park Primary Academy 1.5, St Joseph's Primary 1.2,Warden Park Secondary Academy in Cuckfield 2.3,
Oathall Community College in Lindfield 2.2, St Paul's RC Academy 4.2, Stations: Haywards Heath 2.2 providing fast commuter links to London (Victoria/London Bridge 47 mins), Gatwick Airport (15 mins) and Brighton (20 mins) Wivelsfield 2.0 A23 at Bolney 5.7 Gatwick Airport 15 Brighton Seafront 14

Council Tax Band: E

Nearest Stations

  • Haywards Heath - 1.41miles
  • Wivelsfield - 1.55miles
  • Burgess Hill - 2.34miles
  • Plumpton - 4.47miles
  • Hassocks - 4.50miles

Contact the office to
discuss this property

01444 456431 Email us View your shortlist

Location

Floorplans

Floorplan for The Coppice, Haywards Heath, RH16
View PDF Brochure

Video Tours

⁡⁣⁣⁢

Request a Viewing

Contact the office to
discuss this property

01444 456431 Email us View your shortlist