1 Bed Flat Sold STC
Bolnore Farm Lane, Haywards Heath, RH16

Guide Price £215,000 (Share of Freehold)

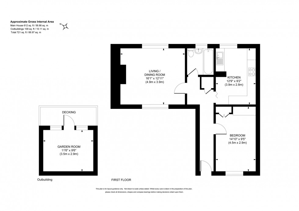
  • 1st floor flat with private decking to the front - summer house with electrics and outside water tap
  • Once part of the Sergison family estate
  • Requires general updating throughout
  • Private staircase and front door with stairlift
  • Double aspect sitting room with open fireplace
  • Separate kitchen, bedroom and bathroom
  • Private driveway parking for 1 to 2 cars
  • Comes with the freehold of this and the flat below
  • No fixed maintenance charges
  • For sale with no onward chain - EPC rating: D - Council Tax Band: B

PLEASE NOTE: THIS PROPERTY IS ADVERTISED FOR MARKETING PURPOSES ONLY

A 1 bedroom flat which forms part of the first floor of this former Victorian Coach House with a summer house located in the Butlers Green area on the very western edge of the town off this no-through lane (originally known as Isaacs Lane) Offered for sale with no onward chain.

Tenure: The Gable comes with the Freehold title which includes the Coach House flat below, which holds a 999 year lease from 1970 and pays a ground rent of £10 per year.

Maintenance: There is no service charge as each flat is responsible for 50% of any major works.

Buildings insurance: each flat is responsible for their own.

Location Summary

The property is part of a former Victorian coach house which is arranged as two flats and a cottage with an adjacent building and shares a driveway with what will be the entrance to a new retirement village (Eden Retirement). Bolnore Farm Lane (originally Isaacs Lane) Is a no through road but gives pedestrian access through to Chownes Mead Lane and Bolnore Road, making some pleasant walking and links to the town centre, Bolnore Village and Cuckfield. The railway station is a 0.8 mile walk and provides fast commuter services to London (Victoria and London Bridge both 45 mins), Gatwick Airport (15 mins) and the south coast (Brighton 20 mins). The town centre is a little closer where there is an extensive range of shops, restaurants, cafés and bars. Open countryside is very close by and just to the north of the property is the glorious Paige's Meadow Nature Reserve which links with Blunts Wood providing endless walks. By road, access to the major surrounding areas can be swiftly gained via the A272 (Butlers Green Road) giving fast links out to the A23 at Bolney which lies about 4.5 miles to the west.

Council Tax Band: B

Nearest Stations

  • Haywards Heath - 0.79miles
  • Wivelsfield - 2.37miles
  • Burgess Hill - 3.13miles
  • Balcombe - 4.00miles
  • Horsted Keynes (Bluebell Railway) - 4.61miles

Contact the office to
discuss this property

01444 456431 Email us View your shortlist

Location

Floorplans

Floorplan for Bolnore Farm Lane, Haywards Heath, RH16
View PDF Brochure

Video Tours

⁡⁣⁣⁢

Request a Viewing

Contact the office to
discuss this property

01444 456431 Email us View your shortlist