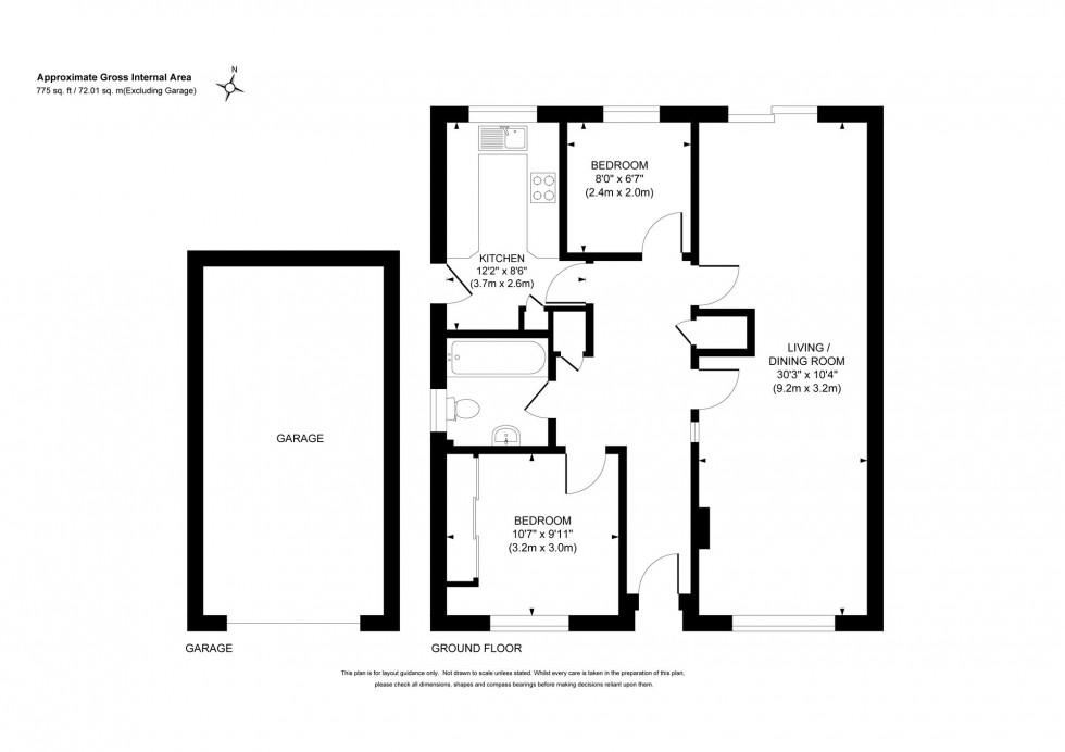
2 Bed Bungalow For Sale
Hoblands, Haywards Heath, RH16

Guide Price £425,000 (Freehold)

  • Detached bungalow In quiet cul-de-sac
  • Could be arranged with up to 3 bedrooms
  • Living room with fireplace and picture window
  • Separate dining room (was previously bedroom 2)
  • Modern kitchen and bathroom
  • 1 double and 1 single bedroom/study
  • Long driveway with detached garage
  • Double glazing – gas heating to radiators
  • Front and level 46‘ x 35‘ rear garden
  • For sale with no onward chain - EPC rating: D - Council Tax Band: D

PLEASE WATCH THE VIDEO BEFORE BOOKING AN APPOINTMENT

A detached 2/3 bedroom bungalow tucked away in a cul-de-sac within the popular Northlands Wood area close to a Tesco Express, medical surgery and pharmacy and on a bus route to the town centre, within a short walk of countryside and the picturesque village of Lindfield.

Location Summary

The property is within a cul-de-sac of bungalows off Hoblands which in turn forms part of the popular Northlands Wood area on the town’s south eastern outskirts. There is a Tesco Express, pharmacy and medical surgery close by. Northlands Wood Primary School is highly regarded and children from this side of town go onto Oathall Community College with its own farm in neighbouring Lindfield. The property is also ideally placed within a short walk of the Princess Royal Hospital, open countryside and the picturesque village of Lindfield. A bus service runs along Northlands Avenue linking with Lindfield, the hospital, town centre, railway station and neighbouring districts. The railway station is approximately 1.7 miles distant and provides fast commuter links to London Bridge/Victoria (47 mins), Brighton (20 mins) and Gatwick (15 mins). Access by road to the major surrounding areas can be gained via the A272 town relief road and the A/M23 which lies approximately 6-7 miles to the west at Bolney.

Distances in approximate miles:
Northlands Wood Primary School (0.3 miles)
Oathall Community College (0.9 miles)

Council Tax Band: E

Nearest Stations

  • Haywards Heath - 1.16miles
  • Wivelsfield - 2.84miles
  • Sheffield Park (Bluebell Railway) - 3.49miles
  • Burgess Hill - 3.61miles
  • Horsted Keynes (Bluebell Railway) - 3.74miles

Contact the office to
discuss this property

01444 456431 Email us View your shortlist

Location

Floorplans

Floorplan for Hoblands, Haywards Heath, RH16
View PDF Brochure

Video Tours

⁡⁣⁣⁢

Request a Viewing

Contact the office to
discuss this property

01444 456431 Email us View your shortlist