2 Bed House Sold STC
Chatfield Close, Cooksbridge, BN8

Guide Price £288,750 (Freehold)

  • SOLD stc by Mansell McTaggart
  • 75% SHARED EQUITY PURCHASE
  • NO RENT ON REMAINING SHARE
  • FLEXIBILITY TO INCREASE OWNERSHIP
  • IMMACULATELY PRESENTED
  • 2-BEDROOM SEMI-DETACHED HOME
  • OPEN-PLAN LIVING AREA
  • MODERN KITCHEN AND BATHROOMS
  • EXCELLENT EPC RATING (B)
  • DESIGNATED PARKING SPACE

SOLD stc by Mansell McTaggart 

Overview

The Property is Offered for Sale with a 75% Shared Equity, Valued at £288,750. The Full Purchase price is a Guide Price of £385,000 which will be available during your ownership and after the purchase of the 75% share has completed with land registry. Shared Equity differs from Shared Ownership and there is no rent payable for the outstanding 25% share. Instead, the Shared Equity Firm receive their funds from the expected increase in value once the remaining 25% share is purchased. Owners are welcome to sell their 75% Share at anytime and can purchase the remaining 25% share, at anytime during their ownership. Full details can be found direct from the company.
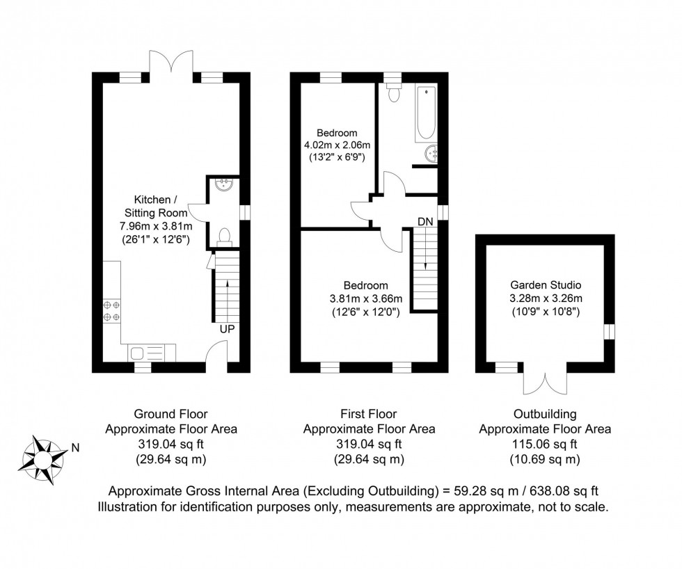
The 2 Bedroom semi-detached property is immaculately presented and features an open plan living, kitchen and dining room. A ground floor modern bathroom and designated parking space.

 

The property boasts an excellent EPC Rating of B.

 

ENTRANCE – Covered porch with double glazed door into a spacious and bright dual aspect room comprising of kitchen and living area

 

KITCHEN – Fitted and flushed fronted modern base and wall cupboards with contrasted worktops. Single sink with stainless steel mixer tap, 4 ring gas hob with oven below and cooker hood above and glass back panel. Space for dishwasher, washing machine and tall fridge-freezer; a front aspect double glazed window and laminated flooring with stairs to first floor and cupboard underneath

 

LIVING ROOM – Space for dining table; laminate flooring laid throughout with rear aspect double glazed window either side of matching doors opening onto rear garden

 

GROUND FLOOR WC – Modern white suite consisting of wash hand basin with mixer tap and vanity unit below, LLWC, obscured double glazed side aspect window and tiled flooring

 

FIRST FLOOR LANDING – Side aspect double glazed window overlooking side entrance to property

 

BEDROOM 1 – Spacious double bedroom with front aspect double glazed window

 

BEDROOM 2 – Rear aspect double glazed window overlooking rear garden and wooded area

 

BATHROOM – Modern white suite comprising of a panel enclosed bath with mixer tap and shower over, and glass shower screen. Pedestal hand wash basin with mixer tap and tiled splashback, LLWC, chrome heated towel rail and obscured double-glazed window. An airing cupboard enclosing boiler and tumble dryer space

FRONT GARDEN - Box hedging and pathway to front door with area of lawn and block paved designated parking space

 

REAR GARDEN - Gated side access wrapping around the property, mostly laid to lawn garden with area of patio all being enclosed by fencing

 

GARDEN STUDIO – Timber constructed multi use space with lighting and power. Dual aspect double glazed windows with matching doors opening into rear garden

Location

Chatfield Close is a small sized modern development located in the popular village of Cooksbridge. Constructed circa 2018 the development mainly comprises of 1 and 2 bedroom maisonettes and 2, 3 and 4 bedroom homes. The cul de sac offers ample parking for guests. Each property has its own independent central heating boiler and its own meter but is served by a communal LPG tank.

 

Cooksbridge is just 2 miles North of the historic market town of Lewes. Cooksbridge features a mainline railway station with direct services to London Victoria, Gatwick and Lewes. The village has a highly regarded primary school, a petrol station with convenience shop, modern village hall, children’s recreation ground, modern farm shop with café and The Rainbow public house.

 

With the historical country town of Lewes is approximately 2 miles away, also with a mainline train service, Lewes offers many cultural facilities and an excellent range of independent shops, cafes, restaurants, public houses, supermarkets, swimming pools and the superb Depot Cinema.

 

Tenure – Freehold 

LPG Central Heating – Double Glazing 

EPC Rating – B 

Council Tax Band – C 

Viewing recommended

 

 

Council Tax Band: C

Nearest Stations

  • Cooksbridge - 0.14miles
  • Lewes - 2.59miles
  • Plumpton - 2.69miles
  • Falmer - 4.49miles
  • Glynde - 4.76miles

Contact the office to
discuss this property

01273 407929 Email us View your shortlist

Location

Floorplans

Floorplan for Chatfield Close, Cooksbridge, BN8
View PDF Brochure
⁡⁣⁣⁢

Request a Viewing

Contact the office to
discuss this property

01273 407929 Email us View your shortlist