4 Bed House Sold STC
Brook Lane, Lindfield, RH16

Guide Price £1,250,000 (Freehold)

  • A tucked away 4 Bedroom, 4 Reception, 2 Bath/Shower detached village home situated on a mature private plot. Brook Lane is a Private Road in an area of low density high value residential homes
  • MODERNISATION POTENTIAL - An ideal opportunity to create your own home! Excellent Potential for alteration and/or enlargement, if required (STPP). NO CHAIN
  • A quiet road yet provides convenient access to the High Street, Schools, Golf Club and Haywards Heath Railway Station
  • Mature Front and Rear Gardens with rolling lawns + Private Driveway and Double Garage
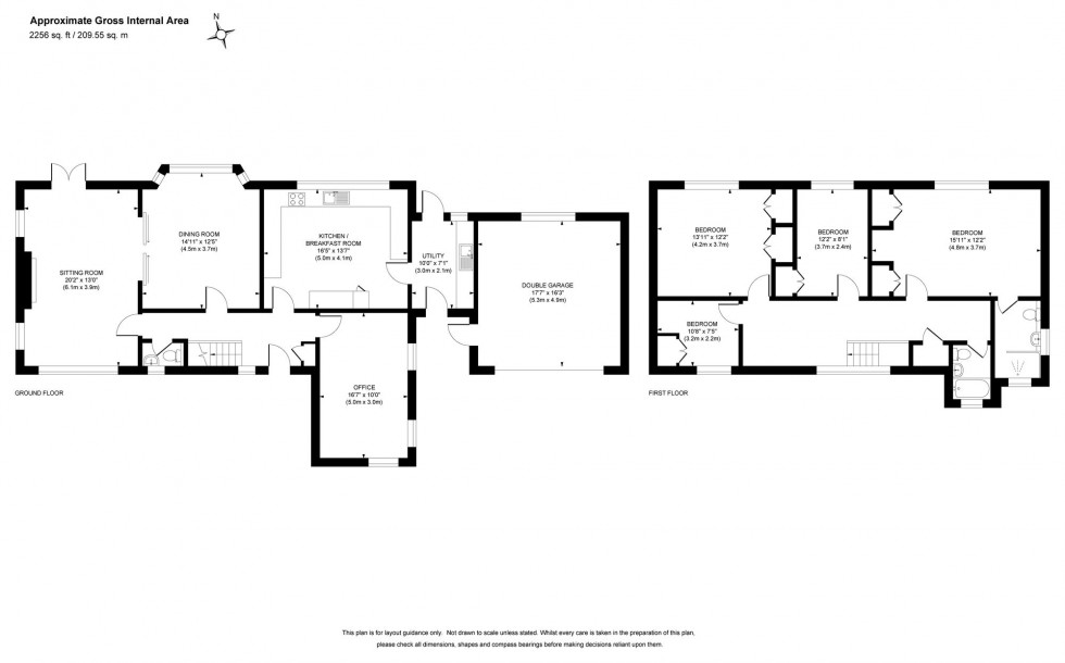
  • Reception Hall + ground floor Cloakroom/WC
  • Triple aspect Sitting Room with feature fireplace + adjoining separate Dining Room
  • Kitchen / Breakfast Room + adjoining Utility Room
  • Separate multi-purpose Reception Room - currently Home Office - Ideal Family Room / Play Room / Gym
  • 4 First Floor Bedrooms - Principle Bedroom + En-Suite Shower Room + separate Family Bathroom (both fitted white suites)
  • Gas fired central heating + double glazed windows + EPC Rating: D and Council Tax Band: G

*PLEASE WATCH VIEWING VIDEO*

A tucked away 4 Bedroom detached village home with 4 Receptions, 2 Bath/Showers and is situated on a mature private plot. Brook Lane is a Private Road in an area of low density high value residential homes - NO CHAIN and MODERNISATION POTENTIAL.

An ideal opportunity to create your own home! Excellent Potential for alteration and/or enlargement, if required (STPP). The accommodation comprises: Covered Entrance, front door into Reception Hall storage and stairs to first floor. Ground floor Cloakroom/WC fitted white suite. Triple aspect Sitting Room with feature fireplace and double doors to garden plus an adjoining separate Dining Room. Separate double aspect Multi-Purpose Reception Room currently Home Office - Ideal Family Room / Play Room / Gym. Kitchen / Breakfast Room fitted range of units and appliances, space for table and chairs. Adjoining Utility Room space for appliances, front and rear doors.

First Floor - landing with airing cupboard, 4 Bedrooms. Bedroom 1 fitted wardrobes/vanity area. En-Suite Shower Room fitted white suite. Separate Family Bathroom fitted white suite. Gas fired central heating to radiators and double glazed windows.

Outside - Mature Front / Rear Gardens with rolling lawns, shed and summerhouse - approx THIRD ACRE PLOT with Private Driveway for several vehicles leading to the attached Double Garage with electric roller door.

Location Summary

LOCATION - The property is situated in one of Lindfield’s most highly regarded locations, approx half a mile from Lindfield High Street. The village of Lindfield offers an extensive range of shops, stores, cafes, pubs and restaurants in the picturesque tree-lined High Street. Extensive open countryside is also close by.
SCHOOLS - Lindfield benefits from 2 excellent Primary Schools (Lindfield / Blackthorns both 1.2 miles) plus Oathall Community College Secondary School (1.3 miles). The local area is well served by some excellent independent schools including: Great Walstead (2.5 miles), Burgess Hill Girls (5.5 miles), Cumnor House (6.3 miles) and Ardingly College (1.9 miles)
STATION - Haywards Heath mainline railway station is within walking distance (1.2 miles) and offers frequent services to London (Victoria / Bridge both approx 47minutes), Gatwick Airport and the South coast at Brighton. Access to the M23 is 15 minutes by car.

Council Tax Band: G

Nearest Stations

  • Haywards Heath - 0.81miles
  • Horsted Keynes (Bluebell Railway) - 3.09miles
  • Balcombe - 3.17miles
  • Wivelsfield - 3.75miles
  • Sheffield Park (Bluebell Railway) - 4.44miles

Contact the office to
discuss this property

01444 484084 Email us View your shortlist

Location

Floorplans

Floorplan for Brook Lane, Lindfield, RH16
View PDF Brochure

Video Tours

⁡⁣⁣⁢

Request a Viewing

Contact the office to
discuss this property

01444 484084 Email us View your shortlist